НОВЫЕ ВИЛЛЫ С ВИДОМ НА МОРЕ В ЛА-КАЛА-ДЕ-МИХАС
НОВЫЕ ВИЛЛЫ С ВИДОМ НА МОРЕ В ЛА-КАЛА-ДЕ-МИХАС
Отталкиваясь от традиционного силуэта дома, первозданного пятиугольника, команда дизайнеров развила эти геометрические линии, чтобы создать симбиоз с существующей растительностью, установив непрерывный диалог с природой, ее энергией и движением.
Так центральная ось, которая конфигурирует традиционную покатую крышу дома, ломается и перемещается по одному из ее краев, танцуя под ритм дуновения ветра. Это создает различие между каждой виллой, создавая уникальную линию горизонта на Коста-дель-Соль.
В соответствии с философией "Меньше - значит больше", дизайн передает поиск чистых, элегантных и мягких линий.
В отдельных местах облицовки виллы использованы такие материалы, как натуральное дерево, что позволяет поддерживать постоянный диалог с окружающим природным ландшафтом и, несомненно, придает проекту уникальность, элегантность и чистоту, которые определяют виллы New Build.
Лестница, спроектированная и построенная как произведение скульптуры, возвышает жилую зону, превращая ее в эксклюзивную художественную галерею.
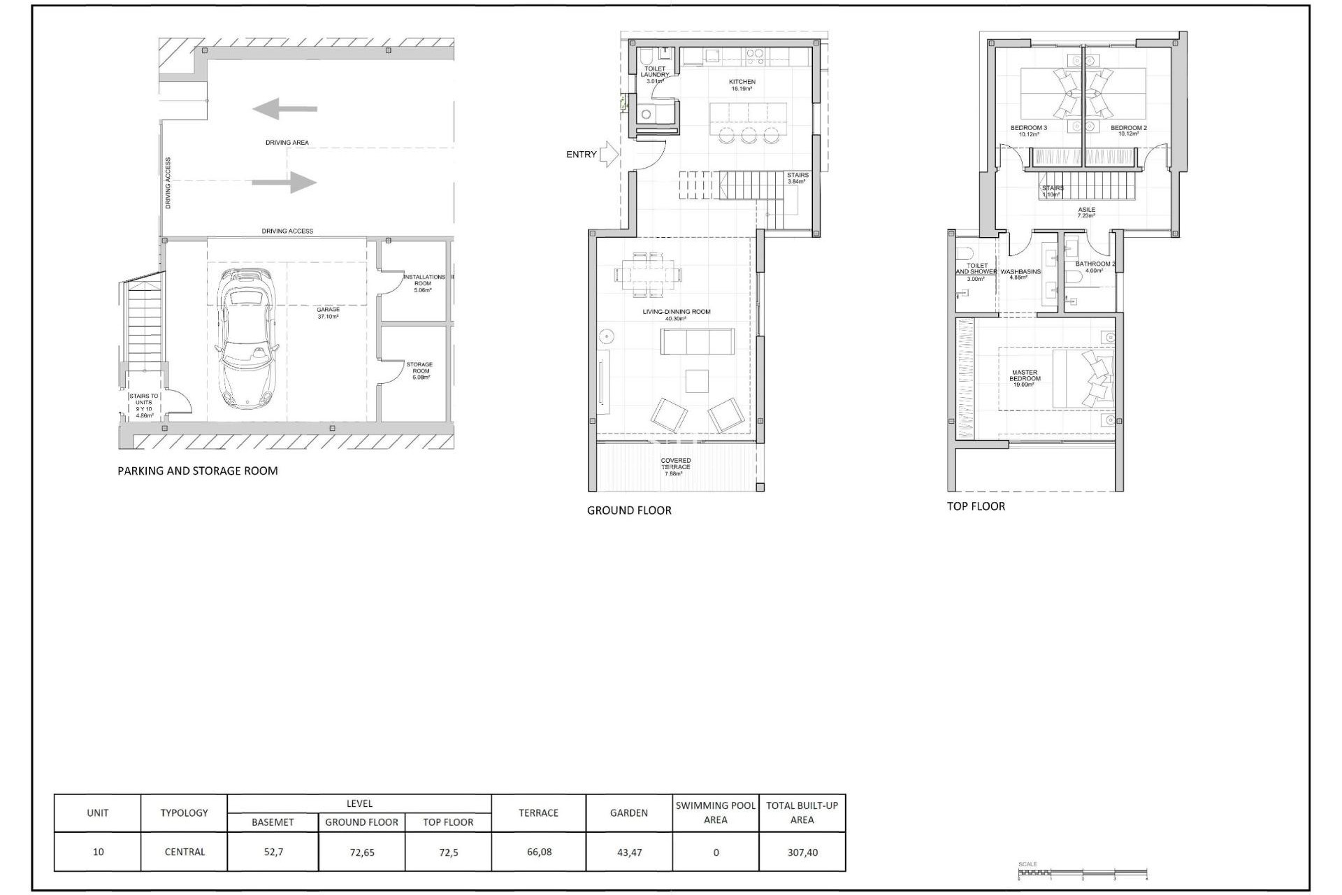
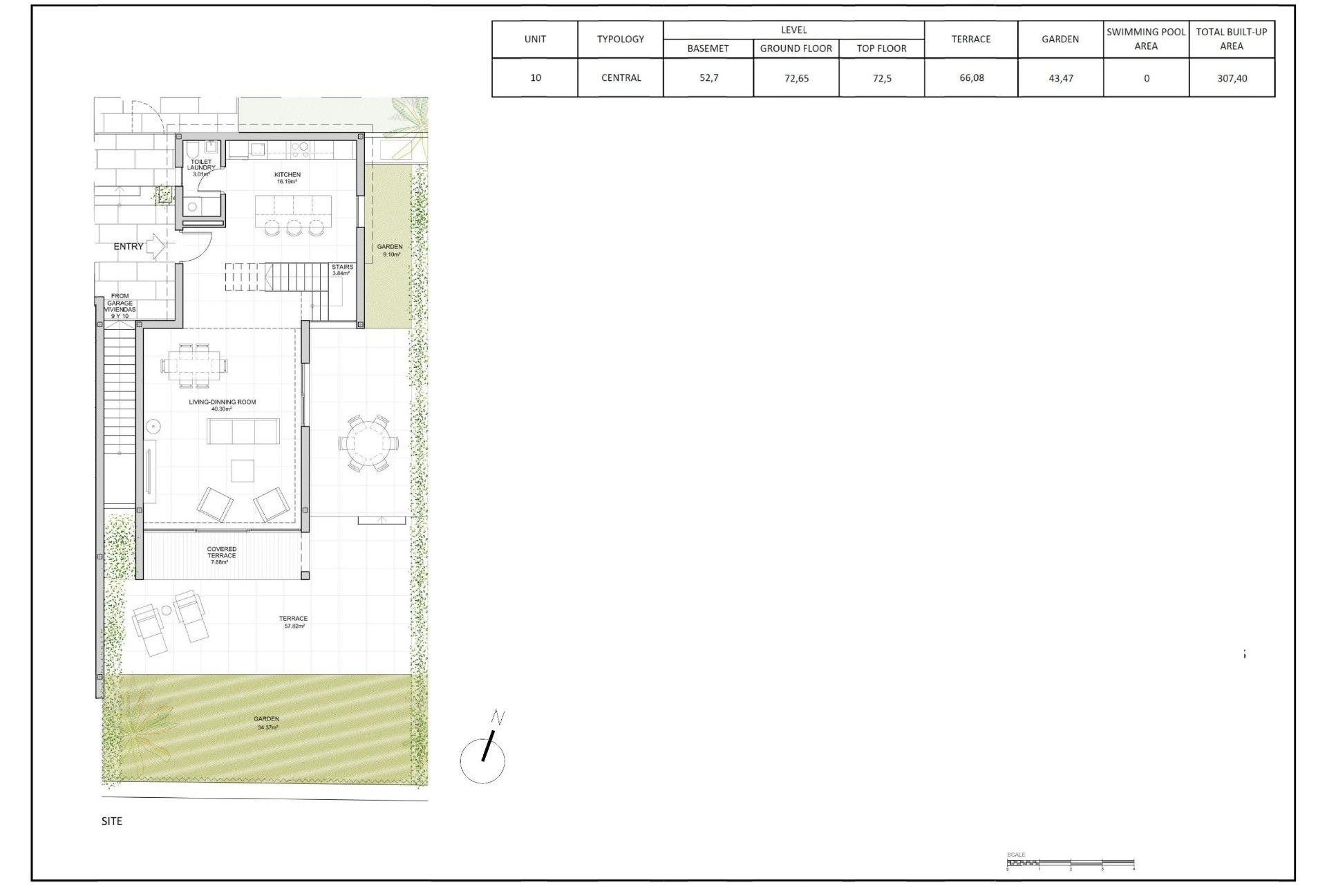
Виллы с 3 и 4 спальнями были спроектированы таким образом, чтобы оптимизировать пространство и взаимосвязь между различными зонами.
Всего в нескольких минутах езды на автомобиле находится очаровательный городок Михас с его бережно сохраненным старым городом с причудливыми узкими улочками, вы можете отправиться за покупками в Марбелью или Фуэнхиролу, или насладиться ночной жизнью в Ла Кала де Михас или Пуэрто Банус.
Виллы расположены в тихом районе в нескольких минутах езды от сказочных пляжей Коста-дель-Соль, гольф-клуба Chaparral Golf и всего в 20 минутах езды от Марбельи и в 30 минутах от аэропорта Малаги.
Гольф-клуб Chaparral - это 18-луночное поле "Parkland Forest", окруженное средиземноморским лесом. Охраняемая территория подчеркивает типичную красоту региона, где горы встречаются с морем. Гольф-клуб Chaparral расположен в привилегированном месте, в самом сердце Андалусии, в долине для гольфа Mijas.