NYBYGGDA VILLOR MED HAVSUTSIKT I LA CALA DE MIJAS
Med utgångspunkt i den traditionella silhuetten av ett hus, den ursprungliga femhörningen, har designteamet utvecklat dessa geometriska linjer för att skapa en symbios med den befintliga vegetationen och upprätta en kontinuerlig dialog med naturen, dess energi och dess rörelse.
Det är så den centrala axeln som utgör husets traditionella sluttande tak bryter och flyttar en av sina kanter, dansar till rytmen av vindbrisen. Detta skapar en skillnad mellan varje villa och skapar en unik skyline på Costa del Sol.
Enligt filosofin "Less is More" förmedlar designen sökandet efter rena, eleganta och mjuka linjer.
Material som naturligt trä har använts i utvalda delar av villans beklädnad, vilket möjliggör en ständig dialog med det naturliga landskapet runt omkring och utan tvekan ger projektet den unikhet, elegans och renhet som definierar nybyggda villor.
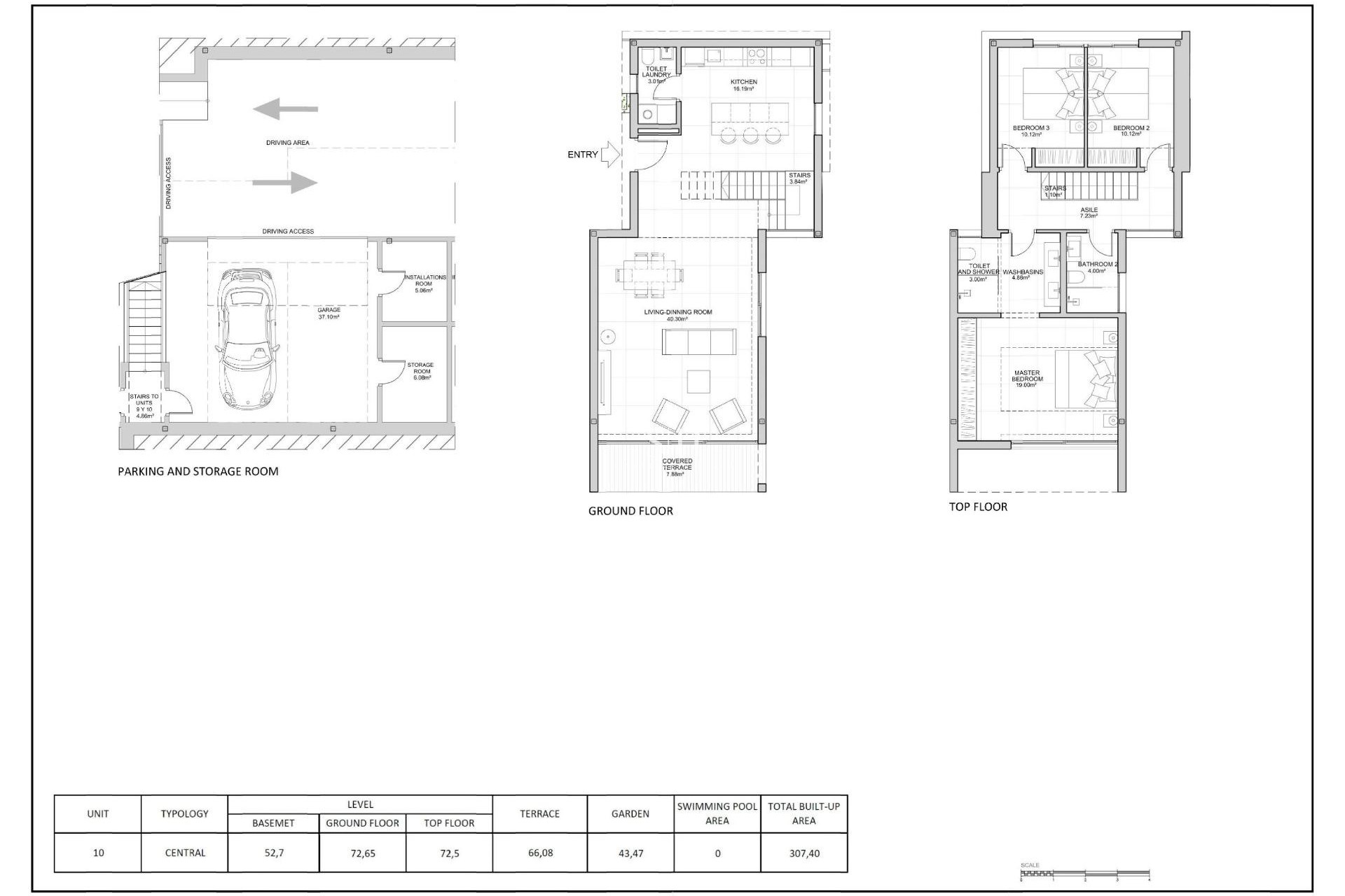
Trappan, som är utformad och byggd som en skulptur, lyfter upp vardagsrummet till ett exklusivt konstgalleri.
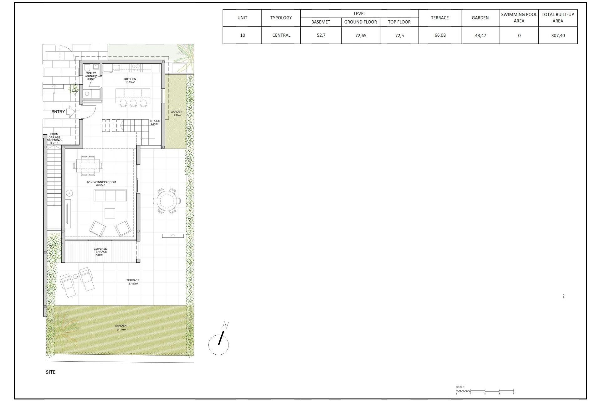
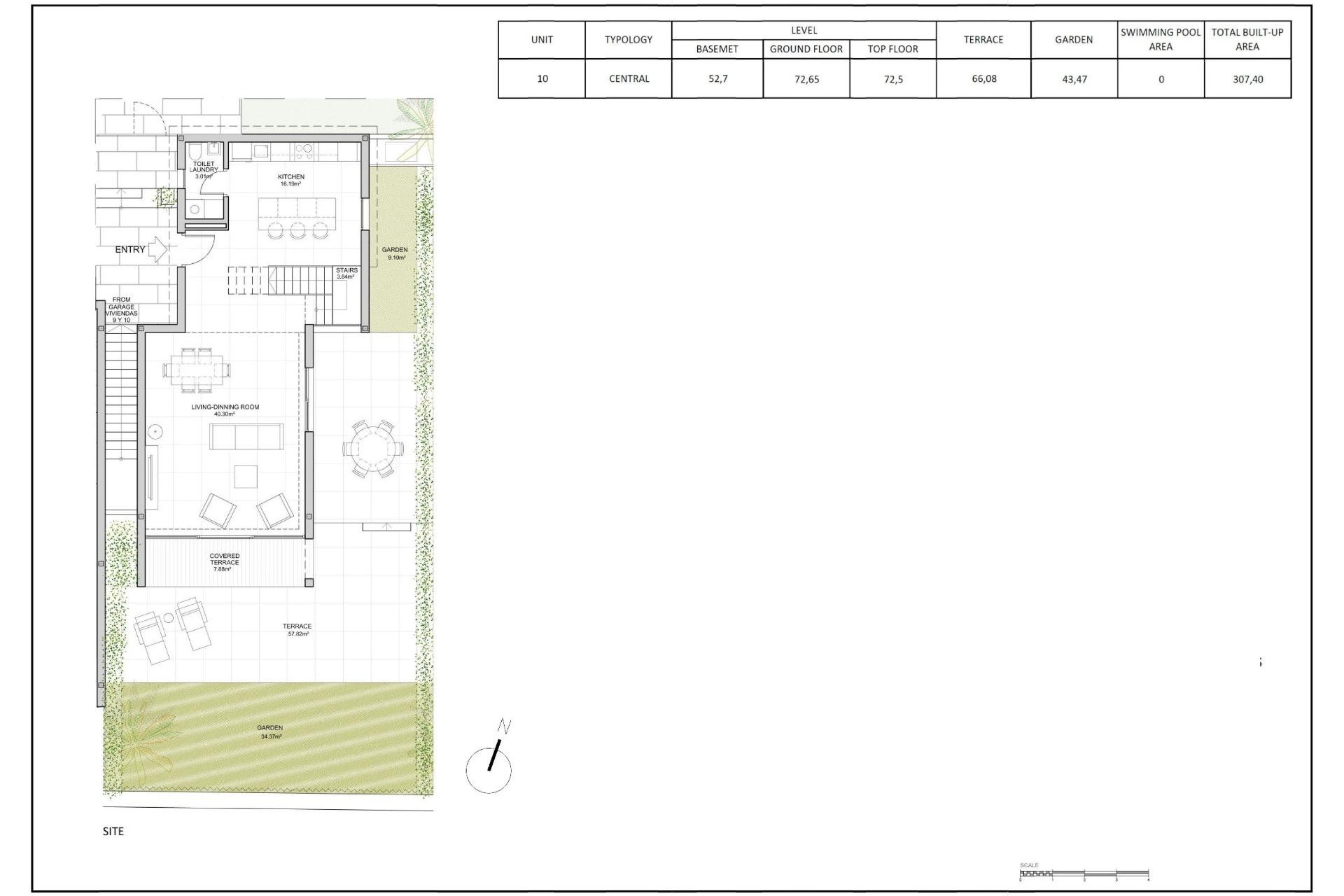
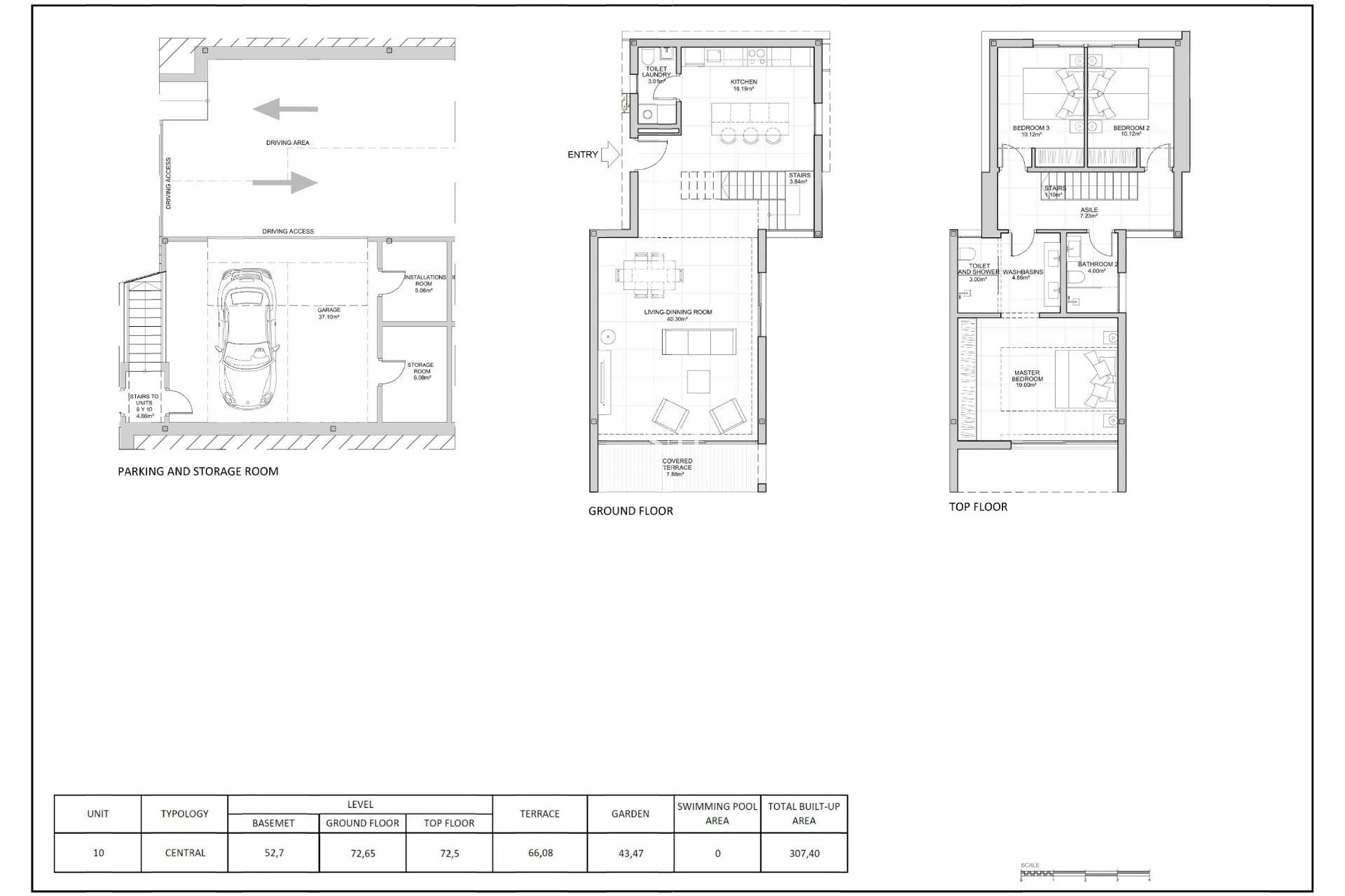
Villor med 3 och 4 sovrum har utformats för att optimera utrymmena och relationerna mellan de olika områdena.
Bara några minuter bort med bil har du den charmiga staden Mijas och dess noggrant bevarade gamla stad med pittoreska smala gator, du kan shoppa i Marbella eller Fuengirola, eller njuta av nattlivet i La Cala de Mijas eller Puerto Banús.
Villorna ligger i ett lugnt område bara några minuters bilresa från de fantastiska stränderna på Costa del Sol, Chaparral Golf och bara 20 minuter från Marbella och 30 minuter från Málagas flygplats.
Chaparral Golf Club är en 18-håls "Parkland Forest" -bana, omgiven av en medelhavsskog. Det skyddade området förstärker den typiska skönheten i regionen, där bergen möter havet. Chaparral Golf Club har ett privilegierat läge i hjärtat av Andalusien, i Mijas Golf Valley.