NIEUWBOUW VILLA'S MET UITZICHT OP ZEE IN LA CALA DE MIJAS
NIEUWBOUW VILLA'S MET UITZICHT OP ZEE IN LA CALA DE MIJAS
Uitgaande van het traditionele silhouet van een huis, de oer-vijfhoek, heeft het ontwerpteam deze geometrische lijnen geëvolueerd om een symbiose te creëren met de bestaande vegetatie, waardoor een voortdurende dialoog ontstaat met de natuur, haar energie en haar beweging.
Zo breekt de centrale as die het traditionele schuine dak van het huis vormt en beweegt een van de randen, dansend op het ritme van de wind. Dit zorgt voor een onderscheid tussen elke villa en creëert een unieke skyline aan de Costa del Sol.
Onder de filosofie van "Less is More" weerspiegelt het ontwerp de zoektocht naar pure, elegante en zachte lijnen.
Materialen zoals natuurlijk hout zijn gebruikt in geselecteerde delen van de gevelbekleding van de villa, waardoor een constante dialoog met het natuurlijke landschap eromheen mogelijk is en het project ontegenzeggelijk de uniciteit, elegantie en zuiverheid krijgt die New Build villa's kenmerken.
De trap, ontworpen en gebouwd als een sculptuur, verheft de woonruimte tot een exclusieve kunstgalerie.
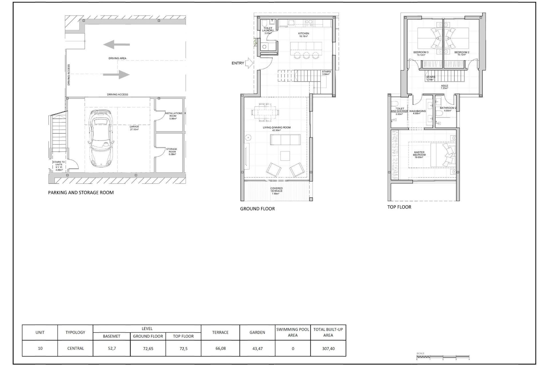
Villa's met 3 en 4 slaapkamers zijn ontworpen om de ruimtes en de relaties tussen de verschillende ruimtes te optimaliseren.
Op slechts een paar minuten rijden met de auto ligt het charmante stadje Mijas en zijn zorgvuldig bewaard gebleven oude centrum met schilderachtige smalle straatjes, je kunt gaan winkelen in Marbella of Fuengirola, of genieten van het nachtleven in La Cala de Mijas of Puerto Banús.
Villa's gelegen in een rustige omgeving op slechts een paar minuten rijden van de fantastische stranden van de Costa del Sol, Chaparral Golf en op slechts 20 minuten van Marbella en 30 minuten van de luchthaven van Málaga.
Chaparral Golf Club is een 18-holes "Parkland Forest" baan, omgeven door een mediterraan bos. Het beschermde gebied versterkt de typische schoonheid van de regio, waar de bergen de zee ontmoeten. Chaparral Golf Club ligt op een bevoorrechte locatie, in het hart van Andalusië, in de Mijas Golf Valley.