RYNEK PIERWOTNY WILLE Z WIDOKIEM NA MORZE W LA CALA DE MIJAS
RYNEK PIERWOTNY WILLE Z WIDOKIEM NA MORZE W LA CALA DE MIJAS
Wychodząc od tradycyjnej sylwetki domu, pierwotnego pięciokąta, zespół projektowy rozwinął te geometryczne linie, aby stworzyć symbiozę z istniejącą roślinnością, nawiązując ciągły dialog z naturą, jej energią i ruchem.
W ten sposób centralna oś, która konfiguruje tradycyjny spadzisty dach domu, łamie się i przesuwa jedną z jego krawędzi, tańcząc w rytm wiatru. Generuje to rozróżnienie między każdą willą, tworząc unikalną linię horyzontu na Costa del Sol.
Zgodnie z filozofią "Mniej znaczy więcej", projekt odzwierciedla poszukiwanie czystych, eleganckich i delikatnych linii.
Materiały takie jak naturalne drewno zostały użyte w wybranych obszarach okładziny willi, umożliwiając stały dialog z otaczającym ją naturalnym krajobrazem i niewątpliwie nadając projektowi wyjątkowość, elegancję i czystość, które definiują wille New Build.
Klatka schodowa, zaprojektowana i zbudowana jako dzieło rzeźbiarskie, podnosi część mieszkalną i staje się ekskluzywną galerią sztuki.
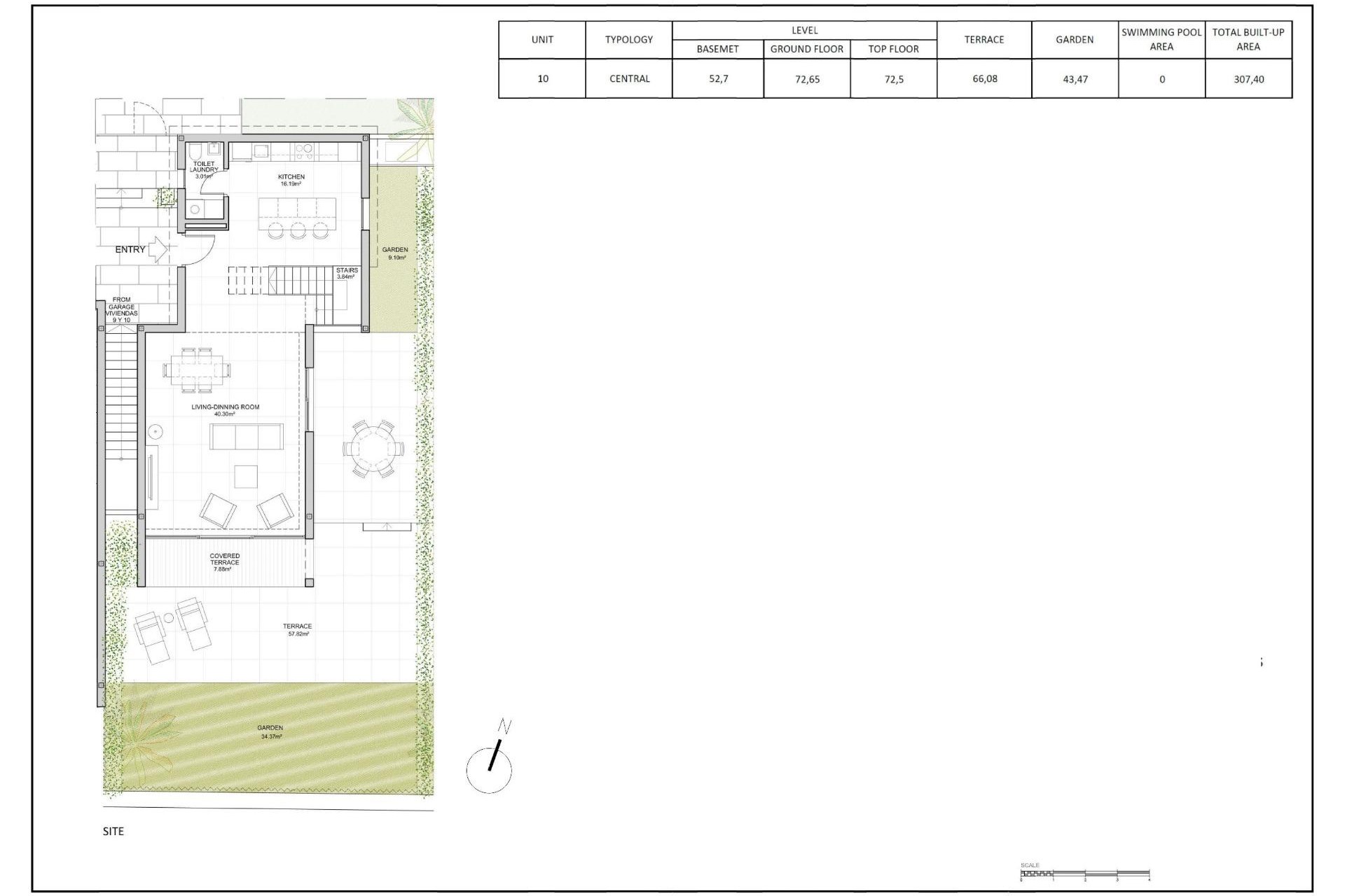
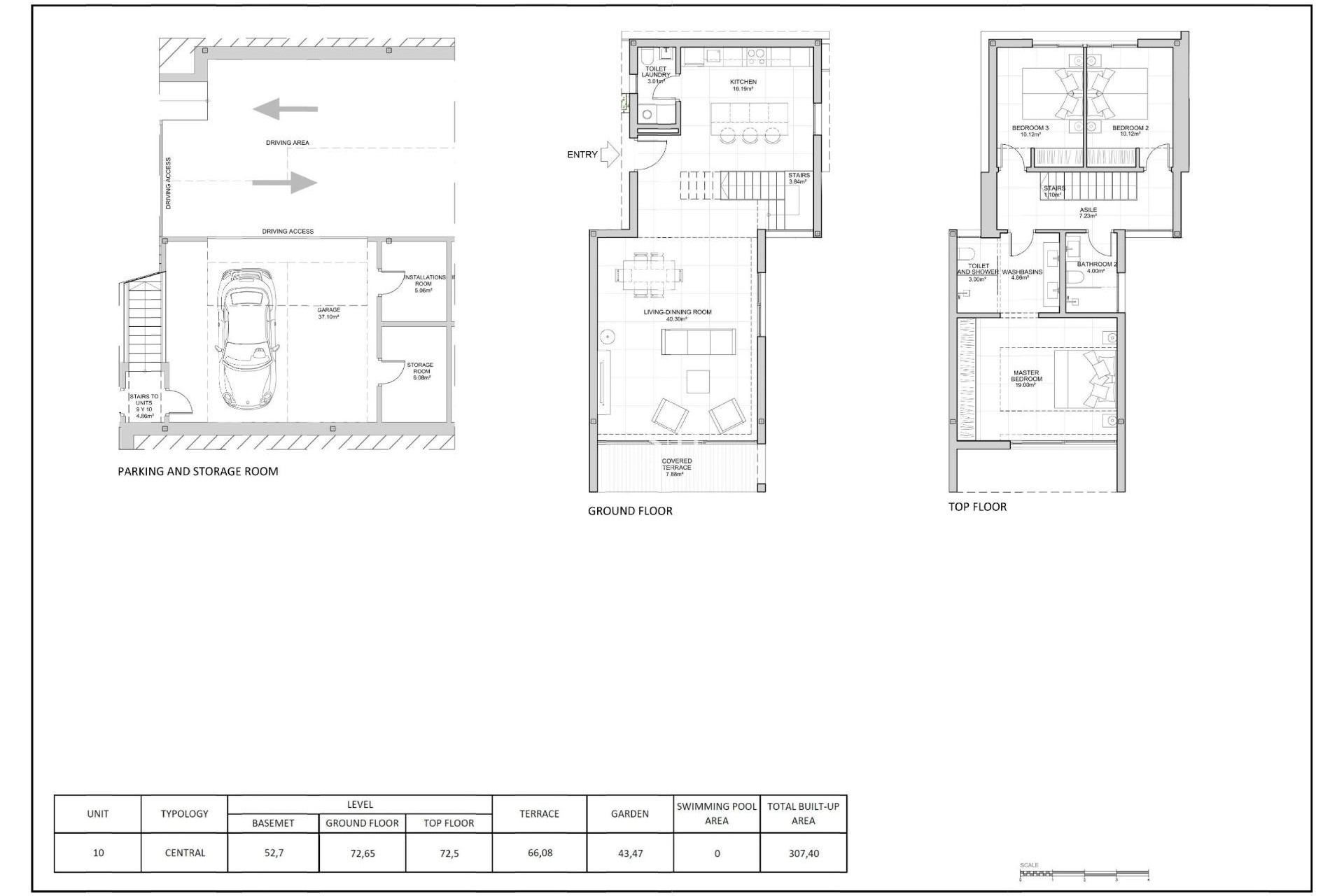
Wille z 3 i 4 sypialniami zostały zaprojektowane tak, aby zoptymalizować przestrzenie i relacje między różnymi obszarami.
W odległości zaledwie kilku minut jazdy samochodem znajduje się urocze miasteczko Mijas i jego starannie zachowane stare miasto z uroczymi wąskimi uliczkami, można wybrać się na zakupy do Marbelli lub Fuengiroli lub cieszyć się życiem nocnym w La Cala de Mijas lub Puerto Banús.
Wille położone są w spokojnej okolicy, zaledwie kilka minut jazdy od bajecznych plaż Costa del Sol, Chaparral Golf i tylko 20 minut od Marbelli i 30 minut od lotniska w Maladze.
Chaparral Golf Club to 18-dołkowe pole "Parkland Forest", otoczone śródziemnomorskim lasem. Obszar chroniony podkreśla typowe piękno regionu, w którym góry spotykają się z morzem. Chaparral Golf Club znajduje się w uprzywilejowanej lokalizacji, w samym sercu Andaluzji, w dolinie golfowej Mijas.