Exklusiv lyxvilla i Nueva Andalucia Marbella med förstklassiga bekvämligheter
Prestigefyllt läge i Marbellas golfdal
Upplev ett exceptionellt lyxigt boende i denna enastående nybyggda villa belägen i hjärtat av Nueva Andalucia, ett av Marbellas mest exklusiva bostadsområden. Omgiven av grönskande golfbanor och bara några minuter från världsberömda Puerto Banus, erbjuder denna fastighet raffinerad elegans, avskildhet och närhet till de finaste bekvämligheterna på Costa del Sol. Nueva Andalucia är känt för sina eleganta avenyer, prestigefyllda golfklubbar och fridfulla atmosfär, vilket ger en idealisk livsstil för dem som söker komfort och sofistikation.
Modern arkitektur och generösa bostadsytor
Denna exceptionella villa ligger på en rymlig tomt på mer än 1014 kvadratmeter och har en byggnadsyta på cirka 650 kvadratmeter, varav 534 kvadratmeter är avsedda för lyxigt boende. Den är designad med modern arkitektur, högt i tak och sömlös övergång mellan inomhus- och utomhusmiljö, vilket maximerar det naturliga ljuset och erbjuder en perfekt blandning av komfort och stil.
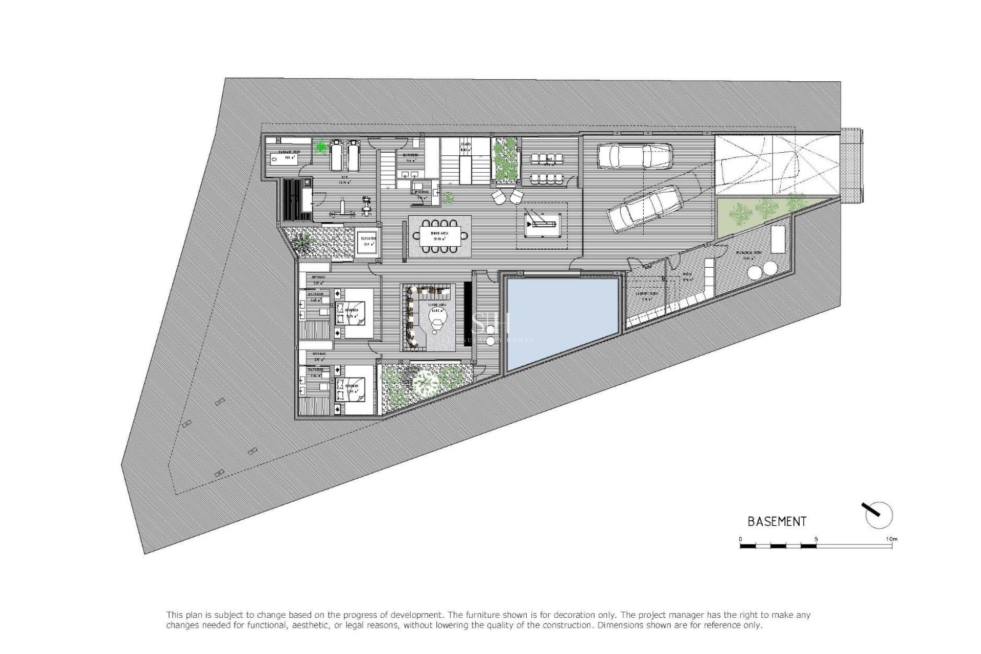
Lyxig interiör och rymlig planlösning
Huset har fem rymliga sovrum, alla med eget badrum, vilket skapar en privat oas för varje boende. Master bedroom har ett lyxigt badrum, klädkammare och lugn utsikt över den anlagda omgivningen. Två ytterligare gästbadrum tillför bekvämlighet och elegans. Det öppna vardagsrummet och matsalen flyter in i ett toppmodernt kök, utformat för både vardagsliv och extraordinära middagar.
Wellness- och underhållningsutrymmen
Denna villa erbjuder exceptionella livsstilsfaciliteter, inklusive ett fullt utrustat gym, lyxigt spa med bastu och hamam, ett biorum, en sofistikerad bar och spelrum samt en hiss. Det underjordiska garaget rymmer två bilar, med ytterligare parkering på bottenvåningen för ytterligare två fordon. Golvvärme med smart hemkontroll och luftkonditionering via Airzone-systemet garanterar komfort året runt.
Utomhusliv och privat pool
Villan är designad för elegant utomhusliv och har en stor terrass, utomhuskök och en fantastisk infinitypool omgiven av lummiga anlagda trädgårdar. Den perfekta miljön för avkoppling och underhållning i äkta medelhavsstil.
Avstånd till sevärdheter
Las Brisas Golf Club 1 km
Puerto Banus Marina 3 km
Aloha Golf Club 2 km
Marbella centrum 7 km
Malaga flygplats 60 km
Omfamna ett exklusivt medelhavsliv
Denna mästerliga villa erbjuder oöverträffad elegans och en privilegierad livsstil i ett av Marbellas mest eftertraktade lägen. Kontakta oss idag för att boka en privat visning och säkra denna extraordinära fastighet.