Exclusieve luxe villa in Nueva Andalucia Marbella met eersteklas voorzieningen
Exclusieve luxe villa in Nueva Andalucia Marbella met eersteklas voorzieningen
Prestigieuze locatie in de Golfvallei van Marbella
Ervaar uitzonderlijk luxe wonen in deze schitterende nieuwbouwwoning in het hart van Nueva Andalucia, een van de meest exclusieve woonwijken van Marbella. Omgeven door weelderige golfbanen en op slechts een steenworp afstand van het wereldberoemde Puerto Banus, biedt deze woning verfijnde elegantie, privacy en nabijheid tot de beste voorzieningen aan de Costa del Sol. Nueva Andalucia staat bekend om zijn elegante lanen, prestigieuze golfclubs en rustige sfeer, en biedt een ideale levensstijl voor wie op zoek is naar comfort en verfijning.
Moderne architectuur en royale leefruimtes
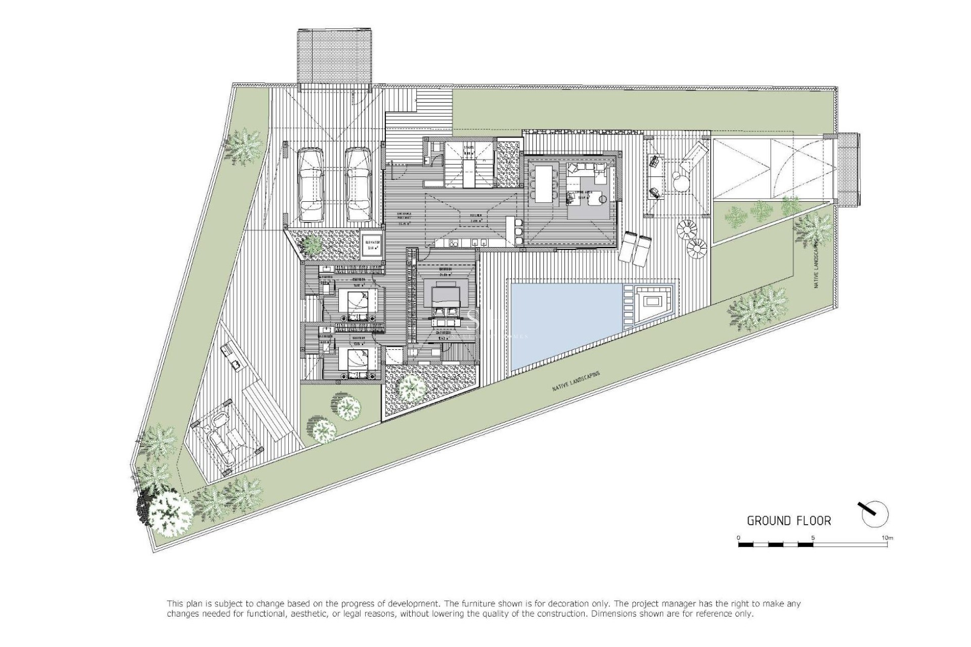
Deze uitzonderlijke villa ligt op een ruim perceel van meer dan 1014 vierkante meter en heeft een bebouwde oppervlakte van ongeveer 650 vierkante meter, waarvan 534 vierkante meter bestemd is voor een luxueus interieur. Het ontwerp met eigentijdse architectuur, hoge plafonds en een naadloze overgang tussen binnen en buiten maximaliseert het natuurlijke licht en biedt een perfecte mix van comfort en stijl.
Luxe interieur en ruime indeling
De woning heeft vijf ruime slaapkamers, elk met een eigen badkamer, waardoor elke bewoner een eigen privéruimte heeft. De master suite heeft een luxe badkamer, een inloopkleedkamer en een rustgevend uitzicht op de aangelegde omgeving. Twee extra gastenbadkamers zorgen voor extra gemak en elegantie. De open woon- en eetkamer loopt over in een ultramoderne keuken, ontworpen voor zowel het dagelijks leven als voor bijzondere gelegenheden.
Wellness- en entertainmentruimtes
Deze villa biedt uitzonderlijke lifestylevoorzieningen, waaronder een volledig uitgeruste fitnessruimte, een luxe spa met sauna en hamam, een bioscoopzaal, een verfijnde bar en speelkamer, en een lift. De ondergrondse garage biedt plaats aan twee auto's, met extra parkeergelegenheid op de begane grond voor nog twee voertuigen. Vloerverwarming met slimme huisbesturing en airconditioning via het Airzone-systeem zorgen het hele jaar door voor comfort.
Buitenleven en privézwembad
De villa is ontworpen voor een elegant buitenleven en beschikt over een ruim terras, een buitenkeuken en een prachtig overloopzwembad omgeven door weelderige aangelegde tuinen. De perfecte omgeving om te ontspannen en te entertainen in echte mediterrane stijl.
Afstanden tot bezienswaardigheden
Las Brisas Golf Club 1 km
Jachthaven Puerto Banús 3 km
Aloha Golf Club 2 km
Centrum van Marbella 7 km
Luchthaven Málaga 60 km
Omarm het exclusieve mediterrane leven
Deze meesterlijke villa biedt ongeëvenaarde elegantie en een bevoorrechte levensstijl op een van de meest gewilde locaties van Marbella. Neem vandaag nog contact met ons op om een privébezichtiging te regelen en deze buitengewone woning te bemachtigen.