Метры
200m2Участок
400m2Спальни
4Ванные комнаты
4Бассейн
даГотовая к заселению новая вилла с видом на море в Ла Альберка Полоп
Роскошная современная вилла в окружении природы
Эта готовая к заселению современная вилла расположена в Ла Альберка, тихом жилом районе Полопа, в окружении лесов и гор. Расположенная на возвышенности, вилла предлагает панорамный вид на Средиземное море, горы и исторический центр города Полоп. Вилла обеспечивает уединение, спокойствие и отличное транспортное сообщение с побережьем и близлежащими городами.
Полоп — очаровательная деревня в регионе Марина Байша на побережье Коста Бланка, известная своим традиционным характером и природным окружением. Недвижимость находится недалеко от всех удобств в Ла Нусия, включая магазины, рестораны, спортивные центры и школы, а пляжи и оживленные прибрежные города находятся всего в нескольких минутах езды.
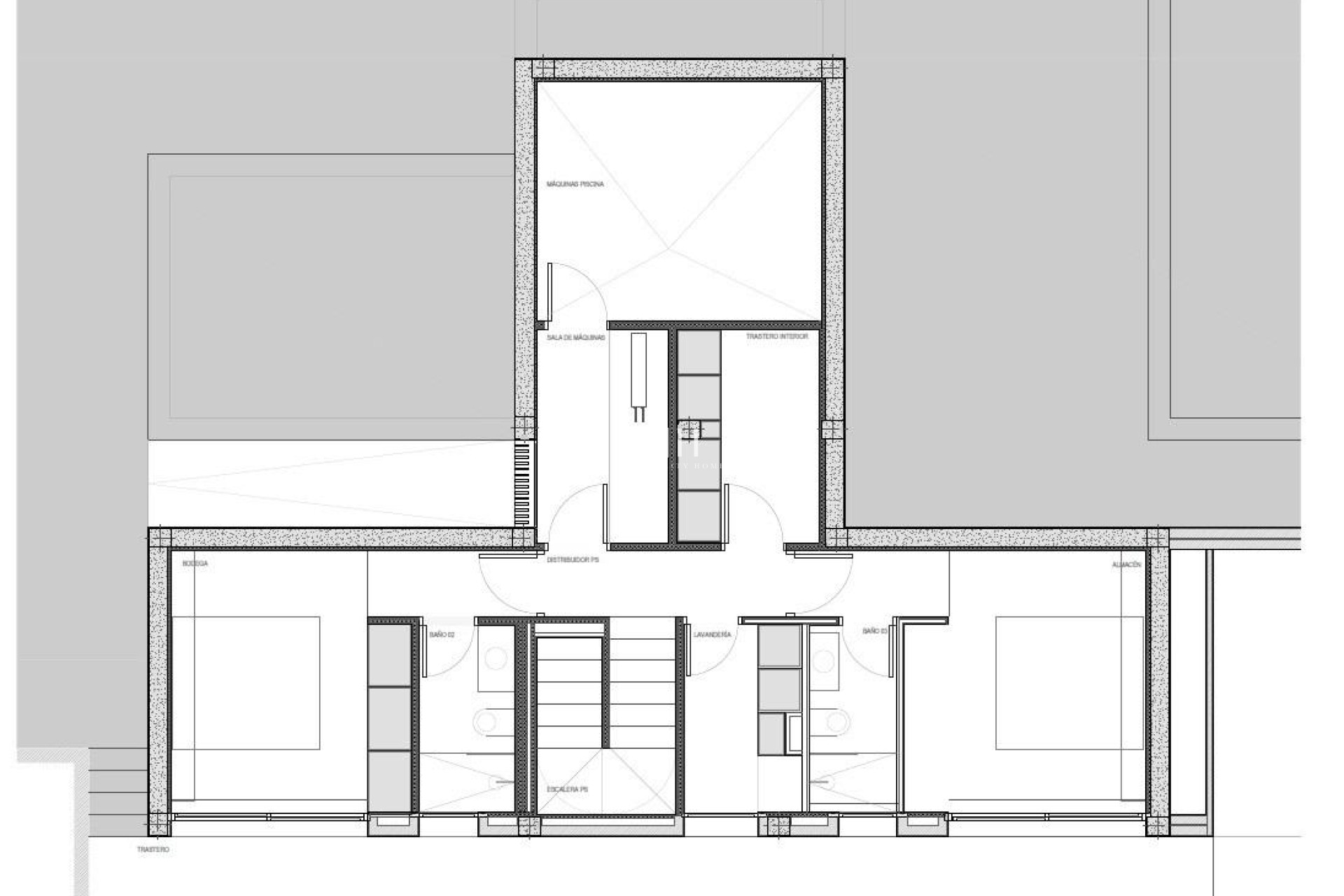
Просторная планировка на первом этаже, в подвале и на солнечной террасе
Вилла состоит из главного этажа, подвала и солярия на крыше, предлагая просторную жилую площадь и гибкость.
На главном этаже уютный вестибюль со встроенным шкафом ведет к двум спальням с ванными комнатами, включая главную спальню с подъемными окнами, выходящими на балкон Джульетты и террасу. Открытая гостиная и столовая плавно переходят в крытую террасу с перголой и частный бассейн с морской водой.
На цокольном этаже расположены две дополнительные спальни с ванными комнатами и большими окнами, универсальная игровая комната или кинозал с подключением к водопроводу и электричеству для бара, полностью оборудованная прачечная с техникой Haier и два технических помещения для хранения.
Солярий на крыше предлагает просторное открытое пространство с панорамным видом на море и подготовлен для будущей установки солнечных панелей. Открытая кухня, несколько шкафов для хранения и ландшафтный сад в средиземноморском стиле с автоматической системой полива дополняют экстерьер.
Высококлассные характеристики и энергоэффективность
Эта вилла выделяется своей высококачественной отделкой и современным оборудованием, в том числе:
Центральный кухонный остров со встроенной техникой BOSCH
Столешницы из натурального камня внутри и снаружи
Предварительная установка подогрева полов
Аэротермальная система кондиционирования Mitsubishi
Класс энергоэффективности A
Предварительная установка системы «умный дом»
Бассейн с морской водой и опциональным подогревом
Частная парковка на два автомобиля
Большие окна с солнцезащитным стеклом максимально увеличивают естественное освещение, обеспечивая комфорт и безопасность.
Отличное расположение и расстояния
Центр Полопа 2 км
Ла Нусия 4 км
Бенидорм 12 км
Альтеа 10 км
Пляжи 10 км
Villaitana Golf 14 км
Аэропорт Аликанте 65 км
Обеспечьте себе дом своей мечты в Полопе
Эта исключительная готовая к заселению вилла сочетает в себе уединение, дизайн и панорамные виды в одном из самых привлекательных внутренних районов Коста-Бланки. Свяжитесь с нами сегодня, чтобы договориться о частном просмотре и сделать эту роскошную виллу в Ла Альберка Полоп вашим новым домом.
4
4
200m2
100m2
400m2
да
8000 мтс.
Если вы хотите получить больше информации, свяжитесь с нами по WhatsApp или заполните следующую форму.