Современные двухуровневые апартаменты-лофты в центре Аликанте
Современные двухуровневые апартаменты-лофты в центре Аликанте
Эксклюзивный новый проект в районе Беналуа
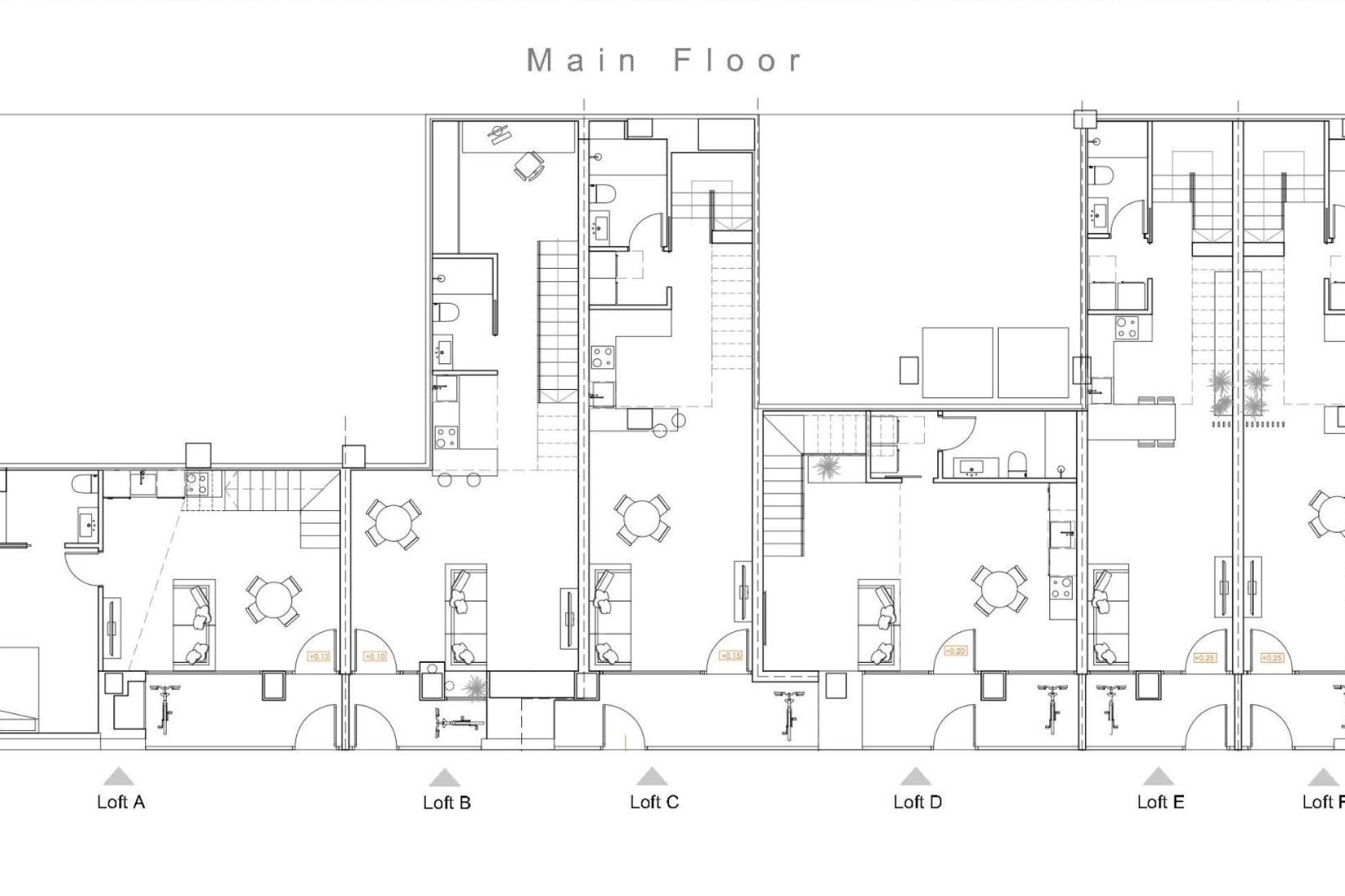
Откройте для себя исключительную возможность приобрести стильные двухуровневые апартаменты-лофты в Беналуа, одном из самых оживленных и удобно расположенных районов Аликанте. Этот уникальный проект преобразует шесть неиспользуемых коммерческих помещений в современные жилые лофты, предлагая современный городской образ жизни всего в 1 км от побережья Средиземного моря. Беналуа известен своими местными магазинами, кафе, культурной жизнью и близостью к центру города, что делает его очень популярным районом как для жителей, так и для инвесторов.
Современный дизайн в стиле лофт
Каждый дом был полностью перепроектирован, чтобы предложить свежее, открытое и элегантное жилое пространство. В рамках проекта предлагаются дуплексы с 1 и 2 спальнями и 2 ванными комнатами, все с впечатляющими помещениями двойной высоты, которые усиливают естественное освещение и создают настоящую атмосферу лофта. На верхнем этаже находится спальня и полностью оборудованная ванная комната, что обеспечивает уединение и комфорт.
Каждая квартира имеет отдельный вход с улицы и частную террасу, сочетая в себе современную архитектуру и практичное жилье. Высококачественная отделка, современная планировка и светлые интерьеры делают эти лофты отличным выбором для тех, кто ищет стиль и функциональность.
Комфорт и удобства для жильцов
Жильцы смогут пользоваться общим бассейном, расположенным в здании, который создает расслабляющую и освежающую атмосферу в теплые средиземноморские дни. Частные террасы и независимые входы добавляют дополнительный уровень удобства и эксклюзивности.
Выгодное расположение рядом с ключевыми достопримечательностями
Комплекс идеально расположен как для проживания, так и для инвестиций, в окружении необходимых услуг и основных достопримечательностей:
Пляж Аликанте: 1 км
Железнодорожный вокзал Renfe: 0,8 км
Торговый центр El Corte Inglés: 0,7 км
Дворец правосудия Аликанте: 0,5 км
Аэропорт Аликанте: 12 км
Пристань для яхт и порт Аликанте: 2 км
Поля для гольфа (Alicante Golf): 7 км
Район предлагает отличное транспортное сообщение, культурные объекты, зеленые зоны и легкий доступ к прекрасным пляжам города.
Умная инвестиция в прибрежный образ жизни Аликанте
Если вы ищете основное жилье, недвижимость для отдыха или инвестицию с высоким потенциалом сдачи в аренду, эти дуплексные лофт-апартаменты в Беналуа представляют собой уникальную возможность в одном из самых перспективных районов Аликанте.
Свяжитесь с нами сегодня, чтобы забронировать свой эксклюзивный лофт и насладиться современной жизнью в самом сердце Аликанте.