Роскошный курорт в Вильяхойосе - райский уголок на морском побережье
Роскошный курорт в Вильяхойосе - райский уголок на морском побережье
Откройте для себя уникальный жилой комплекс в Плайя-дель-Торрес
Расположенный менее чем в 5 минутах ходьбы от безмятежного Плайя-дель-Торрес в Вильяхойосе, этот эксклюзивный новый комплекс предлагает 164 современных апартамента и пентхауса с 1-3 спальнями. Разработанный для обеспечения идеального образа жизни, этот комплекс сочетает в себе роскошь, отдых и непревзойденные удобства в спокойной средиземноморской обстановке.
Исключительные удобства для всех жителей
Сердцем этого комплекса является Roof Top, расположенный на крыше блока 2. Это продуманное до мелочей пространство включает в себя потрясающий бассейн с панорамным видом, зоны чилл-аут, зону барбекю, многофункциональную зону и беседку, идеально подходящую для общения и отдыха.
Крытая социальная гостиная, идеально подходящая для изысканных обедов с друзьями или в качестве пространства для совместной работы.
Для любителей водных развлечений в комплексе предусмотрены:
Бассейны в тропическом стиле с выходом на пляж.
Бассейн с подогреваемой дорожкой, детский бассейн и джакузи с подогревом.
Любители фитнеса могут насладиться:
Крытый и открытый тренажерные залы, оборудованные гимнастическими снарядами.
Площадка для игры в путтинг-грин и мини-гольф для проведения досуга.
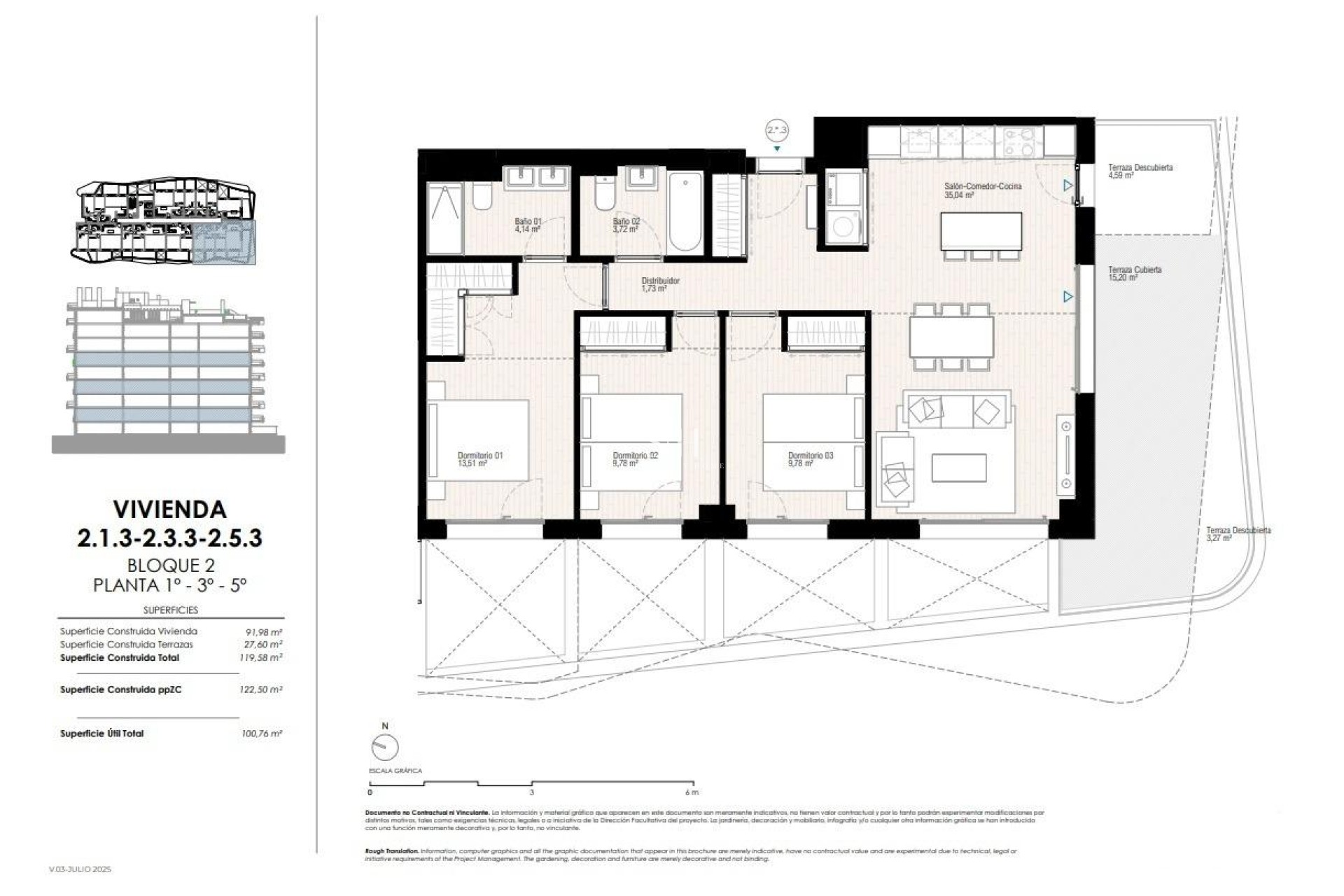
Современные дома с первоклассными характеристиками
Каждая квартира оснащена:
Полностью оборудованная кухня с высококачественной техникой, включая холодильник, микроволновую печь, духовку, посудомоечную машину и встроенную стиральную/сушильную машину.
Энергоэффективные аэротермальные системы для горячей воды и кондиционирования воздуха.
Лучистый подогрев пола в ванных комнатах.
Высококачественные окна из ПВХ с теплоизоляцией и двойным остеклением.
Частная парковка и кладовка для дополнительного удобства.
Здание имеет энергетический рейтинг A, что обеспечивает максимальную эффективность и экологичность.
Идеальное расположение в Вильяхойосе
Расположенный в Плайя-дель-Торрес, этот комплекс предлагает спокойное уединение в окружении природной красоты. Кристально чистые воды пляжа и бирюзовые оттенки создают идиллический фон для релаксации. Комплекс удобно расположен:
2 км от очаровательного центра города Вильяхойоса.
В 10 км от Бенидорма с его бурной ночной жизнью и магазинами.
30 минут на машине до аэропорта Аликанте.
Вильяхойоса, известная своими красочными домами и богатой историей, остается подлинной жемчужиной Средиземноморья. Недавно признанный «Лучшим секретным направлением в Европе 2024» по версии European Best Destinations, этот город сочетает в себе традиции, природную красоту и спокойствие.
Дом вашей мечты ждет вас в Плайя-дель-Торрес
Ощутите все лучшее от современной жизни в природном раю. Благодаря своему первоклассному расположению, роскошным удобствам и современному дизайну этот комплекс идеально подходит для тех, кто ищет дом у моря. Свяжитесь с нами сегодня, чтобы запланировать визит и сделать эту потрясающую недвижимость своей!