НОВЫЕ РОСКОШНЫЕ ВИЛЛЫ В ОКРЕСТНОСТЯХ МАРБЕЛЬИ
НОВЫЕ РОСКОШНЫЕ ВИЛЛЫ В ОКРЕСТНОСТЯХ МАРБЕЛЬИ
Расположенный в знаменитом анклаве Нуэва Андалусия, новый проект предлагает жителям роскошный отдых, воплощающий истинную сущность роскошной жизни. Благодаря своему привилегированному расположению в Нуэва Андалусия, жители получают удобный доступ к множеству близлежащих удобств, а также захватывающие виды на окружающие горы и море. Урбанизация представляет собой святилище инноваций и роскоши, являясь свидетельством синергии современного дизайна и элегантности, неподвластной времени. Жителям предоставляется возможность вести возвышенный образ жизни, сочетая в себе лучшие элементы архитектуры, безопасности и персонализации.
Этот дальновидный проект переосмысливает концепцию современной урбанизации, предлагая беспрецедентный образ жизни, характеризующийся изысканностью, безопасностью и дизайнерской изобретательностью. Состоящая из 26 новых вилл класса люкс, урбанизация представляет собой гармоничное сочетание архитектурного великолепия и функциональной элегантности. Виллы, спроектированные дальновидным архитектором Исмаэлем Меридой, представляют собой современные чудеса, каждая из которых занимает три уровня, включая солярий и цокольный этаж, объединенные первым этажом. Обращенные к кардинальным направлениям - югу, востоку, юго-востоку и западу, виллы принимают солнечный свет, отбрасывая чарующие оттенки и тени в течение дня.
Что действительно отличает этот проект, так это инновационный подход к циркуляции автотранспорта. Под жилыми домами проложена оригинально спроектированная аллея, обеспечивающая движение автомобилей, а также доступ к частным гаражам и навесам, незаметно скрытым от глаз. С воздуха в глаза бросается не сеть дорог, а сеть пешеходных дорожек и пышных ландшафтов, под которыми спрятаны автомобили, подъезжающие к гаражам и навесам. Эта притягательная особенность не только повышает эстетическую привлекательность, но и создает атмосферу безмятежности.
Погруженный в спокойствие закрытого сообщества с круглосуточным наблюдением, урбанизация обеспечивает атмосферу полного душевного спокойствия. Охранник, стоящий у входа, добавляет дополнительный уровень безопасности и уверенности. Единый вход и выход не только повышают безопасность, но и способствуют ощущению уединения и приватности, которые определяют этот эксклюзивный анклав. Жители могут быть уверены, что только они будут иметь доступ в сообщество, а гостям будет предоставлен доступ по согласованию.
Разнообразие процветает в этой урбанизации с тремя различными типологиями. Небольшие и средние резиденции отличаются изысканным сходством, а более крупные двухуровневые виллы предлагают просторную жизнь в большом масштабе. Доступны пакеты модернизации, которые позволят жителям приспособить виллу к своим желаниям. 23 дома отличаются гармоничной симметрией размеров, обеспечивая постоянную и привлекательную атмосферу во всем сообществе. 23 дома разделены на 2 типологии: Типология A, разработанная GC-Studio, и Типология B, разработанная J. A. Flores. Дополнительный уровень отличия придают 3 флагманские виллы Signature Villas, которые являются знаковыми вехами престижа, каждая из которых излучает свой собственный неповторимый шарм. Эти 3 виллы относятся к типологии C, разработанной Педро Пенья. Все виллы имеют не только собственные индивидуальные удобства, такие как развлекательные комнаты, домашние кинотеатры и домашние спортзалы, но и доступ к общим удобствам, таким как невероятный тренажерный зал и ультрасовременный SPA-центр с крытым бассейном, хаммамом, сауной и ледяной баней.
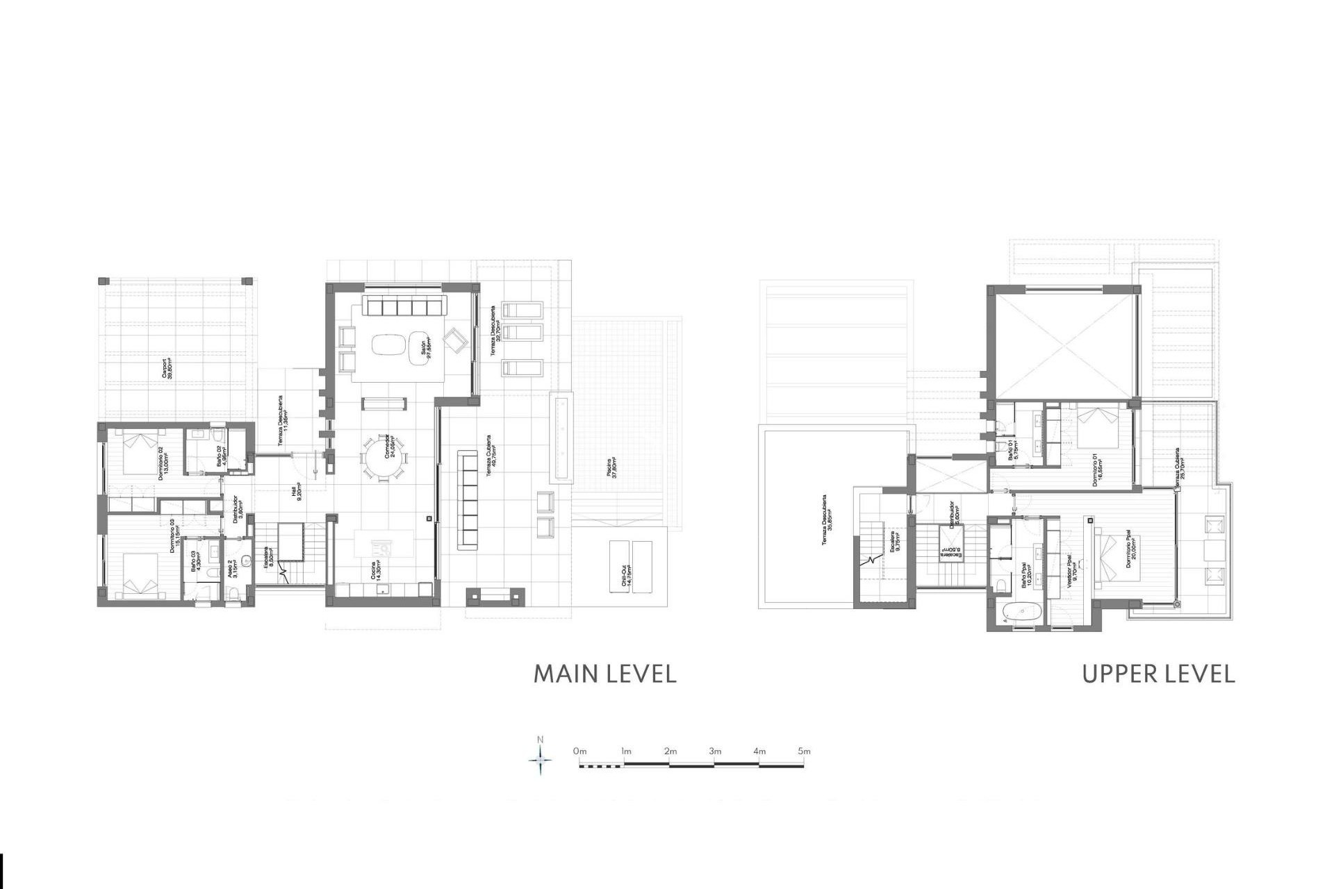
Виллы типологии B, относящиеся к категории среднеразмерных резиденций, демонстрируют невероятный дизайн интерьера, разработанный известным дизайнером Х. А. Флоресом.
Эта категория включает в себя четыре отдельных подтипа: B1, B2, B3 и B4.
Как и в случае с типологией A, основными отличиями между ними являются ориентация, распределение спален по уровням и возможность установки частного гаража или навеса. В частности, подтипы B1 и B3 предоставляют жильцам доступ к частному гаражу, а подтипы B2 и B4 - к частному гаражу.
Все виллы типологии B могут похвастаться потрясающими экстерьерами с ухоженными садами и частными бассейнами-инфинити. Эти резиденции оснащены такими удобствами, как домашний тренажерный зал, домашний кинотеатр и уровень развлечений, что повышает общий уровень жизни. Эксклюзивность каждой виллы повышается благодаря невероятному солярию, предлагающему жильцам приватное пространство для развлечений, отдыха и захватывающих видов.
Общие пространства комплекса свидетельствуют о его приверженности оздоровительному отдыху. Роскошный SPA-центр и современный тренажерный зал заботятся о физическом благополучии жильцов, а тщательно ухоженные сады создают условия для релаксации. SPA-центр располагает такими роскошными удобствами, как крытый бассейн, хаммам, сауна и ледяная ванна, которые продуманы до мелочей, чтобы улучшить образ жизни жильцов. Сады общего пользования безупречно ухожены и предлагают жителям зеленую территорию, идеально подходящую для отдыха.