НОВЫЕ ВИЛЛЫ В ФУЭНТЕ АЛАМО, МУРСИЯ
НОВЫЕ ВИЛЛЫ В ФУЭНТЕ АЛАМО, МУРСИЯ
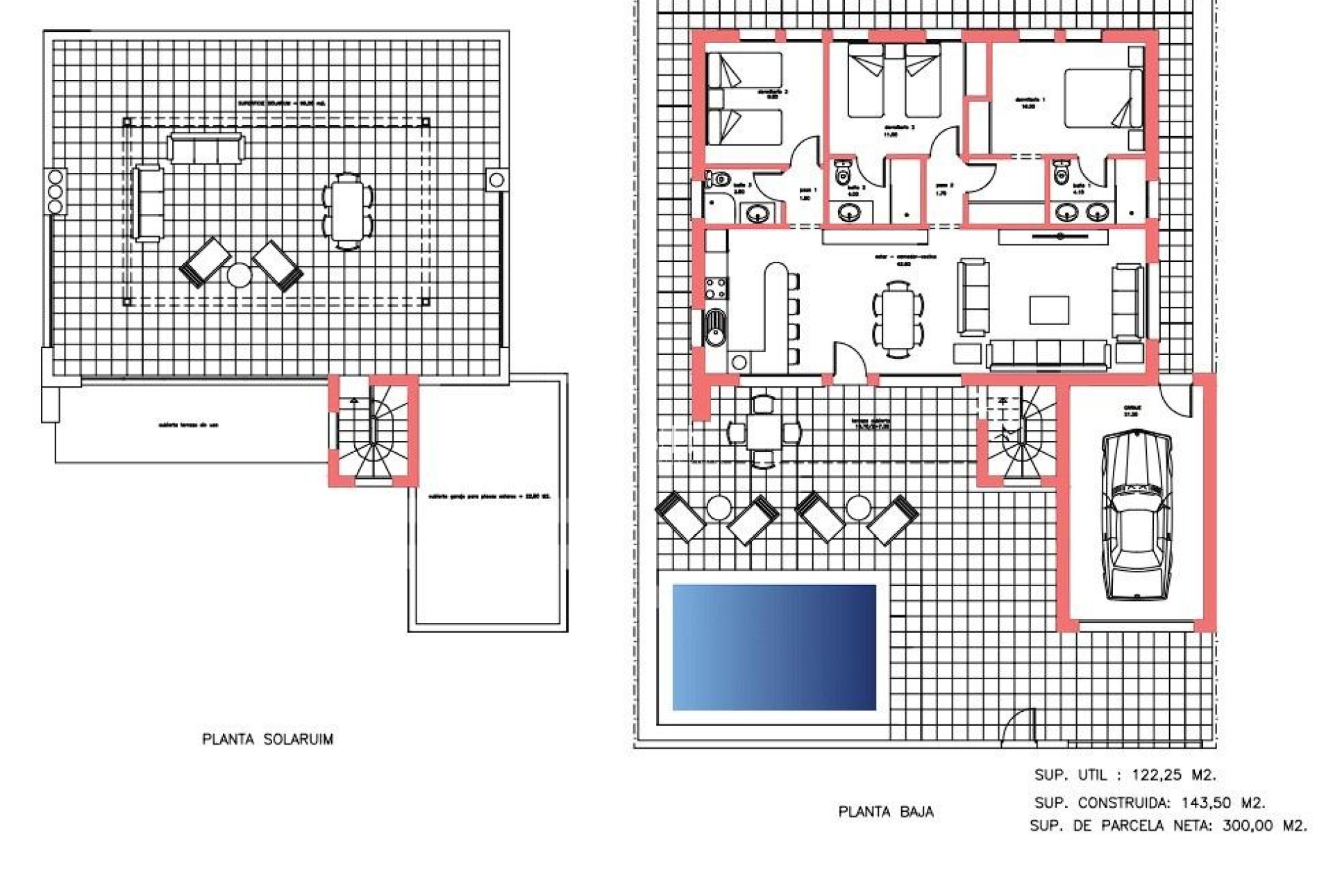
Новый жилой комплекс вилл и таунхаусов в Фуэнте-Аламо, Мурсия.
Это место предлагает исключительное природное окружение, вдали от шума и суеты больших городов и туристического давления на побережье. Кроме того, мы стремимся работать с точки зрения устойчивого развития, минимизируя воздействие на окружающую среду и максимально интегрируясь с местным сообществом. Здесь сбываются ваши мечты о спокойном и устойчивом образе жизни. Представьте себе, что каждое утро вы просыпаетесь в потрясающей природной обстановке, в окружении безмятежных пейзажей и уникальной красоты сельской местности Мурсии.
В новых проектах уделяется особое внимание энергоэффективности, использованию экологически чистых материалов и гармоничной интеграции с сельской средой. От проектирования недвижимости до планирования застройки мы стремимся сократить выбросы углекислого газа и внедряем ответственную практику во всех видах деятельности.
При разработке проектов приоритет отдается энергоэффективности и интеграции с местным сообществом для создания высококачественного жилья в гармонии с окружающей средой.
Предварительная установка канальной системы кондиционирования, горячего/холодного воздуха, установка автоматов в опциях.
Видеодомофонная система.
Входная дверь, покрытая цветным лаком, с замком и антивандальной защитной фурнитурой.
Шкафы с багажником, обшитые изнутри, лакированные в белый цвет.
Кухонная мебель не входит в стоимость (по желанию):
- Меблирована настенными и базовыми шкафами. Полностью оборудована. Возможна любая модификация по желанию клиента.
- Каменная столешница.
- Мойка из нержавеющей стали, со смесителями Roca или аналогичными.
- Витрокерамическая варочная панель, вытяжка и электрическая духовка из нержавеющей стали. Balay или аналогичные.
Система фотоэлектрических солнечных панелей с накопительным баком. Предварительная установка канальной системы кондиционирования, горячего/холодного воздуха, установка техники в опциях.
Опционально за дополнительную плату частный бассейн с погружной ночной подсветкой и очисткой с помощью системы солевого хлорирования.
Возможность внесения изменений в недвижимость, при условии предварительной оценки, одобренной обеими сторонами.
Фуэнте-Аламо-де-Мурсия - город и муниципалитет в регионе Мурсия, на юге Испании. Он расположен в 22 км к северо-западу от Картахены и в 35 км к юго-западу от Мурсии.
Город лежит в бассейне реки Мар Менор, окруженной горами Альгарробо, Лос-Гомес, Лос-Викториас и Карраской. Вода с этих гор стекает в Рамбла-де-Фуэнте-Аламо, а затем в Мар-Менор.
Фуэнте-Аламо расположен в 30 минутах езды от аэропорта Мурсии - Корвера.