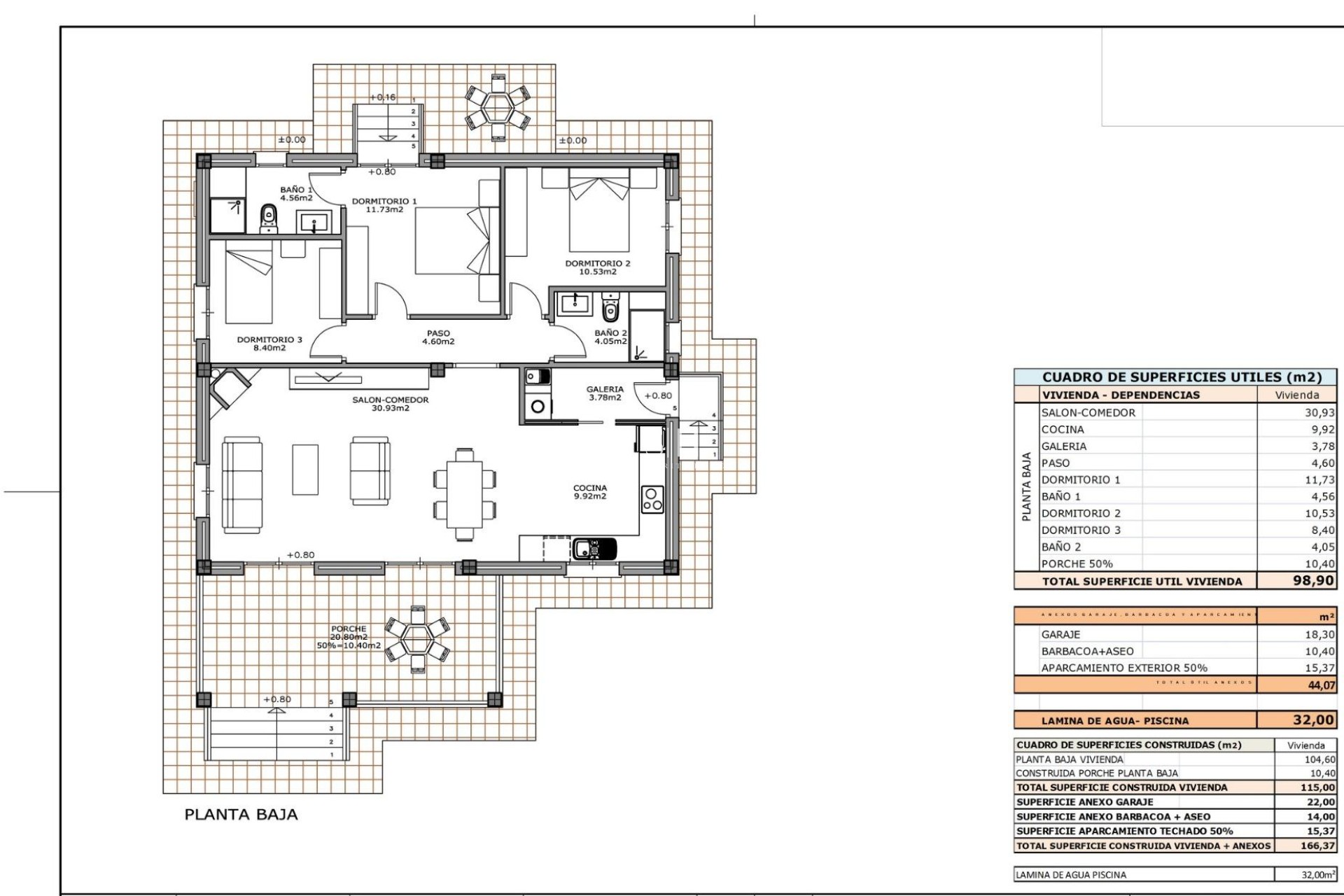
Метры
120m2Участок
10.000m2Спальни
3Ванные комнаты
2Бассейн
даНОВЫЕ ВИЛЛЫ В ПИНОСО
Вы можете выбрать виллы с традиционными испанскими элементами или суперсовременной отделкой, светлые и чистые.
Различные законные участки под застройку (деревенские площадью не менее 10.000 м2), некоторые в пешей доступности от города, некоторые полностью уединенные, а наши самые популярные участки находятся в 5-10 минутах езды от города.
У нас есть участок на любой вкус, все с удивительными видами, все с водоснабжением + электричеством, включенным в цену, и высокоскоростным интернетом.
Мы предлагаем дома от самого крупного и лучшего застройщика в этом районе и используем высококачественные материалы для идеальной отделки.
Все дома включают 2-метровую террасу из штампованного бетона вокруг бассейна (цвет и рисунок на выбор), 1-метровую террасу вокруг дома, закрытый вход, ограждение площадью 3.000 м2, предварительно установленный канальный кондиционер, стандартная кухня, бронированная дверь, немецкие поворотно-откидные окна (или раздвижные, если хотите), встроенный камин и дымоход, предварительная установка телевизора и интернета, гравийная подъездная дорога плюс несколько метров вокруг дома, септик.
Ванные комнаты включают в себя душевую колонну, душевой поддон или ванну, раковины (различных цветов на выбор) с раковинами, кранами и зеркалами, а также большой выбор настенной плитки.
Широкий выбор напольной керамической плитки, различные цвета, эффект дерева и т.д.
Кухни включают в себя шкафы со стандартными дверцами и ручками, согласно предоставленным планам, мойку из нержавеющей стали и краны, предварительную установку духовки, посудомоечной машины, вытяжки. Различные гранитные столешницы на выбор включены в бюджет, другие каменные столешницы доступны в качестве дополнения. Бытовая техника не входит в стоимость.
Мраморная лестница (кремовая, белая или серая) и перила включены в стоимость, а также перила для крыльца.
Большое фиксированное стеклянное окно на лестнице для дополнительного освещения.
Выбор плитки и дизайна ступеней для бассейна. Выбор гранита для наружных ступеней и оконных отливов.
Вы можете доработать дом под себя, большинство внутренних изменений бесплатны, дома могут быть расширены, и мы даже можем построить дом по вашему собственному проекту.
За дополнительную плату вы можете приобрести бассейн большего размера, одинарный или двойной гараж, гостевой дом и т. д.
Красивый и процветающий городок Пиносо находится примерно в 45 минутах езды от Аликанте и белоснежных пляжей Коста-Бланки, недалеко от границы с Мурсией и Аликанте.
Его население составляет чуть менее 8 000 человек. Пиносо, также известный как Эль Пинос, назван в честь сосен, которые покрывают горные хребты района. Пиносо - это испанский сельский образ жизни, здесь нет светофоров, почти нет движения, практически единственные пробки возникают из-за тракторов, везущих виноград в бодегу. Поля засажены виноградниками, миндалем и оливками. В феврале на полях расцветает розовый миндаль.
В Пиносо много баров, ресторанов и магазинов, новый круглосуточный медицинский центр, стоматология, две начальные и одна средняя школы, театр. Здесь есть отличный спортивный центр с открытыми бассейнами, теннисными кортами, футбольными полями и гимнастическим залом, библиотека и многие другие объекты, включая красивую зону для пикников среди сосен с барбекю, местами для отдыха и водопроводом.
3
2
120m2
98m2
10.000m2
да
50000 мтс.
Если вы хотите получить больше информации, свяжитесь с нами по WhatsApp или заполните следующую форму.