Метры
141m2Участок
213m2Спальни
3Ванные комнаты
4Бассейн
даНОВЫЕ ВИЛЛЫ В ЛА НУСИИ
Новое строительство комфортабельных и роскошных вилл с частными бассейнами в Ла Нусия.
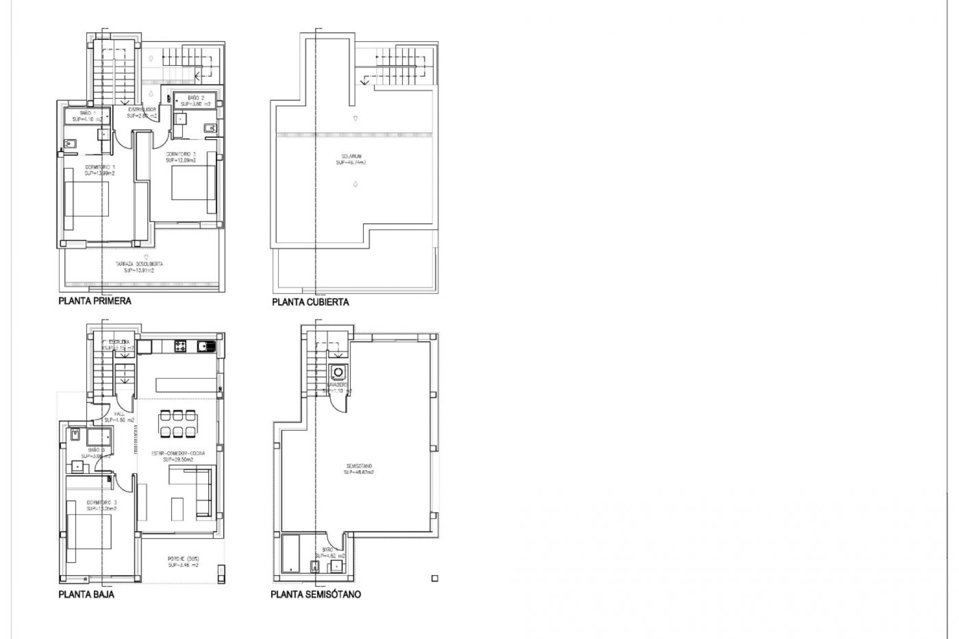
Виллы состоят из 3 больших двухместных комнат со встроенными и выстроенными шкафами. Одна комната находится на первом этаже, а две другие на втором.
Она состоит из 4 полностью отделанных ванных комнат со стеклянными экранами, фарфоровыми унитазами и термостатическими кранами в душевых, одна на первом этаже, другая в гараже и две другие ванные комнаты в комнатах на втором этаже.
Светлая гостиная с большими окнами, которые дают доступ к частному участку с бассейном и искусственной травой, где вы можете наслаждаться и отдыхать.
Полностью оборудованная американская кухня с настенными и базовыми шкафами, высококлассной бытовой техникой и островом с базовыми шкафами, столешницей SILESTONE со встроенной раковиной из нержавеющей стали и дизайнерской вытяжкой из нержавеющей стали.
Установка системы кондиционирования и отопления через воздуховоды AEROTHERMAL с 2 независимыми машинами (двухзонная).
Комфорт и дизайн PORCELANOSA обеспечивают эксклюзивную отделку, такую как плавающие полы, полы из натурального камня и керамогранит высшего качества.Вся вилла имеет внутреннее и внешнее светодиодное освещение и электрические жалюзи.
Жилье расположено в эксклюзивном районе с высоким качеством и всеми удобствами; терраса, солярий, частный гараж на 2 автомобиля, садовые участки, урбанизация, бассейн и все, что вы можете себе представить.
Жилье, заботящееся об окружающей среде, оборудовано солнечными батареями для производства горячей воды, светодиодным освещением и ТЕРМАЛЬНО-АКУСТИЧЕСКОЙ изоляцией.
Ла Нусия - муниципалитет в комарке Марина Байша, Аликанте. Он граничит с муниципалитетами Алтеа, Каллоза-д'Эн-Саррия, Бенидорм, Полоп и Л'Альфас-дель-Пи.
Ла Нусия расположена во фруктовой долине между Бенидормом и Каллоза-д'Эн-Сарриа, в 3 км от побережья Алтеи. Городской центр находится на мысе с видом на Средиземное море, в 51 км к северу от Аликанте и в 8 км к северу от Бенидорма.
РАССТОЯНИЕ:
- Подъезд с шоссе А.
- 5 минут от Терра Митика.
- 5 минут от школы ELIANS.
- В 5 минутах от супермаркетов, кафе и всех видов услуг.
- В 10 минутах от пляжа Бенидорм.
- 15 минут от Плайя-дель-Альбир.
- 20 минут от замка Гуадалест.
- 40 км от аэропорта Аликанте-Эльче.
3
4
141m2
120m2
213m2
да
6000 мтс.
Если вы хотите получить больше информации, свяжитесь с нами по WhatsApp или заполните следующую форму.