Элитные таунхаусы в Эль-Лимонар (город Малага): эксклюзивное проживание рядом с пляжем
Элитные таунхаусы в Эль-Лимонар (город Малага): эксклюзивное проживание рядом с пляжем
Бутиковый жилой комплекс в одном из самых престижных районов Малаги
Откройте для себя этот эксклюзивный бутиковый жилой комплекс, состоящий всего из четырёх элегантных таунхаусов, расположенный в Эль-Лимонар — одном из самых востребованных и престижных районов Малаги. Известный своей утонченной жилой атмосферой, усаженными деревьями улицами и близостью к морю, Эль-Лимонар предлагает идеальный баланс между спокойствием и городской жизнью.
Эти исключительные дома расположены всего в 700 метрах от пляжа Ла-Малагета, что позволяет вам с легкостью наслаждаться средиземноморским образом жизни. Малага — это оживленный прибрежный город, сочетающий в себе богатое культурное наследие, гастрономию мирового уровня и космополитическую атмосферу, что делает его одним из самых привлекательных направлений на Коста-дель-Соль.
Современный дизайн с просторными и функциональными планировками
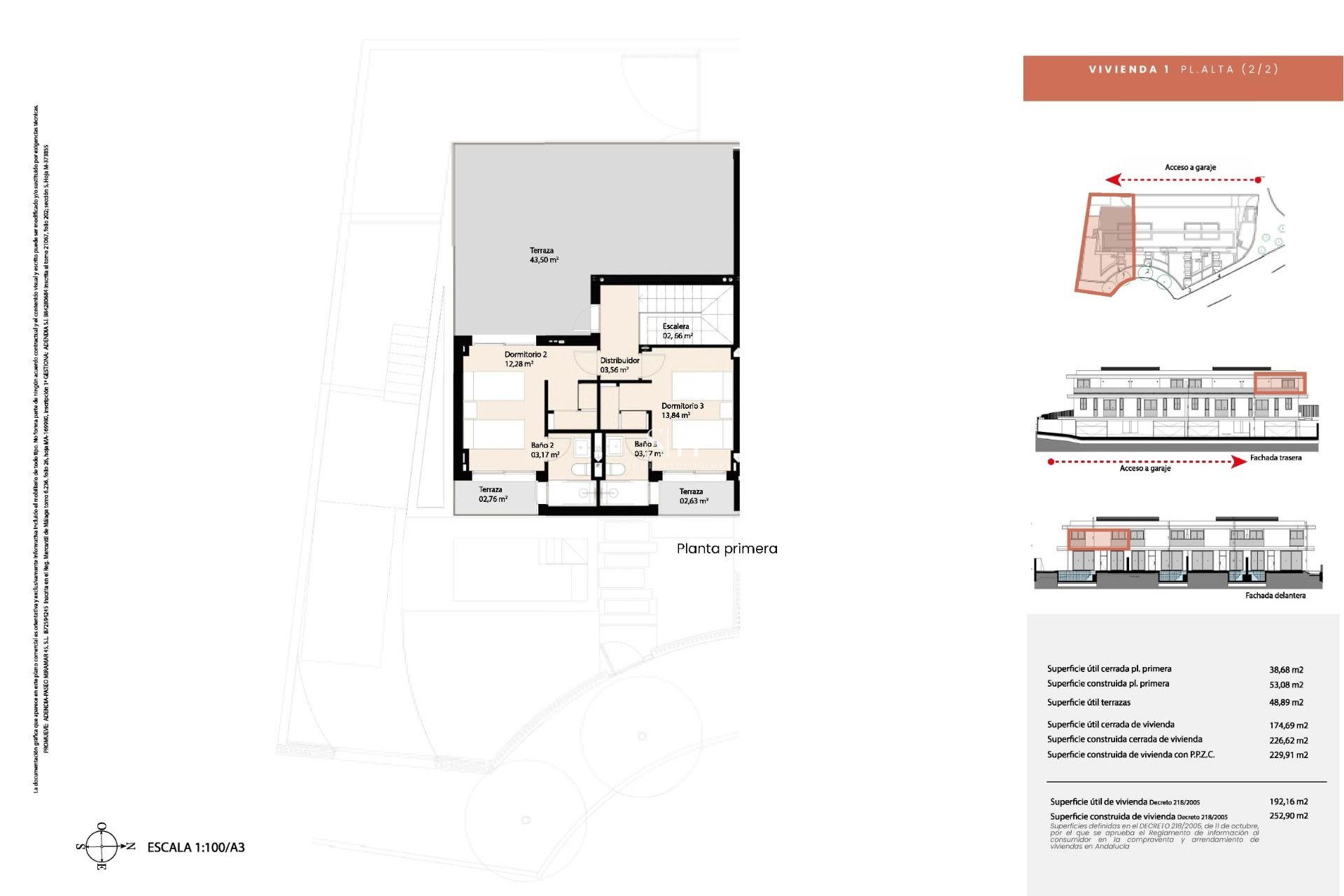
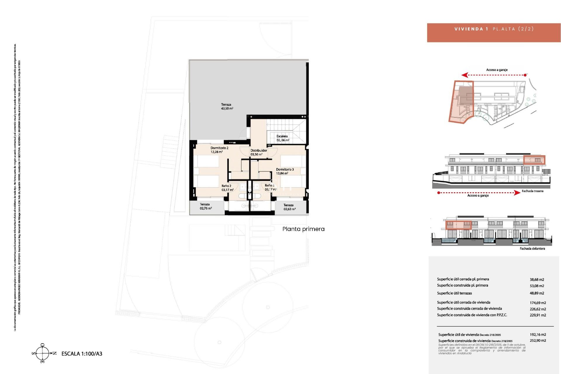
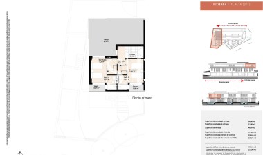
Каждый таунхаус тщательно спроектирован на трех уровнях, включая первый этаж, второй этаж и подвал, предлагая просторные жилые помещения, обеспечивающие комфорт и функциональность.
На уровне подвала предусмотрена частная парковка и дополнительное место для хранения вещей, а открытые зоны включают частный сад и бассейн, идеально подходящие для отдыха в полной уединенности. Угловые дома имеют более просторные сады, что делает жизнь на открытом воздухе еще более приятной.
Большие окна от пола до потолка пропускают в интерьер обилие естественного света, создавая плавную связь между внутренними и внешними пространствами.
Элегантные интерьеры с высококачественной отделкой
Главная жилая зона представляет собой открытую планировку с полностью оборудованной кухней, оснащенной высококачественной бытовой техникой, которая плавно переходит в гостиную и столовую.
В доме три просторные спальни, каждая с собственной ванной комнатой и ориентацией на восток, что обеспечивает яркие и уютные помещения по утрам. Высококачественная отделка от Porcelanosa отражает стремление к качеству, стилю и долговечности во всем доме.
Передовые технологии и энергоэффективность
Эти дома спроектированы с учетом современного образа жизни и оснащены передовыми системами домашней автоматизации, позволяющими легко управлять освещением, климатом и безопасностью.
Энергоэффективность является ключевой особенностью: фотоэлектрические солнечные панели и класс энергоэффективности A обеспечивают более низкое энергопотребление и экологическую устойчивость. Дополнительные особенности включают полы с подогревом, канальную систему кондиционирования и аэротермальную систему для нагрева горячей воды.
Выгодное расположение с отличной транспортной доступностью
El Limonar предлагает отличный доступ к ключевым достопримечательностям. Центр Малаги находится всего в 2 км, международный аэропорт Малаги — примерно в 12 км, а до нескольких полей для гольфа можно добраться за 10–15 км. Порт Малаги также находится примерно в 3 км от комплекса.
Идеальный дом или инвестиционная возможность на Коста-дель-Соль
Эти роскошные таунхаусы представляют собой редкую возможность приобрести современную недвижимость в одном из самых эксклюзивных жилых районов Малаги, рядом с пляжем и всеми удобствами.
Свяжитесь с нами сегодня, чтобы получить дополнительную информацию или договориться о частном просмотре и обеспечить себе новый дом в El Limonar (город Малага).
655