Meters
208m2Plot
400m2Bedrooms
4Bathrooms
3Pool
YesNew Build Luxury Villa with Sea Views in La Alberca Polop
Contemporary Design in a Peaceful Mountain Setting
This exceptional new build villa is located in La Alberca, a quiet residential area in the mountains of Polop. Surrounded by forest and nature, the property offers panoramic views of the Mediterranean Sea, the mountains and the historic town of Polop. Designed with vertical architectural elegance, the villa combines privacy, functionality and seamless indoor outdoor living.
Polop is a charming Costa Blanca village known for its traditional atmosphere and natural beauty. The villa is close to all services in La Nucia, including shops, restaurants, sports centers and schools. The beaches and lively coastal towns such as Benidorm and Altea are just 15 minutes away.
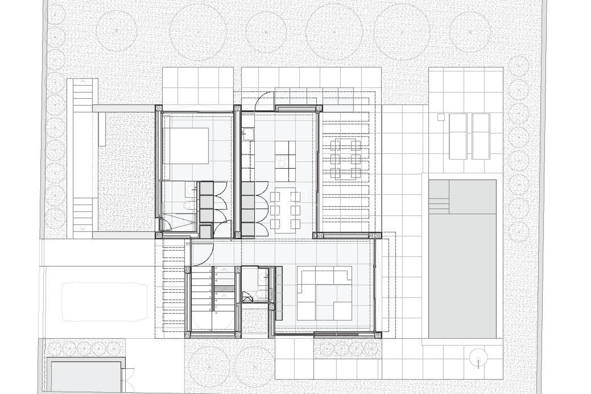
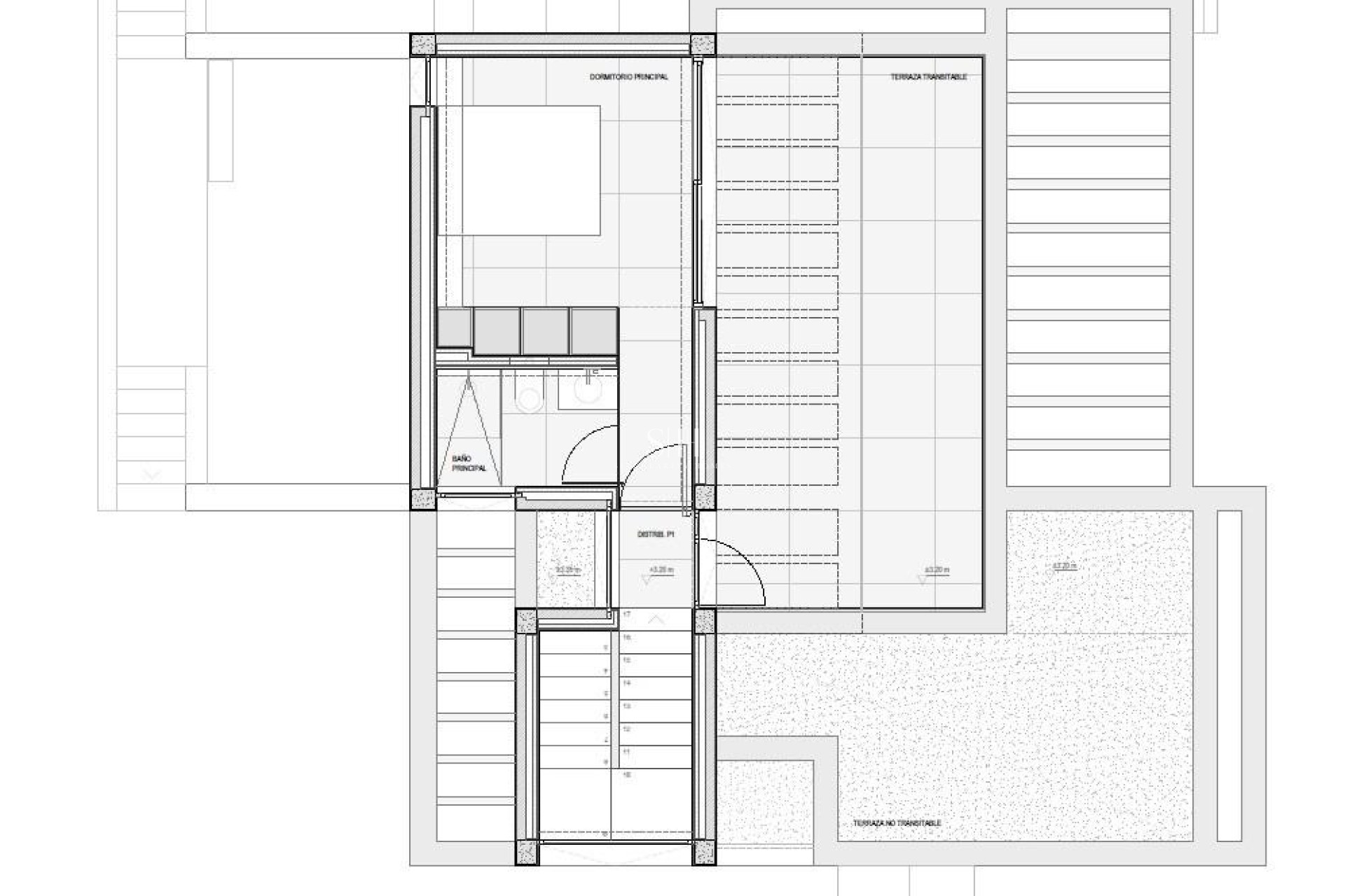
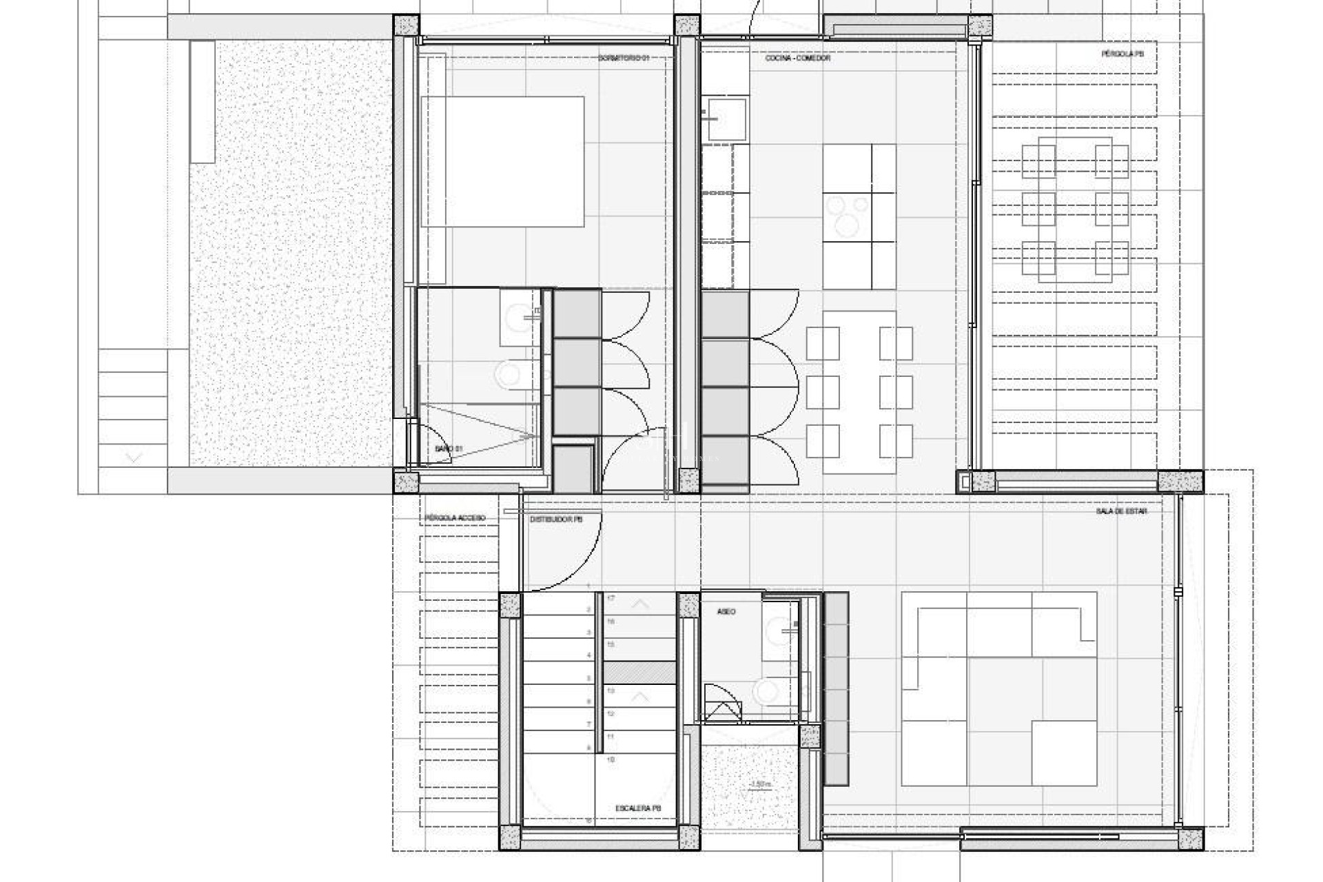
Thoughtfully Designed Distribution Across Three Levels
The main floor welcomes you with an entrance hall featuring a built in wardrobe and guest restroom. This level includes one en suite bedroom with floor to ceiling elevable window doors opening onto a private side terrace. The bright open plan living and dining area connects directly to a pergola covered terrace and the private saltwater swimming pool, creating a harmonious indoor outdoor lifestyle.
The top floor is dedicated exclusively to the master suite. This private level offers an en suite bedroom with access to a spectacular 40 m2 terrace and breathtaking panoramic sea and mountain views, ensuring maximum privacy and comfort.
The basement level features two additional bedrooms with large windows overlooking a beautifully designed sunken courtyard that fills the space with natural light. A shared bathroom, fully equipped laundry room with Haier appliances and two spacious technical and storage rooms complete this floor.
Premium Features and Energy Efficiency
The villa includes high quality finishes and advanced systems, such as:
Central island kitchen with integrated BOSCH appliances
Natural stone countertops indoors and outdoors
Panoramic windows with sun protected reinforced glass
Mitsubishi aerothermal air conditioning system
Underfloor heating pre installation
Energy efficiency rating Class A
Pre installation for smart home system
Private parking for two vehicles
The landscaped Mediterranean garden with automatic irrigation and an elegant lower level courtyard enhance privacy and relaxation. The roof level is prepared for solar panel installation.
Excellent Location and Distances
Polop center 2 km
La Nucia 4 km
Benidorm beaches 12 km
Altea 10 km
Villaitana Golf 14 km
Alicante Airport 65 km
Discover Your Private Retreat in Polop
This modern sea view villa offers design, privacy and comfort in one of the most attractive natural settings on the Costa Blanca. Contact us today to arrange a private viewing and secure your new home in La Alberca Polop.
4
3
208m2
139m2
400m2
Yes
8000 Mts.
If you would like more information you can contact by Whatsapp or by filling in the following form.