Metry
163m2Działka
100m2Sypialnie
3Łazienki
2Basen
TakNowe domy szeregowe z solarium i garażem w piwnicy w Bigastro Vega Baja
Ekskluzywna inwestycja obejmująca tylko dwa nowoczesne domy
Ten butikowy projekt obejmuje tylko dwa domy szeregowe w spokojnej miejscowości Bigastro, położonej w regionie Vega Baja na południowym wybrzeżu Costa Blanca. Domy te, zaprojektowane z praktycznym rozkładem na kilku poziomach, łączą przestrzeń, komfort i energooszczędność w dobrze skomunikowanej okolicy mieszkalnej.
Bigastro słynie z spokojnej atmosfery, tradycyjnego hiszpańskiego charakteru i doskonałego dostępu do pobliskich miast, plaż i usług. Oferuje relaksujący styl życia, a jednocześnie znajduje się w pobliżu wszystkiego, co potrzebne do codziennego życia, co czyni je idealnym miejscem zarówno do stałego zamieszkania, jak i na wakacje.
Przestronny układ na czterech poziomach
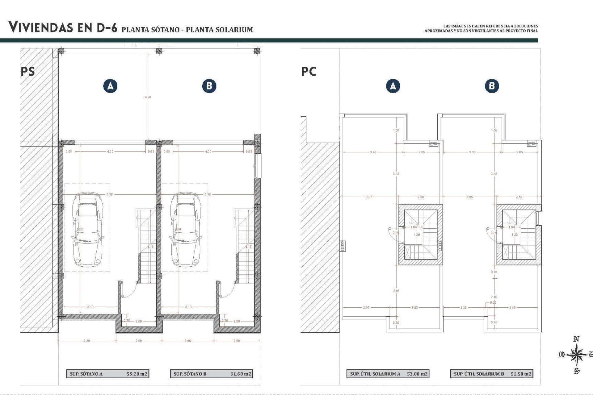
Każda nieruchomość składa się z piwnicy, parteru, pierwszego piętra i solarium na dachu, zapewniając przestronne wnętrza i zewnętrzne strefy mieszkalne.
Piwnica o powierzchni 59 m2 została zaprojektowana jako prywatny garaż z automatyczną bramą, oferujący bezpieczne miejsce parkingowe i dodatkową przestrzeń do przechowywania.
Na parterze znajduje się jasny salon z otwartą kuchnią, toaleta dla gości oraz dwa tarasy, jeden z przodu i jeden z tyłu, zapewniające naturalne światło i wentylację przez cały dzień.
Na pierwszym piętrze znajdują się 3 sypialnie i 2 łazienki, z których jedna jest łazienką przy sypialni, a także dodatkowy taras. Na najwyższym poziomie prywatne solarium na dachu o powierzchni około 40 m2 stanowi idealne miejsce do relaksu, opalania się lub stworzenia strefy wypoczynkowej na świeżym powietrzu.
Wysokiej jakości wyposażenie i energooszczędne systemy
Domy te zostały zbudowane z nowoczesnych materiałów i przemyślanych detali, aby zapewnić komfort i wydajność, w tym:
Wzmocnione drzwi wejściowe
System aerotermiczny do podgrzewania wody
Fotowoltaiczne panele słoneczne
Elektryczne rolety w salonie i sypialniach
Preinstalacja klimatyzacji kanałowej
Zmotoryzowana brama garażowa
Mieszkańcy mają również dostęp do wspólnego basenu na terenie urbanizacji, co stanowi dodatkową wartość dla wypoczynku i relaksu.
Dobrze skomunikowana lokalizacja w pobliżu plaż i usług
Centrum miasta Bigastro 0,5 km
Miasto Orihuela 5 km
Plaże Guardamar del Segura 15 km
Centrum handlowe Zenia Boulevard 20 km
Szpital Vega Baja 10 km
Międzynarodowe lotnisko w Alicante 48 km
Kilka pól golfowych w promieniu 15 km
Pobliska autostrada AP 7 zapewnia szybkie połączenia z Alicante, Murcją i okolicznymi nadmorskimi miastami.
Doskonała okazja w rozwijającej się dzielnicy mieszkaniowej
Dzięki lokalnym sklepom, szkołom, obiektom sportowym, parkom i restauracjom Bigastro staje się coraz bardziej popularne wśród krajowych i międzynarodowych nabywców poszukujących wysokiej jakości życia i dobrych połączeń komunikacyjnych.
Skontaktuj się z nami już dziś, aby uzyskać więcej informacji lub umówić się na wizytę w tych ekskluzywnych, nowo wybudowanych kamienicach w Bigastro.
2026-07-01
3
2
163m2
103m2
100m2
Tak
22000 Mts.
Jeśli chcesz uzyskać więcej informacji, możesz skontaktować się z nami przez WhatsApp lub wypełniając poniższy formularz.