Meter
163m2Parzelle
100m2Schlafzimmer
3Badezimmer
2Pool
JaNeubau-Reihenhäuser mit Solarium und Tiefgarage in Bigastro Vega Baja
Exklusive Wohnanlage mit nur zwei modernen Häusern
Dieses Boutique-Neubauprojekt besteht aus nur zwei Reihenhäusern in der ruhigen Stadt Bigastro, die in der Region Vega Baja an der Costa Blanca Süd liegt. Diese Häuser wurden mit einem praktischen Grundriss über mehrere Ebenen hinweg entworfen und verbinden Platz, Komfort und Energieeffizienz in einer gut angebundenen Wohngegend.
Bigastro ist bekannt für seine ruhige Atmosphäre, seinen traditionellen spanischen Charakter und die hervorragende Anbindung an nahegelegene Städte, Strände und Dienstleistungen. Es bietet einen entspannten Lebensstil und liegt gleichzeitig in der Nähe aller Annehmlichkeiten des täglichen Lebens, was es sowohl für den dauerhaften Wohnsitz als auch für den Urlaub ideal macht.
Großzügiger Grundriss auf vier Ebenen
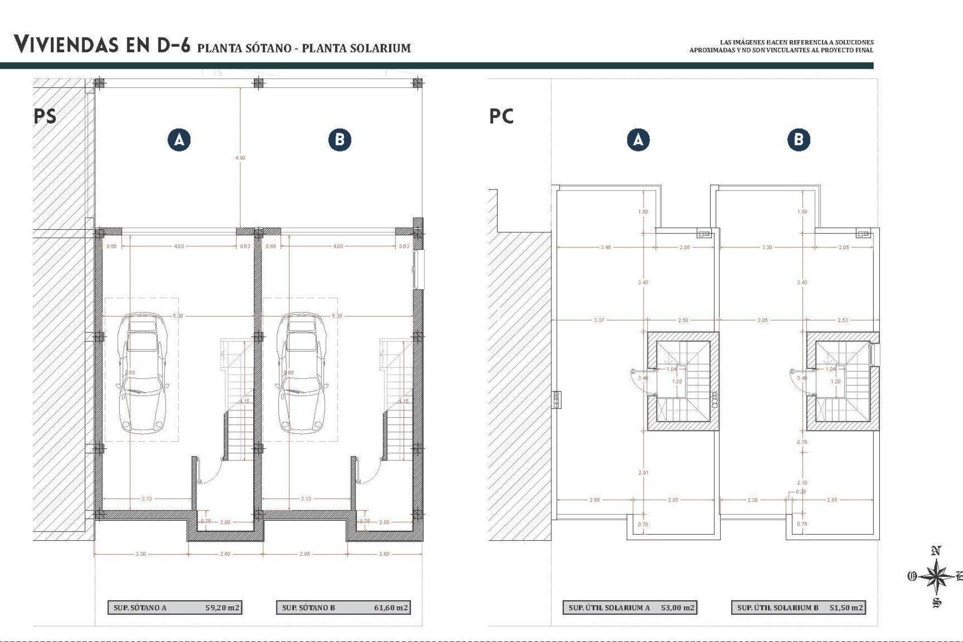
Jede Immobilie erstreckt sich über Keller, Erdgeschoss, Obergeschoss und Dachsolarium und bietet großzügige Innen- und Außenwohnbereiche.
Das 59 m² große Untergeschoss ist als private Garage mit motorisiertem Zugangstor konzipiert und bietet sicheren Parkplatz und zusätzlichen Stauraum.
Im Erdgeschoss finden Sie ein helles, offenes Wohnzimmer mit Küche, eine Gästetoilette und zwei Terrassen, eine auf der Vorder- und eine auf der Rückseite, die den ganzen Tag über für natürliches Licht und Belüftung sorgen.
Im ersten Stock befinden sich 3 Schlafzimmer und 2 Badezimmer, eines davon en suite, sowie eine zusätzliche Terrasse. Auf der obersten Etage bietet ein privates Dachsolarium von ca. 40 m² den perfekten Raum zum Entspannen, Sonnenbaden oder zum Einrichten eines Chill-out-Bereichs im Freien.
Hochwertige Ausstattung und energieeffiziente Systeme
Diese Häuser sind mit modernen Materialien und durchdachten Details gebaut, um Komfort und Effizienz zu gewährleisten, darunter
Verstärkte Sicherheitseingangstür
Aerothermisches System für Warmwasser
Photovoltaik-Solarmodul
Elektrische Rollläden im Wohnzimmer und in den Schlafzimmern
Vorinstallation für eine Klimaanlage mit Luftkanälen
Motorisierte Garagentür
Die Bewohner haben außerdem Zugang zum Gemeinschaftspool innerhalb der Urbanisation, was einen zusätzlichen Mehrwert für Freizeit und Entspannung darstellt.
Gute Verkehrsanbindung in der Nähe von Stränden und Dienstleistungen
Stadtzentrum von Bigastro 0,5 km
Stadt Orihuela 5 km
Strände von Guardamar del Segura 15 km
Einkaufszentrum Zenia Boulevard 20 km
Krankenhaus Vega Baja 10 km
Internationaler Flughafen Alicante 48 km
Mehrere Golfplätze im Umkreis von 15 km
Die nahe gelegene Autobahn AP 7 bietet eine schnelle Anbindung an Alicante, Murcia und die umliegenden Küstenstädte.
Eine ausgezeichnete Gelegenheit in einer wachsenden Wohngegend
Mit lokalen Geschäften, Schulen, Sportanlagen, Parks und Restaurants wird Bigastro sowohl bei nationalen als auch bei internationalen Käufern, die Lebensqualität und gute Verkehrsanbindung suchen, immer beliebter.
Kontaktieren Sie uns noch heute, um weitere Informationen zu erhalten oder einen Besichtigungstermin für diese exklusiven Neubau-Reihenhäuser in Bigastro zu vereinbaren.
2026-07-01
3
2
163m2
103m2
100m2
Ja
22000 Mts.
Wenn Sie weitere Informationen wünschen, können Sie per WhatsApp Kontakt aufnehmen oder das folgende Formular ausfüllen.