Nowoczesna willa z panoramicznym widokiem na morze w La Fustera, Benissa Costa
Nowoczesna willa z panoramicznym widokiem na morze w La Fustera, Benissa Costa
Ta ekskluzywna, nowo wybudowana willa, zaprojektowana przez znanego architekta i zrealizowana przez lokalnego dewelopera z ponad 20-letnim doświadczeniem, położona jest na działce o powierzchni 800 m², zaledwie kilka kroków od plaży La Fustera.
Łącząc śródziemnomorskie ciepło z nowoczesną elegancją, architektura łączy naturalny kamień, drewno i delikatne neutralne odcienie, płynnie wtapiając się w nadmorski krajobraz.
Dzięki całkowitej powierzchni zabudowy wynoszącej 716 m² rozmieszczonej na trzech poziomach – piwnicy, parterze i pierwszym piętrze – willa oferuje idealną równowagę między funkcjonalnością, designem i komfortem.
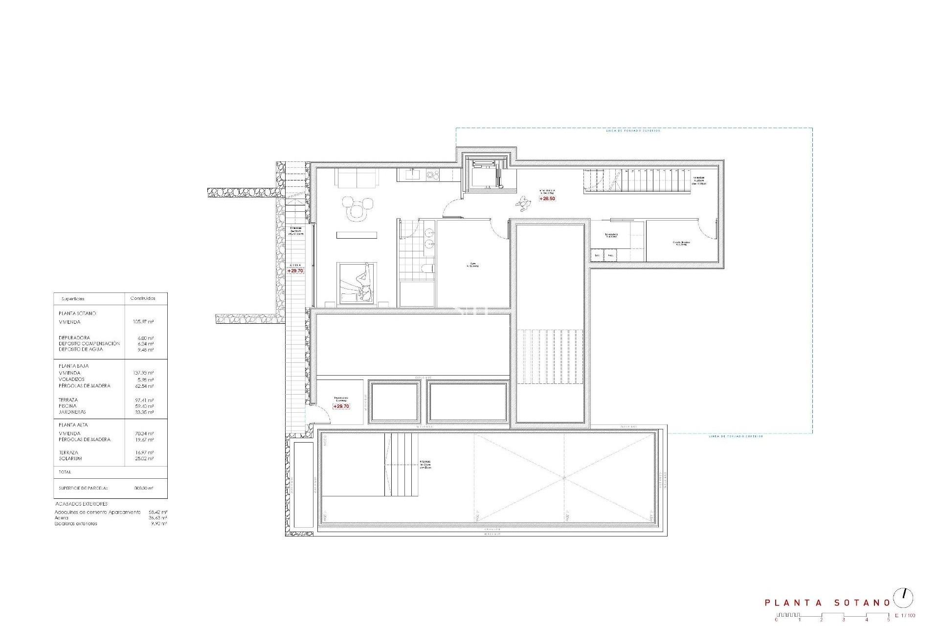
Parter
Dolna kondygnacja o powierzchni 105,97 m² została zaprojektowana z myślą zarówno o praktyczności, jak i wypoczynku. Znajduje się tu w pełni wyposażona siłownia, pralnia i pomieszczenia techniczne, z możliwością adaptacji dodatkowych przestrzeni na piwniczkę z winami, kino lub salę wielofunkcyjną. Na tym poziomie znajduje się również system filtracji basenu i zbiorniki na wodę, zapewniające efektywne zarządzanie wszystkimi instalacjami technicznymi.
Parter
Główny poziom o powierzchni 137,93 m² rozciąga się w jasnym, otwartym układzie, który oddaje esencję śródziemnomorskiego stylu życia. Przestronny salon, jadalnia i kuchnia otwierają się przez duże okna sięgające od podłogi do sufitu na główny taras i basen bez krawędzi, tworząc niesamowitą panoramę morza, która definiuje charakter tego domu.
Dwie sypialnie dwuosobowe, w pełni wyposażona łazienka i toaleta dla gości uzupełniają tę kondygnację, zapewniając komfort i funkcjonalność. Na zewnątrz drewniana pergola zapewnia cień w salonie i jadalni na świeżym powietrzu, otoczonych bujnymi ogrodami, tarasami słonecznymi i basenem bez krawędzi o powierzchni 59,40 m², który wizualnie łączy się z morzem.
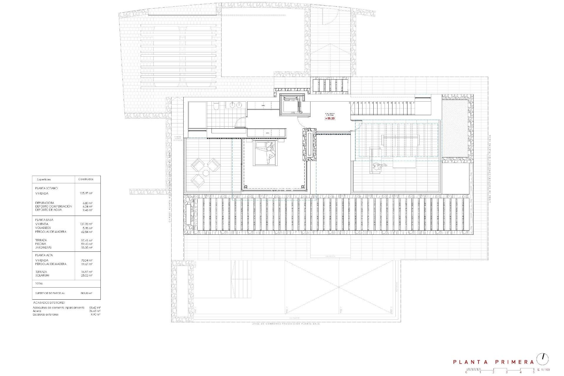
Pierwsze piętro
Górny poziom o powierzchni 70,19 m² jest zarezerwowany dla apartamentu głównego - prywatnego zacisza z garderobą, łazienką i dużym prywatnym tarasem z zapierającym dech w piersiach widokiem na Morze Śródziemne. Drugą sypialnię lub przestrzeń biurową uzupełnia to piętro, które zapewnia również dostęp do solarium o powierzchni 25,02 m², idealnego do relaksu w słońcu i cieszenia się spokojem otoczenia.
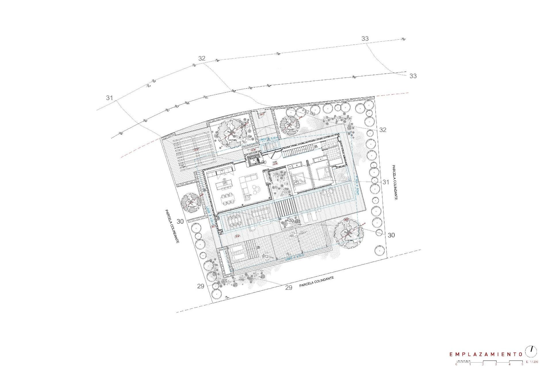
Wygląd zewnętrzny i lokalizacja
Położona przy cichej ulicy mieszkalnej, w otoczeniu nowoczesnych willi, nieruchomość ta cieszy się wyjątkową lokalizacją, zaledwie 3 minuty spacerem od plaży La Fustera (150 m), baru i restauracji Mandala Beach Bar & Restaurant oraz niezbędnych udogodnień, takich jak supermarkety i lokalne usługi.
Zaprojektowana z naciskiem na światło, przestrzeń i płynne przejście między wnętrzem a otoczeniem zewnętrznym, willa ta uosabia nowoczesny śródziemnomorski styl życia – elegancki, relaksujący i idealnie harmonizujący ze spektakularnymi panoramicznymi widokami na morze.
Zabezpiecz swoją wymarzoną willę w La Fustera, Benissa Costa, i ciesz się najlepszym śródziemnomorskim stylem życia z zapierającymi dech w piersiach widokami na morze i niezrównanym komfortem.