Moderne Villa mit Panoramablick auf das Meer in La Fustera, Benissa Costa
Moderne Villa mit Panoramablick auf das Meer in La Fustera, Benissa Costa
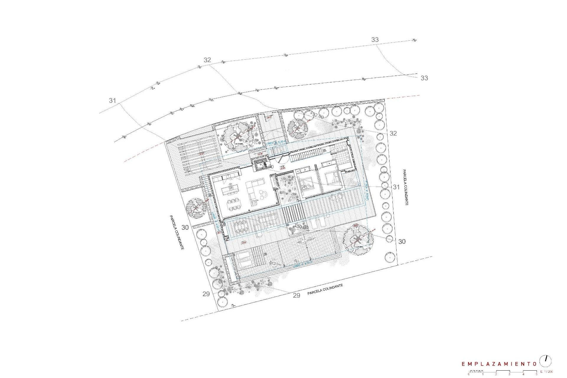
Diese exklusive Neubauvilla, die von einem renommierten Architekten entworfen und von einem lokalen Bauträger mit mehr als 20 Jahren Erfahrung entwickelt wurde, befindet sich auf einem 800 m² großen Grundstück, nur wenige Schritte vom Strand La Fustera entfernt.
Die Architektur verbindet mediterrane Wärme mit zeitgenössischer Eleganz und kombiniert Naturstein, Holz und sanfte, neutrale Farbtöne, die sich nahtlos in die Küstenlandschaft einfügen.
Mit einer Gesamtfläche von 716 m², verteilt auf drei Ebenen – Untergeschoss, Erdgeschoss und erster Stock – bietet die Villa eine perfekte Balance zwischen Funktionalität, Design und Komfort.
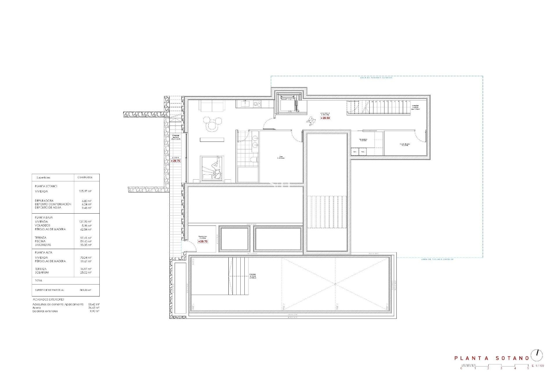
Untergeschoss
Die untere Etage mit 105,97 m² ist sowohl auf Praktikabilität als auch auf Freizeitgestaltung ausgelegt. Sie umfasst einen voll ausgestatteten Fitnessraum, eine Waschküche und Technikräume, mit der Möglichkeit, zusätzliche Räume als Weinkeller, Kino oder Mehrzweckraum zu nutzen. Auf dieser Ebene befinden sich auch das Filtersystem und die Wassertanks des Pools, wodurch eine effiziente Verwaltung aller technischen Anlagen gewährleistet ist.
Erdgeschoss
Die Hauptetage mit 137,93 m² präsentiert sich in einem hellen, offenen Grundriss, der die Essenz des mediterranen Lebens einfängt. Das geräumige Wohnzimmer, der Essbereich und die Küche öffnen sich durch große, vom Boden bis zur Decke reichende Fenster zur Hauptterrasse und zum Infinity-Pool und rahmen den unglaublichen Panoramablick auf das Meer ein, der den Charakter dieses Hauses ausmacht.
Zwei Doppelschlafzimmer, ein komplettes Badezimmer und eine Gästetoilette vervollständigen diese Etage und bieten Komfort und Funktionalität. Im Außenbereich spendet eine Holzpergola Schatten für den Lounge- und Essbereich, der von üppigen Gärten, Sonnenterrassen und einem 59,40 m² großen Infinity-Pool umgeben ist, der optisch mit dem Meer verschmilzt.
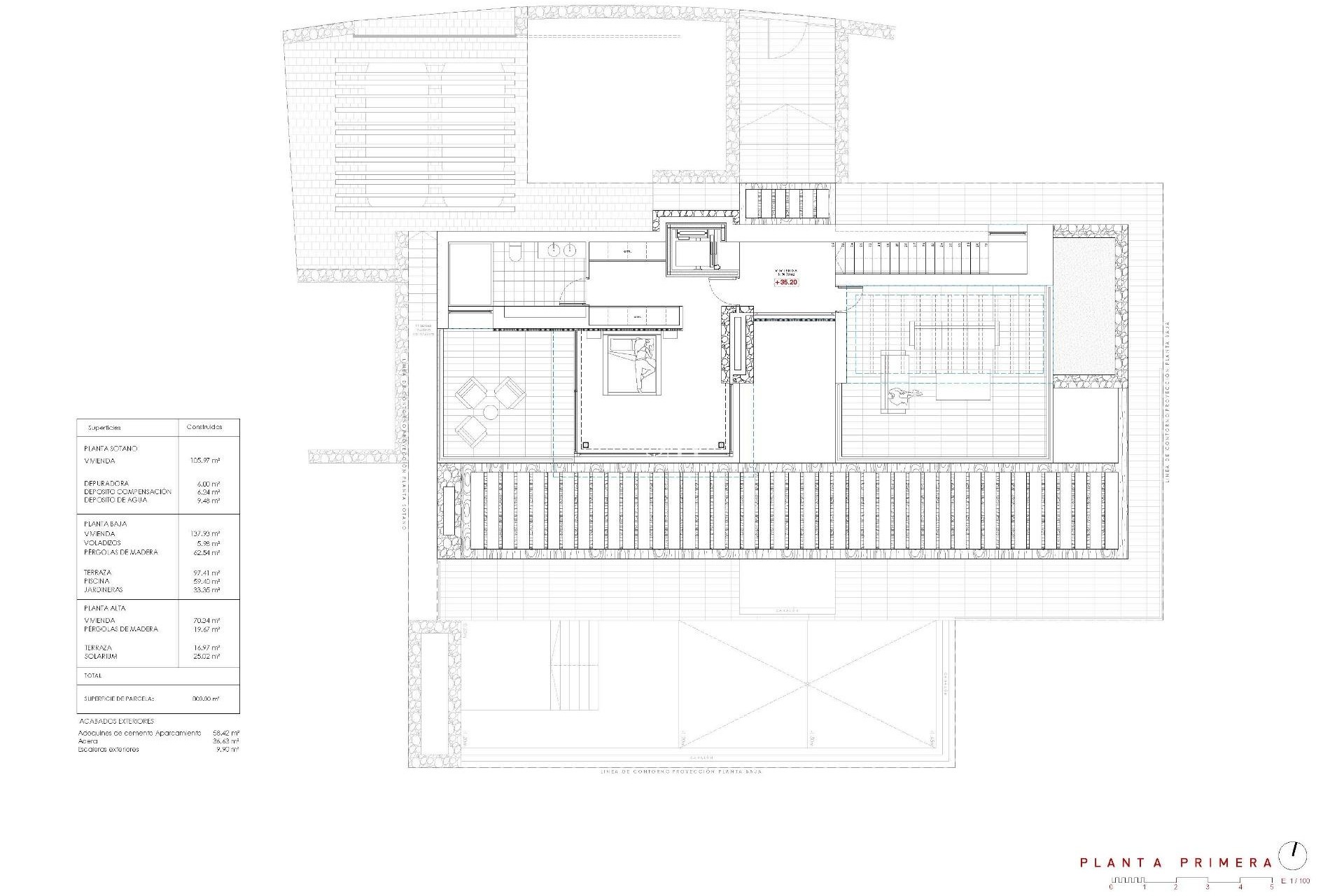
Erste Etage
Die obere Etage mit 70,19 m² ist für die Master-Suite reserviert – ein privater Rückzugsort mit begehbarem Kleiderschrank, eigenem Bad und einer großen privaten Terrasse mit atemberaubendem Blick auf das Mittelmeer. Ein zweites Schlafzimmer oder ein Büro vervollständigen diese Etage, die auch Zugang zu einem 25,02 m² großen Solarium bietet, ideal zum Entspannen unter der Sonne und zum Genießen der Ruhe der Umgebung.
Außenbereich und Lage
Diese Immobilie befindet sich in einer ruhigen Wohnstraße, umgeben von modernen Villen, und genießt eine außergewöhnliche Lage, nur 3 Gehminuten vom Strand La Fustera (150 m), der Mandala Beach Bar & Restaurant und wichtigen Annehmlichkeiten wie Supermärkten und lokalen Dienstleistungen entfernt.
Diese Villa wurde mit Schwerpunkt auf Licht, Raum und nahtlosem Übergang zwischen Innen- und Außenbereich entworfen und verkörpert den modernen mediterranen Lebensstil – elegant, entspannt und in perfekter Harmonie mit dem spektakulären Panoramablick auf das Meer.
Sichern Sie sich Ihre Traumvilla in La Fustera, Benissa Costa, und genießen Sie den ultimativen mediterranen Lebensstil mit atemberaubendem Meerblick und unvergleichlichem Komfort.