Nieuwbouwwoningen met 4 slaapkamers in Torre del Mar Op slechts 800 m van het strand
Nieuwbouwwoningen met 4 slaapkamers in Torre del Mar Op slechts 800 m van het strand
Moderne gezinswoningen aan de Costa del Sol
Dit exclusieve woonproject bestaat uit 21 moderne herenhuizen met 4 slaapkamers in Torre del Mar, een van de meest gewilde kustgebieden in de regio Axarquia aan de Costa del Sol. Deze ruime woningen liggen op slechts 800 meter van het strand en zijn ideaal voor gezinnen die op zoek zijn naar comfort, buitenleven en de nabijheid van de zee.
Torre del Mar staat bekend om zijn lange zandstranden, levendige boulevard, uitstekende gastronomie en het hele jaar door beschikbare voorzieningen. De stad biedt een perfecte balans tussen een ontspannen leven aan de kust en een moderne infrastructuur, met scholen, gezondheidscentra, winkelgebieden en sportfaciliteiten binnen handbereik.
Ruime indeling over vier verdiepingen met privé-solarium
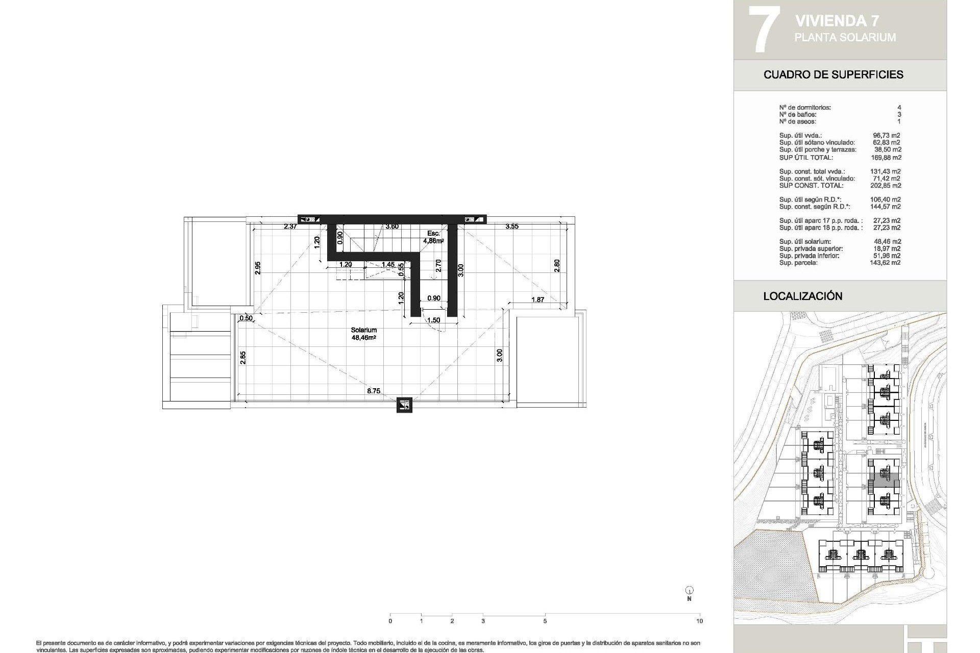
Elk herenhuis is verdeeld over drie hoofdverdiepingen plus een privé-solarium op het dak van ongeveer 48 m2, waardoor er royale binnen- en buitenruimtes zijn.
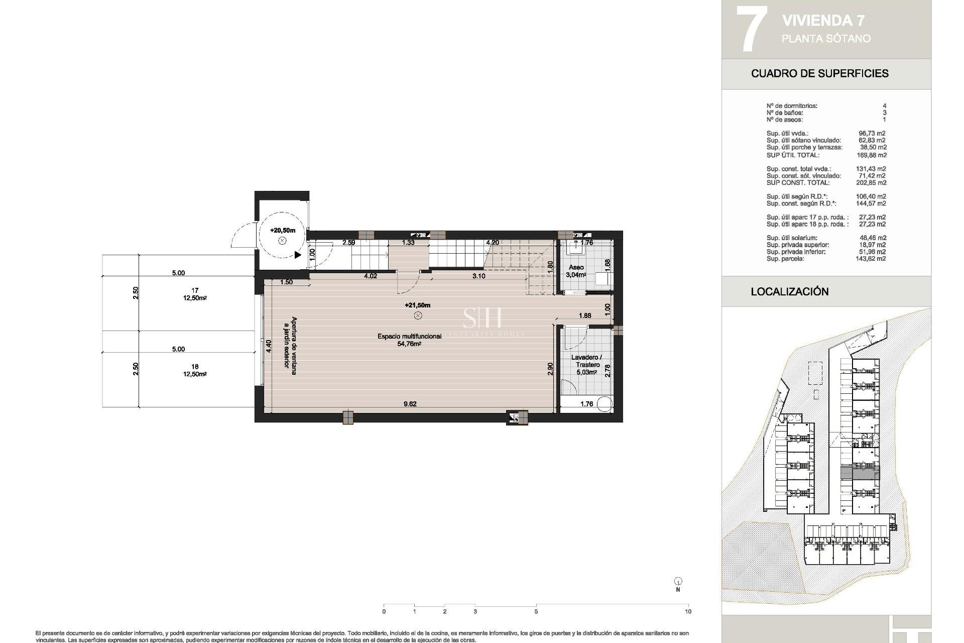
De kelderverdieping omvat een privéparkeerplaats voor twee auto's, een multifunctionele ruimte met natuurlijk licht die kan worden gebruikt als speelkamer, kantoor of extra slaapkamer, een wasruimte en een gastentoilet.
Op de begane grond sluit de open woonkamer en keuken direct aan op het terras aan de voorzijde en de privétuin. Op deze verdieping bevinden zich ook een slaapkamer en een complete badkamer, waardoor deze verdieping ideaal is voor gasten of voor meerdere generaties. Een extra terras aan de achterzijde biedt extra buitenruimte.
De eerste verdieping biedt drie extra slaapkamers en twee badkamers, waarvan één en suite, evenals twee terrassen aan de voor- en achterzijde van het pand.
Kwaliteitsspecificaties en energie-efficiëntie
Deze nieuwbouwwoningen worden opgeleverd met hoogwaardige afwerkingen en moderne installaties, waaronder:
Ingerichte keuken met keramische kookplaat, spoelbak en afzuigkap
Volledig geïnstalleerde airconditioning
Aerothermisch systeem voor warm water
Badkamers met meubilair, spiegels en doucheschermen
Elektrische rolluiken in de woonkamer en slaapkamers
Video-intercomsysteem
Het wooncomplex beschikt ook over aangelegde tuinen en een gemeenschappelijk zwembad waar de bewoners van kunnen genieten.
Uitstekende locatie vlakbij het strand, golfbaan en de stad Málaga
Het project ligt op slechts 4 km van Baviera Golf en 30 km van het centrum van Málaga, met directe toegang tot de snelweg A7.
Afstanden tot belangrijke bezienswaardigheden
Strand 0,8 km
Baviera Golf 4 km
Stad Málaga 30 km
Luchthaven van Malaga 45 km
Vélez Málaga 5 km
Uw ideale woning aan zee in Torre del Mar
Deze moderne herenhuizen bieden ruimte, kwaliteit en een onovertroffen locatie dicht bij het strand. Neem vandaag nog contact met ons op voor meer informatie of om een bezichtiging te regelen van dit uitstekende nieuwbouwproject in Torre del Mar.
655