Casas adosadas de nueva construcción con 4 dormitorios en Torre del Mar, a solo 800 m de la playa
Casas adosadas de nueva construcción con 4 dormitorios en Torre del Mar, a solo 800 m de la playa
Modernas viviendas familiares en la Costa del Sol
Esta exclusiva urbanización residencial consta de 21 casas adosadas contemporáneas de 4 dormitorios situadas en Torre del Mar, una de las zonas costeras más cotizadas de la región de la Axarquía, en la Costa del Sol. A solo 800 metros de la playa, estas amplias viviendas son ideales para familias que buscan comodidad, vida al aire libre y proximidad al mar.
Torre del Mar es conocida por sus largas playas de arena, su animado paseo marítimo, su excelente gastronomía y sus servicios durante todo el año. La ciudad ofrece un equilibrio perfecto entre la relajada vida costera y las modernas infraestructuras, con colegios, centros de salud, zonas comerciales e instalaciones deportivas a poca distancia.
Amplia distribución en cuatro niveles con solárium privado
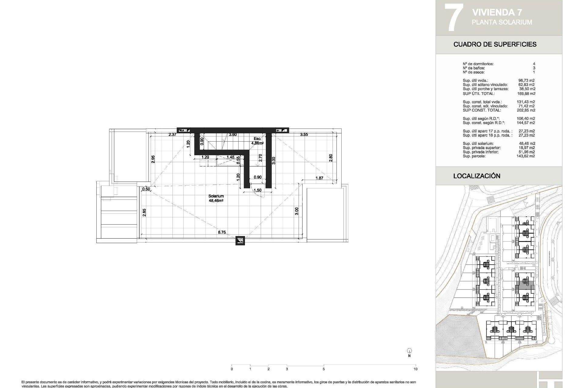
Cada casa adosada se distribuye en tres plantas principales más un solárium privado en la azotea de aproximadamente 48 m2, lo que ofrece generosos espacios interiores y exteriores.
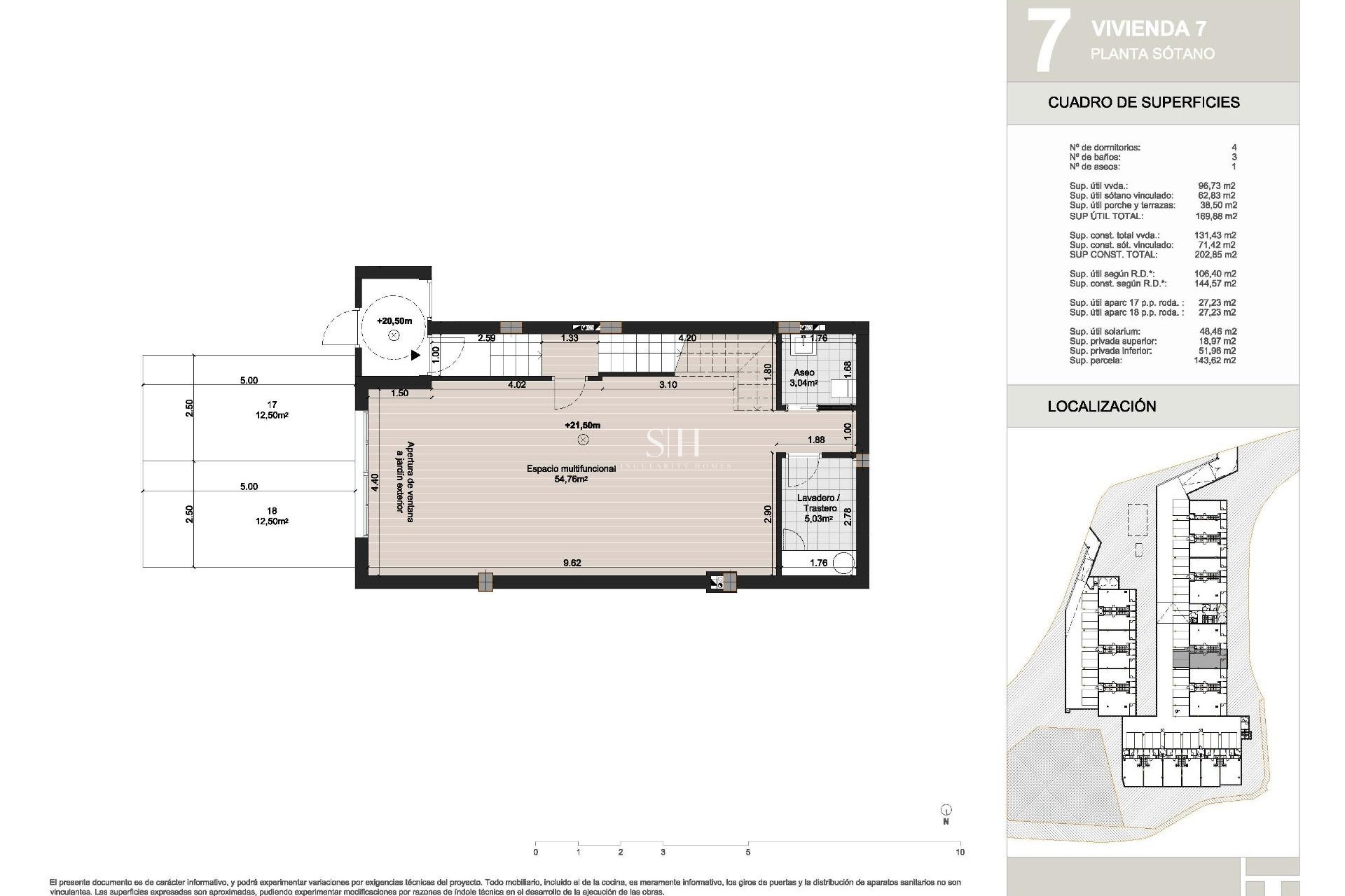
La planta sótano incluye aparcamiento privado para dos coches, una sala multifuncional con luz natural que puede utilizarse como sala de juegos, despacho o dormitorio adicional, un lavadero y un aseo para invitados.
En la planta baja, la sala de estar y la cocina de planta abierta conectan directamente con la terraza delantera y el jardín privado. Esta planta también cuenta con un dormitorio y un cuarto de baño completo, lo que la hace ideal para invitados o para la convivencia multigeneracional. Una terraza trasera adicional proporciona más espacio exterior.
La primera planta ofrece tres dormitorios adicionales y dos cuartos de baño, uno de ellos en suite, así como dos terrazas en la parte delantera y trasera de la propiedad.
Especificaciones de calidad y eficiencia energética
Estas viviendas de nueva construcción se entregan con acabados de alta calidad e instalaciones modernas, entre las que se incluyen:
Cocina equipada con vitrocerámica, fregadero y campana extractora.
Aire acondicionado por conductos totalmente instalado.
Sistema aerotérmico para agua caliente.
Baños con muebles, espejos y mamparas de ducha.
Persianas eléctricas en el salón y los dormitorios.
Sistema de videoportero.
El complejo residencial también cuenta con jardines paisajísticos y una piscina comunitaria para el disfrute de los residentes.
Excelente ubicación cerca de la playa, el golf y la ciudad de Málaga
La promoción se encuentra a solo 4 km de Baviera Golf y a 30 km del centro de Málaga, con acceso directo a la autopista A7.
Distancias a puntos de interés clave
Playa 0,8 km
Baviera Golf 4 km
Ciudad de Málaga 30 km
Aeropuerto de Málaga 45 km
Vélez Málaga 5 km
Su casa ideal junto al mar en Torre del Mar
Estas modernas casas adosadas ofrecen espacio, calidad y una ubicación inmejorable cerca de la playa. Póngase en contacto con nosotros hoy mismo para recibir más información o concertar una visita a esta excepcional promoción de obra nueva en Torre del Mar.
655