Modernes Luxushaus im Herzen von Moraira-Teulada: Ein zeitgenössischer mediterraner Rückzugsort
Modernes Luxushaus im Herzen von Moraira-Teulada: Ein zeitgenössischer mediterraner Rückzugsort
Entdecken Sie ein atemberaubendes Einfamilienhaus in der malerischen Stadt Moraira-Teulada an der Costa Blanca. Dieses moderne Anwesen bietet eine exquisite Kombination aus Luxus, Komfort und natürlicher Schönheit. Es befindet sich auf einem großzügigen Grundstück, das sowohl Privatsphäre als auch einen Panoramablick auf die umliegende mediterrane Landschaft bietet. Moraira-Teulada ist bekannt für seine charmante Küstenatmosphäre, die lebendige lokale Kultur und den einfachen Zugang zu den wichtigsten Annehmlichkeiten.
Architektonische Exzellenz mit Panoramablick
Dieses architektonisch gestaltete Haus ist ein modernes Meisterwerk, das sich harmonisch in die natürliche Umgebung einfügt. Das aus Stahlbeton errichtete und mit hölzernen Details versehene Haus integriert nahtlos große Glasflächen, um das natürliche Licht zu maximieren und einen atemberaubenden Blick auf das Meer und die üppige Vegetation zu ermöglichen. Das Haus ist auf verschiedenen Terrassen gebaut, die das natürliche Gefälle des Grundstücks ergänzen und aus jedem Winkel einen ungehinderten Blick bieten.
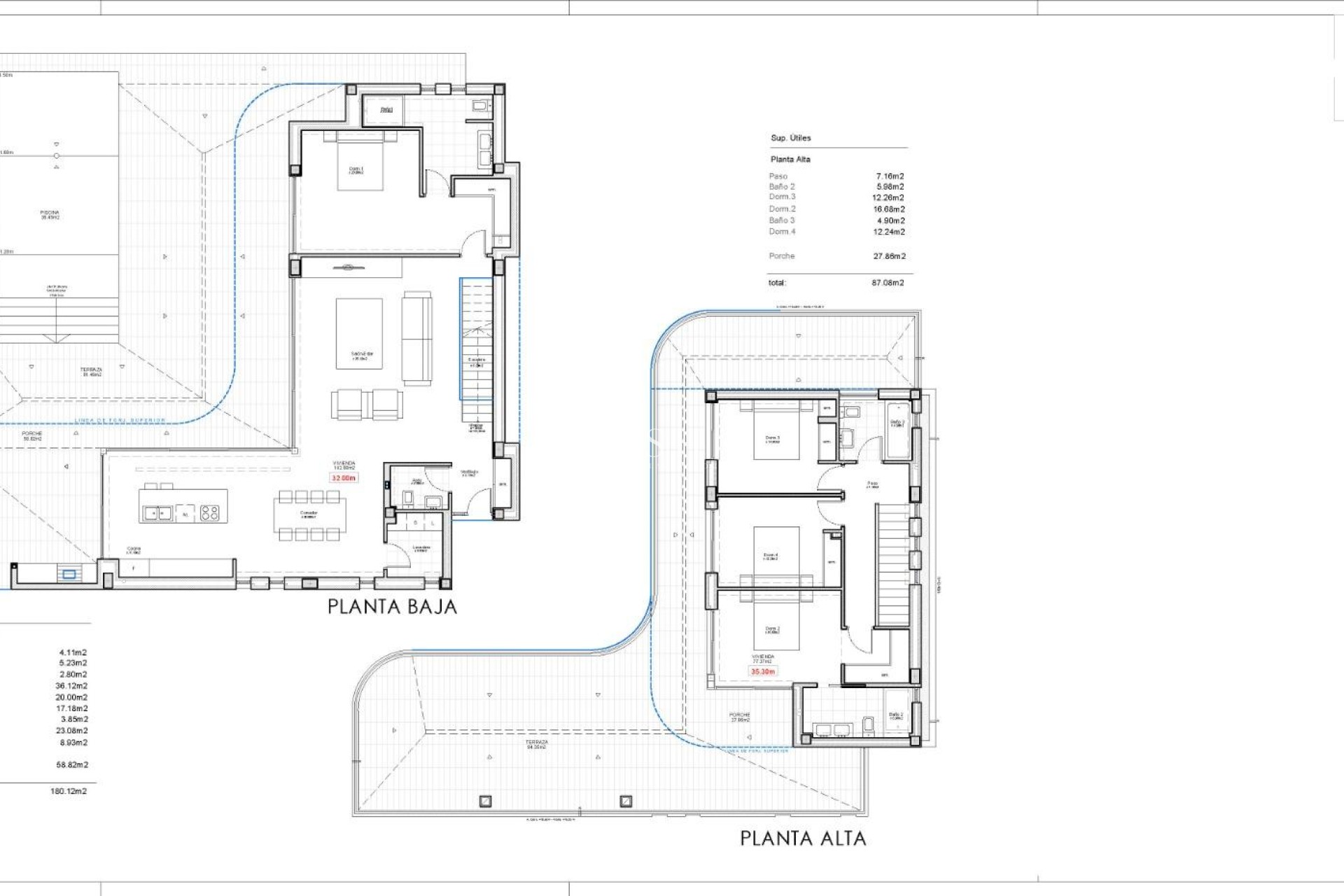
Großzügige Innenausstattung für elegantes Wohnen
Das Erdgeschoss ist das Herzstück dieses Hauses mit einem großzügigen, offenen Wohnbereich von 36 m², der mit einer riesigen Außenterrasse von 81 m² verbunden ist. Die hochwertige Küche und der 20 m² große Essbereich sind mit modernsten Geräten ausgestattet und eignen sich sowohl für das tägliche Leben als auch für Gäste. Im Obergeschoss bietet die Master-Suite absolute Privatsphäre mit einem begehbaren Kleiderschrank, einem eigenen Bad und Zugang zu einer privaten Terrasse. Drei weitere Schlafzimmer, jedes mit eigenem Bad und Terrasse, bieten luxuriösen Komfort für Familienmitglieder oder Gäste.
Außergewöhnliches Leben im Freien und Infinity-Pool
Die Außenbereiche sind zum Entspannen und Unterhalten gedacht, einschließlich einer 81 m² großen Terrasse, die ideal zum Essen im Freien oder zum Faulenzen in der mediterranen Sonne ist. Die Terrasse führt zu einem atemberaubenden Infinity-Pool, der mit dem Horizont verschmilzt und eine friedliche Oase schafft. Der sorgfältig angelegte Garten mit einheimischen Pflanzen und Bäumen unterstreicht die ruhige Atmosphäre des Hauses und bietet zusätzliche Privatsphäre.
Nachhaltige und energieeffiziente Merkmale
Diese Immobilie ist mit nachhaltigen Merkmalen ausgestattet, darunter eine moderne Luft-Wasser-Wärmepumpe, eine Fußbodenheizung und eine kanalisierte Klimaanlage. Hochwertige Fenster und Isolierung sorgen für Energieeffizienz und ganzjährigen Komfort.
Erstklassige Lage in der Nähe wichtiger Annehmlichkeiten
Flughafen Alicante: 90 km
Golfplatz La Sella: 15 km
Hafen von Moraira: 2 km
Einkaufszentren: 5 km
Erleben Sie modernen Luxus und Ruhe in diesem außergewöhnlichen Haus, perfekt gelegen in der begehrten Region Moraira-Teulada.