LUXUS-NEUBAU-VILLA IN MORAIRA
LUXURIÖSE NEU GEBAUTE VILLA IN MORAIRA
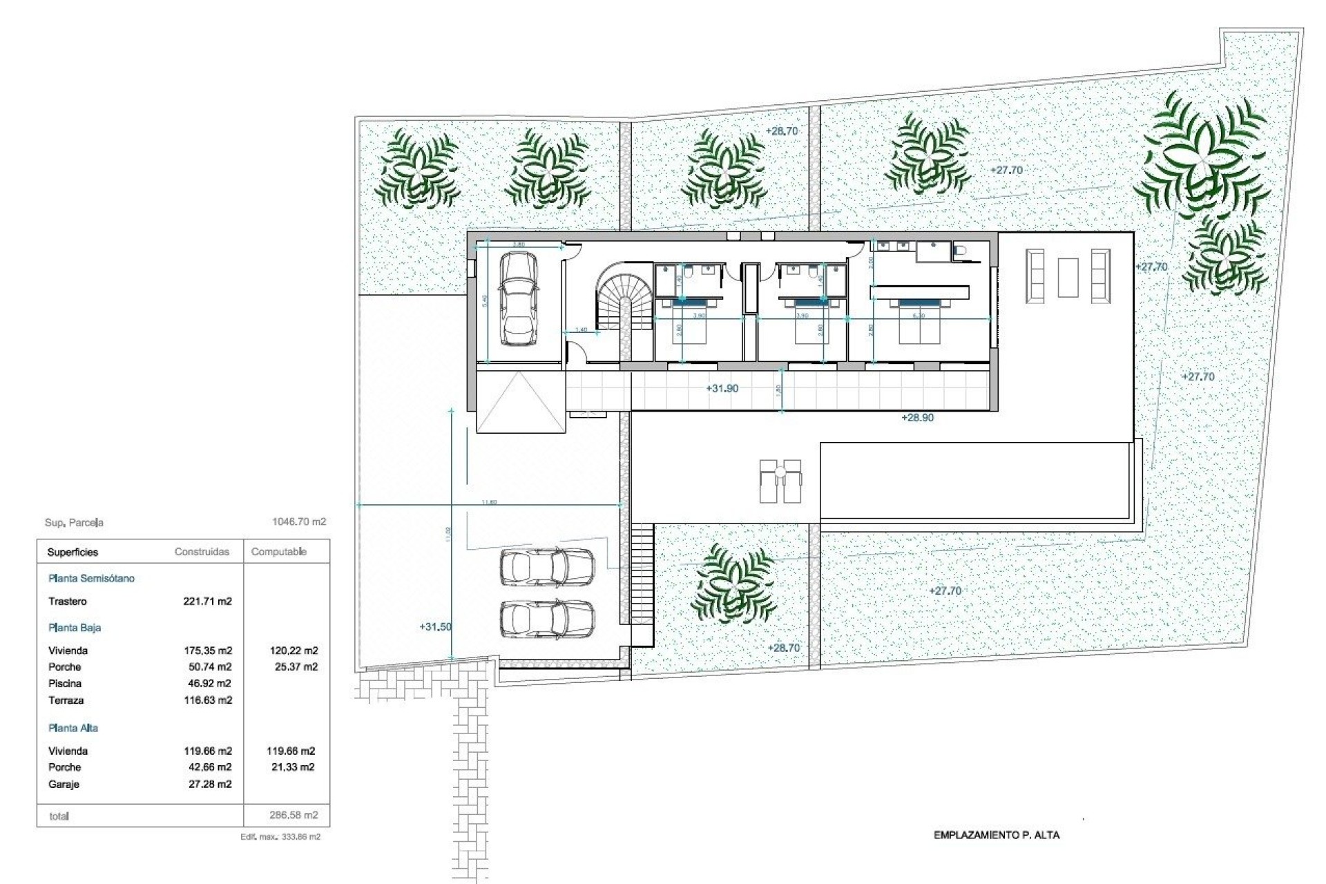
Neubau Luxus-Villa mit den besten Qualitäten, und mit Blick auf das Meer, auf einem Grundstück von 1046 m2 mit zwei Fußgänger-und Fahrzeug-Zugänge, eine durch den gemeinsamen Bereich der Urbanisation.
Die Villa ist nur wenige Gehminuten von den schönen Stränden und dem Zentrum von Moraira.
Luxus-Villa über 3 Etagen verteilt: Erdgeschoss mit einem großen hellen Wohnzimmer neben der offenen Küche mit Kochinsel, ein Gäste-WC und ein Schlafzimmer mit Bad en suite. Außerhalb dieser Etage ist der Infinity-Pool, mit einer großen Terrasse und Grillplatz.
Im Obergeschoss befinden sich 3 geräumige Schlafzimmer mit Bad en suite und eigenem Balkon, von dem aus man die herrliche Aussicht genießen kann, die diese Villa bietet. Außerhalb dieser Etage ist die Garage. Schließlich ist der Keller, finden wir einen Abstellraum von 221 m2.
EXTRAS: Technal Schreinerei mit Sicherheitsglas, voll ausgestattete Küche mit Siemens-Geräten, Bäder und komplette Roca Marke Armaturen, LED-Beleuchtung, aerothermische System für Warmwasser und Fußbodenheizung, Klimaanlage Kanäle (warm und kalt) im ganzen Haus, Sonnenkollektoren, Einbauschränke, elektrische Rollläden, Innen-Alarm, Pre-Installation von Outdoor-Alarm-und Überwachungskameras. Rechteckiges Schwimmbad mit Überlaufsystem, Grillplatz, Waschküche, fertiger Garten.
Automatische Zugangstüren.
Energie-Klassifizierung A.
Südlage
Moraira ist eine kleine Stadt mit guten Restaurants, Bars und vielen Supermärkten in der Nähe.
Es gibt einen sehr angenehmen Strand direkt neben der Stadt, der ideal für Familien ist.
Von der Strandpromenade aus hat man einen herrlichen Blick auf den Penon Ifach auf der anderen Seite der Bucht von Calpe. Die Küstenstraße dorthin ist es wert, mit einigen spektakulären Aussichten zu fahren.
Moraira liegt etwa 1 Stunde und 15 Minuten nördlich der A7 vom Flughafen Alicante entfernt und ist relativ leicht zu erreichen. Vom Flughafen Valencia ist es etwa die gleiche Entfernung oder etwas weniger südlich.