Meter
70m2Sovrum
2Badrum
1Pool
JaModerna nybyggda lägenheter i centrum av San Miguel de Salinas
Modernt boende i en hälsosam medelhavsmiljö
Detta nya bostadsområde ligger i den charmiga staden San Miguel de Salinas, bara 10 km från Medelhavet, och erbjuder en perfekt balans mellan modern komfort och naturlig omgivning. Området är känt för sina närliggande saltsjöar och sitt exceptionella mikroklimat, som anses vara ett av de hälsosammaste i Europa. Denna fridfulla men livliga stad gör det möjligt för invånarna att njuta av den autentiska medelhavslivsstilen samtidigt som de har gångavstånd till butiker, restauranger, stormarknader och alla nödvändiga tjänster.
San Miguel de Salinas ligger något inåt landet på Costa Blanca South och erbjuder öppen utsikt, frisk luft och enkel tillgång till stränder, golfbanor och shoppingområden.
Snygga lägenheter designade för komfort och effektivitet
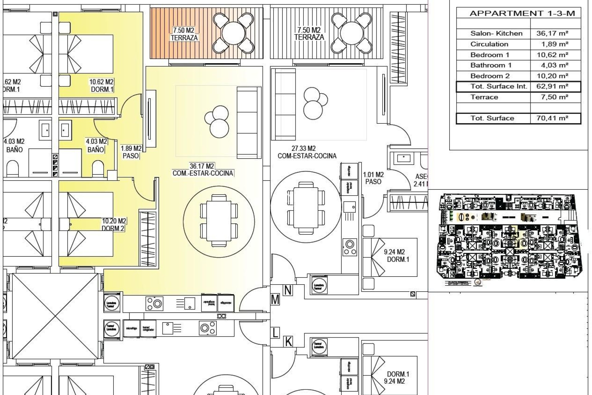
Projektet består av två moderna byggnader som skiljs åt av en gemensam trädgård. Totalt finns 56 moderna lägenheter med 1, 2 eller 3 sovrum, alla med egen terrass. Varje bostad har utformats med komfort, estetik och energieffektivitet i åtanke, med högkvalitativa material och moderna isoleringssystem.
Varje lägenhet har:
Pansrad entrédörr
Badrum med tvättställ
Förinstallation för luftkonditionering
Energiklass A
Lägenheternas layout och orientering säkerställer naturligt ljus under hela dagen, vilket skapar ljusa och välkomnande interiörer som är idealiska för både permanent boende och semesteranvändning.
Exceptionella gemensamma utrymmen för avkoppling och socialt liv
Det gemensamma utrymmet på bottenvåningen är utformat som det sociala hjärtat i området, omgivet av anlagda trädgårdar, sittplatser, cykelparkering och en lekplats. Det är en idealisk mötesplats för boende i alla åldrar.
På taket väntar ett imponerande 350 m2 stort fritidsområde. Detta utrymme inkluderar en 70 m2 stor pool med separat barnbassäng, pergolor, solstolar och skuggiga områden, där boende kan koppla av medan de njuter av panoramautsikten. Taket är lättillgängligt med en av de tre hissarna och inkluderar sanitära faciliteter för extra komfort.
Utmärkt läge nära viktiga sevärdheter
Medelhavsstränder 10 km
Zenia Boulevard Shopping Center 9 km
Villamartin Golf 6 km
Las Colinas Golf 8 km
Torrevieja Marina 12 km
Alicante flygplats 60 km
Murcia Corvera flygplats 55 km
En smart investering i södra Costa Blanca
Detta bostadskomplex kombinerar modern arkitektur, högkvalitativa ytbehandlingar och ett utmärkt centralt läge, vilket gör det till ett utmärkt val för boende, semester eller uthyrningsinvestering.
Kontakta oss idag för mer information eller för att boka en visning av dessa moderna lägenheter i San Miguel de Salinas.
2028-02-01
2
1
70m2
62m2
Ja
10000 Mts.
Om du vill ha mer information kan du kontakta via Whatsapp eller genom att fylla i följande formulär.