EXKLUSIVT KOMPLEX MED DE BÄSTA GOLF- OCH HAVSUTSIKTERNA I MIJAS
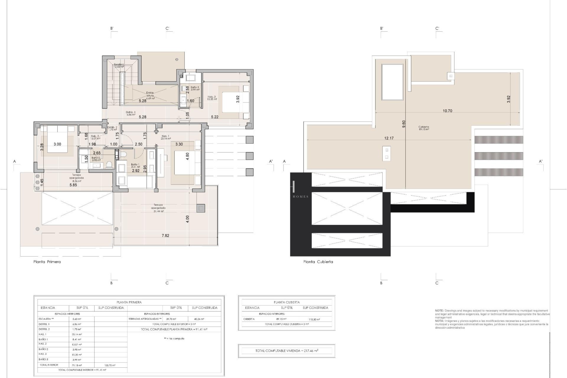
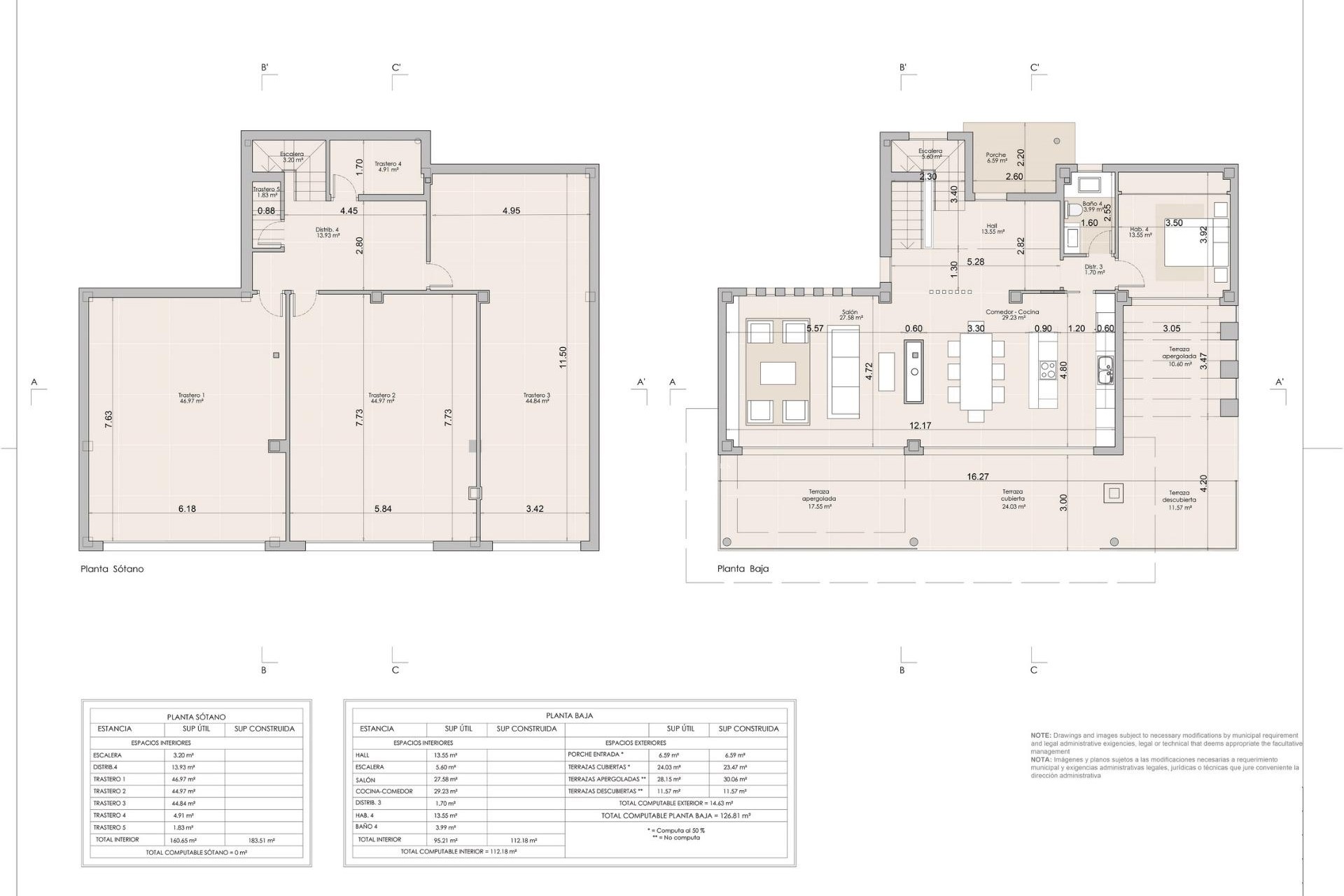
Nytt lyxprojekt med endast 13 magnifika villor, var och en med 4 sovrum med eget badrum. Tre av sovrummen ligger på övervåningen, medan det fjärde ligger bredvid vardagsrummet. En stor källare ger dig möjlighet att modifiera den på ett sätt som passar dina behov: ett annat sovrum, biografrum, vinkällare, gym, ..., du bestämmer!
Det lyxiga vardagsrummet med öppen planlösning är utformat för att underlätta det dagliga livet och underhållningen. Det ansluter till köket och matsalen på en nivå för att ge enkel åtkomst och en öppen yta från vilken du kan njuta av din utsikt.
Kök och badrum är utrustade med högkvalitativa produkter. Fastigheten har hemautomation, med vilken du kan styra ljus, persienner, säkerhet, värme och luftkonditionering från ditt hem eller bekvämt från din mobiltelefon.
Villorna ligger i en båge runt en av greenerna på golfbanan Cerrado del Águila, med spektakulär panoramautsikt över Costa del Sol, och erbjuder dem som har turen att bo här enkel och bekväm tillgång till ett brett utbud av kvalitetsfaciliteter och tjänster inom gångavstånd.
Mijas kombinerar perfekt traditionen med sina kullerstensgator med vitkalkade hus och uteplatser med sina krukor med färgglada blommor, med modernitet och de bästa fritidsanläggningarna på Costa del Sol. Orten har ett privilegierat läge mellan havet och bergen, vilket gör den till ett av de mest attraktiva turistmålen i provinsen.
Utmärkta kommunikationer, med motorväg och bara 20 minuter från Malagas internationella flygplats. Allt detta, tillsammans med mikroklimatet med 320 soldagar per år och en genomsnittlig årstemperatur på 20ºC, gör Costa del Sol till en av de mest eftertraktade platserna att bo på i Spanien.