Exklusiva nybyggda villor i Estepona intill El Campanario Golf
Modern lyx i ett privilegierat läge på Costa del Sol
Upptäck ett unikt projekt med 14 designvillor belägna i ett av de mest exklusiva områdena mellan Marbella och Estepona: El Campanario Golf & Country Club. Detta projekt omdefinierar begreppet lyx och välbefinnande på Costa del Sol och erbjuder en perfekt kombination av modern arkitektur, natur, avskildhet och högklassiga tjänster.
Personlig design med exklusiva ytbehandlingar
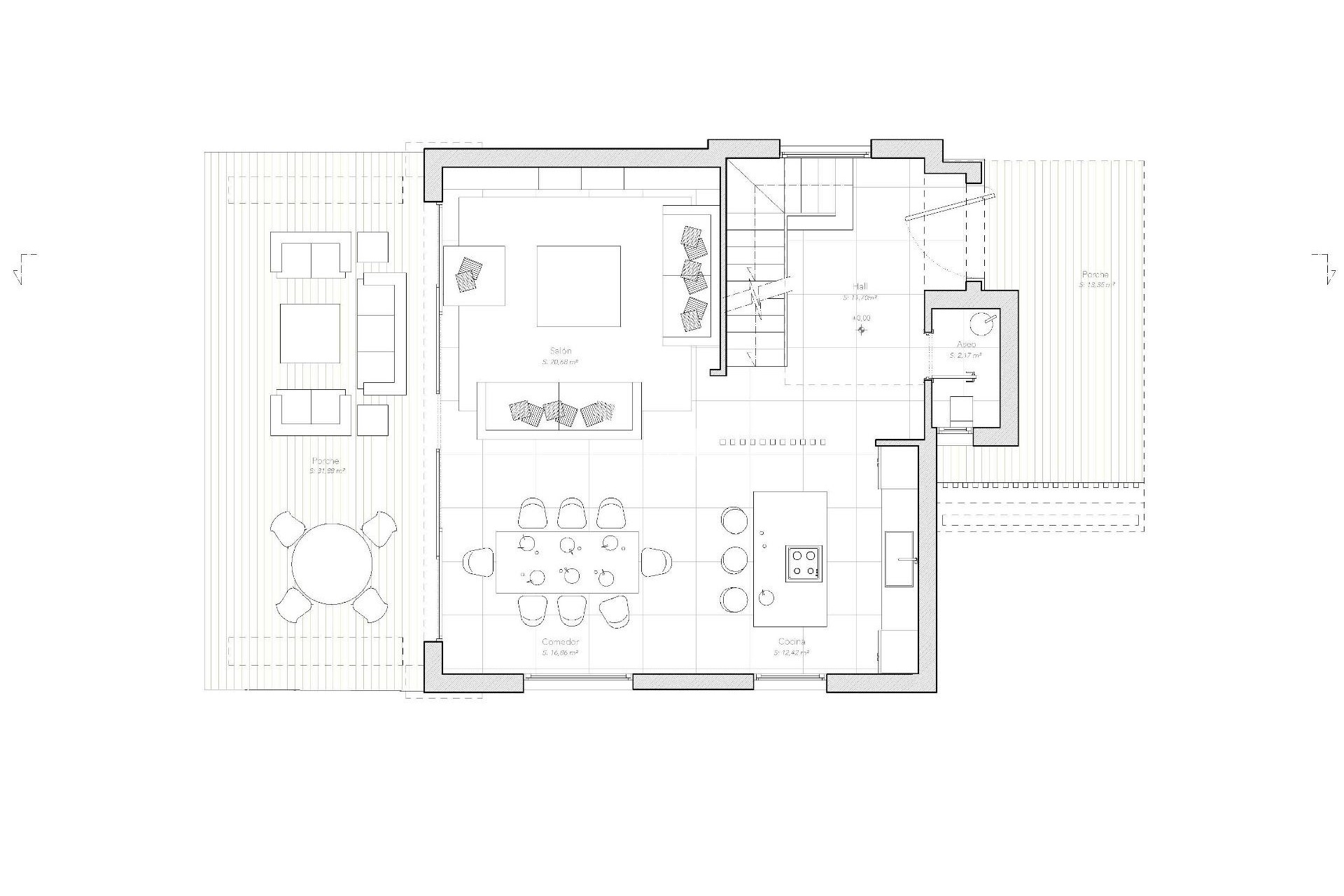
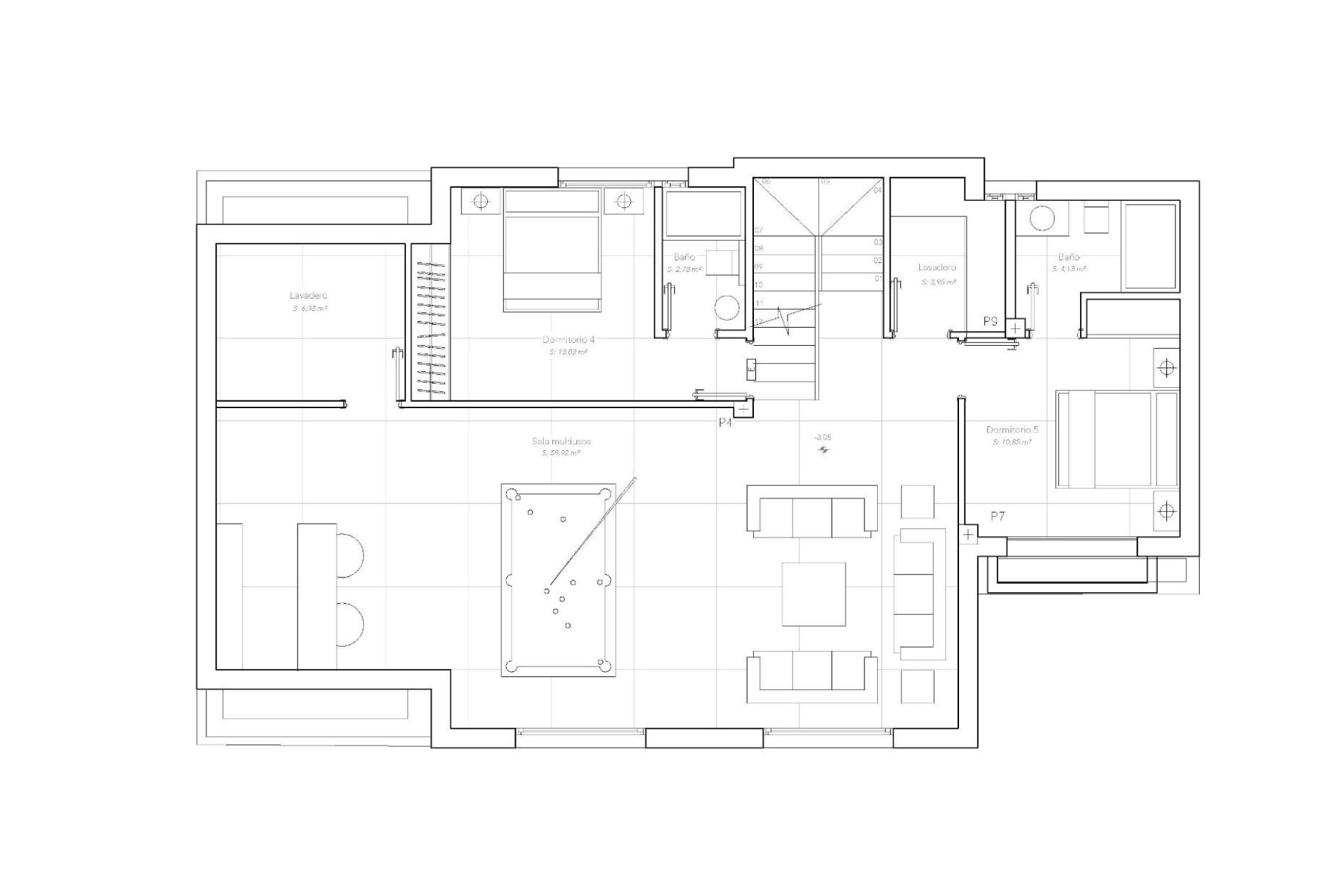
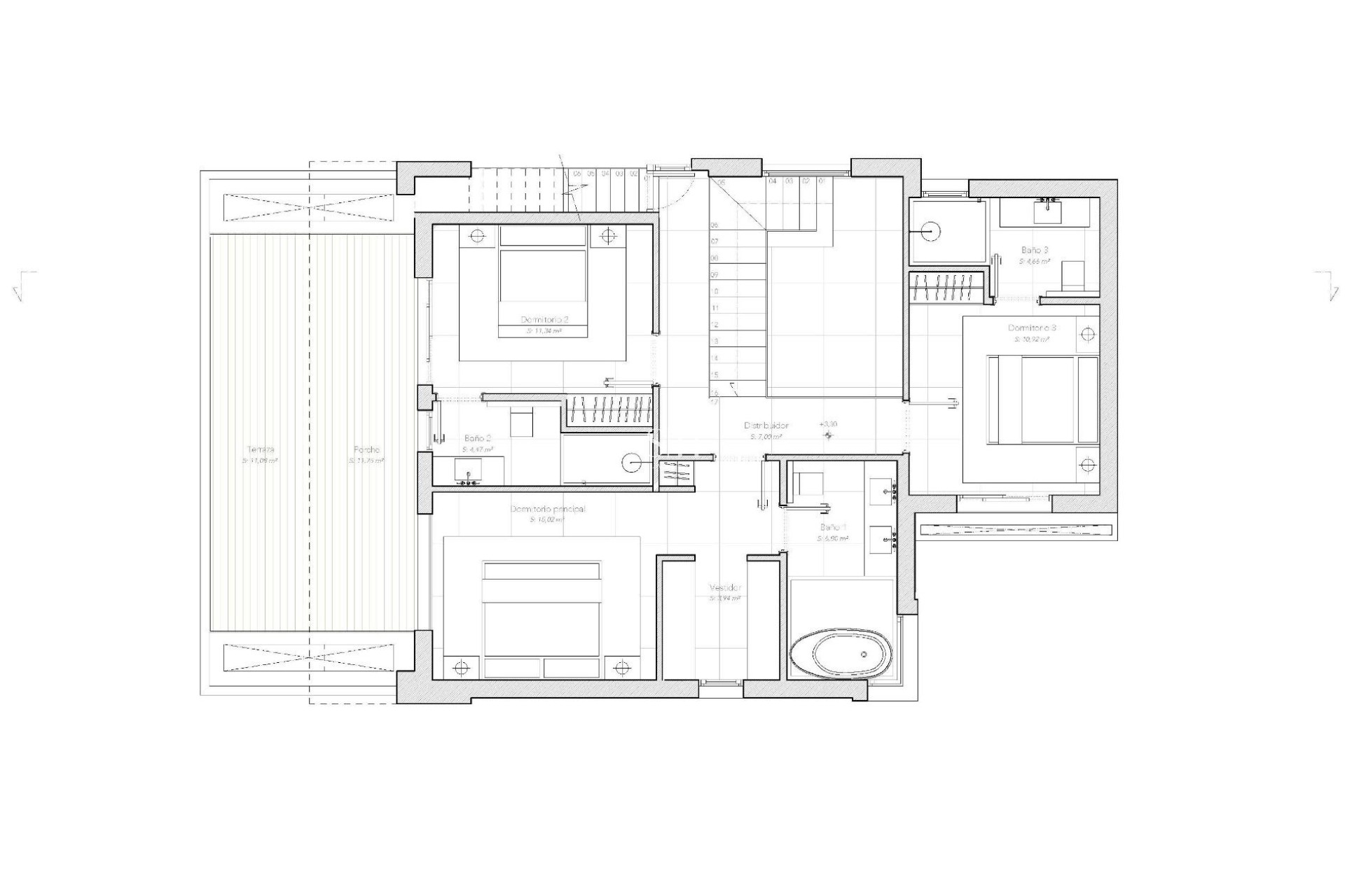
Villorna erbjuder tre olika planlösningar och storlekar, alla med 5 sovrum och 6 badrum. De har en noggrann planering med rymliga vardagsrum, designade kök fullt utrustade med vitvaror från Siemens och bänkskivor i porslin, klädkammare i anslutning till badrummen, täckta terrasser, tropiska trädgårdar och privat pool. Dessutom har varje villa en multifunktionell källare med möjlighet till gym, fritidsrum eller bio, och en spektakulär solterrass med jacuzzi och panoramautsikt.
Viktiga egenskaper hos villorna
Tomter från 400 m² till 800 m²
Aerotermisk värme och golvvärme
Avancerad hemautomatisering och 24-timmars CCTV
LED-belysning integrerad i tak, speglar och trappor
Grillplats och privat parkering för 2 bilar
Tillgång till ”El Campanario Golf & Country Club” ingår
Förstklassiga gemensamma utrymmen och naturskön omgivning
I köpet av en villa ingår ett års medlemskap i den prestigefyllda El Campanario Golf & Country Club, med obegränsad tillgång till golfbanan, spa, gym, inomhuspool, skönhetscenter och restaurang. En resortlivsstil som kombinerar hälsa, fritid och sport i en makalös miljö.
Närhet till kommunikationer och service
Dessa villor ligger bara 1,7 km från stranden och har perfekta kommunikationer:
Puerto Banús: 10 km
Marbella centrum: 12 km
Estepona: 15 km
Málagas flygplats: 70 km
Golfbanan El Paraíso: 2 km
Internationella skolan Atalaya: 3 km
Supermarknader och köpcentra: mindre än 5 km
Lev det medelhavsinspirerade livet i en unik villa
Dessa villor är ett unikt tillfälle för dig som söker lyx, design, avskildhet och närhet till Costa del Sols bästa bekvämligheter. Kontakta oss idag för mer information eller för att boka en visning av dessa magnifika fastigheter i Estepona.