Lyxiga Slow Living-hem i Mijas: En perfekt blandning av natur, komfort och bekvämlighet
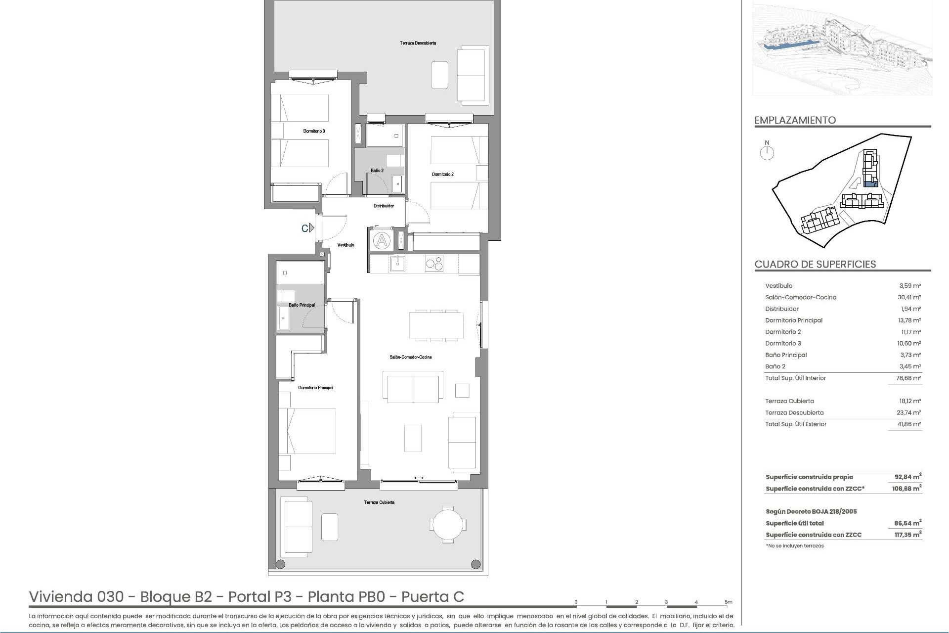
Upptäck ett modernt bostadsområde i Mijas som omdefinierar ett lugnt liv. Inbäddat i naturen erbjuder detta bostadsområde 75 bostäder med två eller tre sovrum som är utformade för en balanserad och lugn livsstil. Med fantastisk utsikt över havet och bergen, omfattande gemensamma utrymmen och närhet till stadens bekvämligheter är detta projekt perfekt för familjer och individer som söker både lugn och uppkoppling.
Förstklassigt läge i Mijas Costa
Detta projekt ligger i Mijas, på den pittoreska Costa del Sol, och omges av 12 kilometer sandstränder, natursköna berg och ett rikt kulinariskt arv. I området finns välkända golfbanor, kulturella landmärken och moderna bekvämligheter. Viktiga punkter av intresse inkluderar:
- Málagas internationella flygplats: 25 km (ca 25 minuter med bil).
- Marbella: 35 km, här finns lyxig shopping, restauranger och stränder.
- Fuengirola: 10 km, med ett pulserande nattliv och en rad familjevänliga aktiviteter.
- Calanova Golf Club: 8 km, perfekt för golfentusiaster.
- Köpcentret La Cañada: 30 km, med internationella toppmärken och underhållning.
Exceptionella gemensamma bekvämligheter
Anläggningen har 13.000 m² anlagda trädgårdar som skapar en fristad för avkoppling och rekreation. Viktiga funktioner inkluderar:
- Central swimmingpool: En lugn mittpunkt omgiven av avslappningszoner och solstolar.
- Gym och fitnessområde: Fullt utrustat för din hälsoresa.
- Social klubb och grillplats: Perfekt för sammankomster med vänner och familj.
- Lekplats för barn: Säkert och roligt för de yngre invånarna.
Genomtänkt design av hemmen
Varje hem har noggrant utformats för att maximera naturligt ljus och ventilation. De rymliga terrasserna erbjuder panoramautsikt över Medelhavet och är den perfekta miljön för att koppla av. Viktiga interiörfunktioner inkluderar:
- Moderna kök: Fullt utrustade med högkvalitativa apparater som induktionshäll, kylskåp, diskmaskin och mycket mer.
- Badrum i premiumklass: Snygg finish med beslag av högsta kvalitet, reptåliga plattor och duschkar av harts.
- Energieffektivitet: Klimatkontroll med varm-kall luftkonditionering och integration av solpaneler för varmvatten.
Hållbarhet möter lyx
Projektet betonar hållbarhet genom energieffektiva installationer, miljövänliga material och anlagda grönområden. Det inhägnade området garanterar också säkerhet med ett bepansrat inpasseringssystem, inbrottsskyddade fönster och övervakning 24/7.
Omfamna Medelhavets livsstil
Fördjupa dig i det bästa av Mijas, en kosmopolitisk stad som kombinerar traditionell charm med modernt boende. Oavsett om du föredrar strandpromenader, bergsvandringar eller lugna kvällar på en golfbana, placerar denna utveckling dig i hjärtat av allt.
Upplev ett nytt sätt att leva - välkommen hem till Slow Living Homes i Mijas.