Lyxiga nybyggda villor, lägenheter och radhus i San Pedro de Alcántara, Marbella
Exklusivt bostadsprojekt nära stranden
Upptäck detta enastående nybyggnadsprojekt som erbjuder ett unikt utbud av villor, radhus och lägenheter i San Pedro de Alcántara, ett av de mest eftertraktade områdena på Costa del Sol. Projektet har ett idealiskt läge bara 800 meter från Medelhavet och intill den livliga strandpromenaden, och kombinerar modernt boende med ett oslagbart läge.
Omgivet av grönområden och inom gångavstånd från stadskärnan har boende enkel tillgång till restauranger, butiker, kaféer och alla nödvändiga tjänster. San Pedro de Alcantara är känt för sin avslappnade atmosfär, vackra strandpromenad och närhet till Marbella, vilket gör det till ett förstklassigt resmål för både permanentboende och fritidshus.
Stort urval av moderna bostäder
Detta exklusiva projekt omfattar 38 exklusiva bostäder och ett begränsat antal kommersiella enheter. Köpare kan välja mellan 11 lyxvillor, 10 moderna radhus och 17 stilfulla lägenheter, alla utformade med elegant arkitektur och högkvalitativa ytbehandlingar.
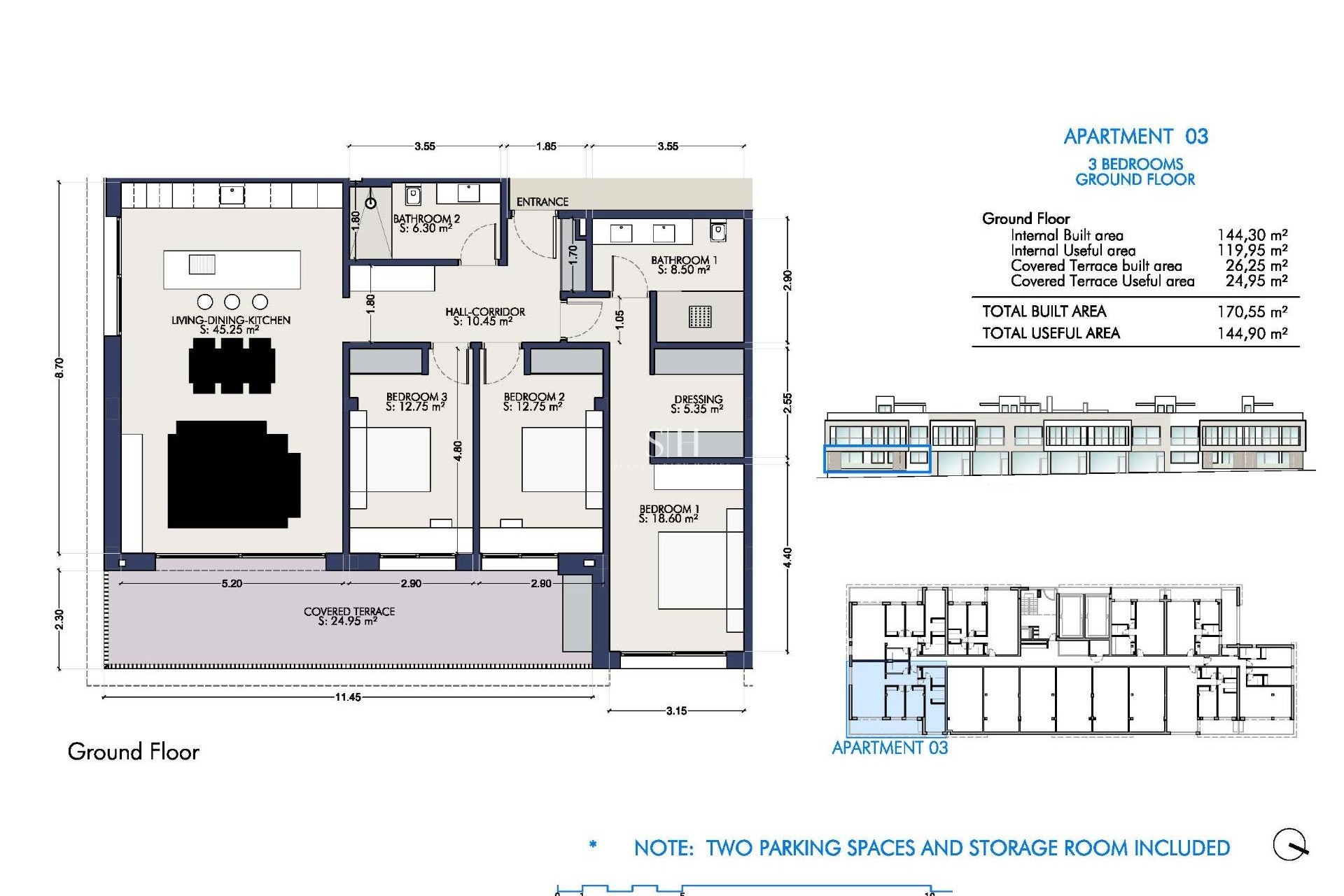
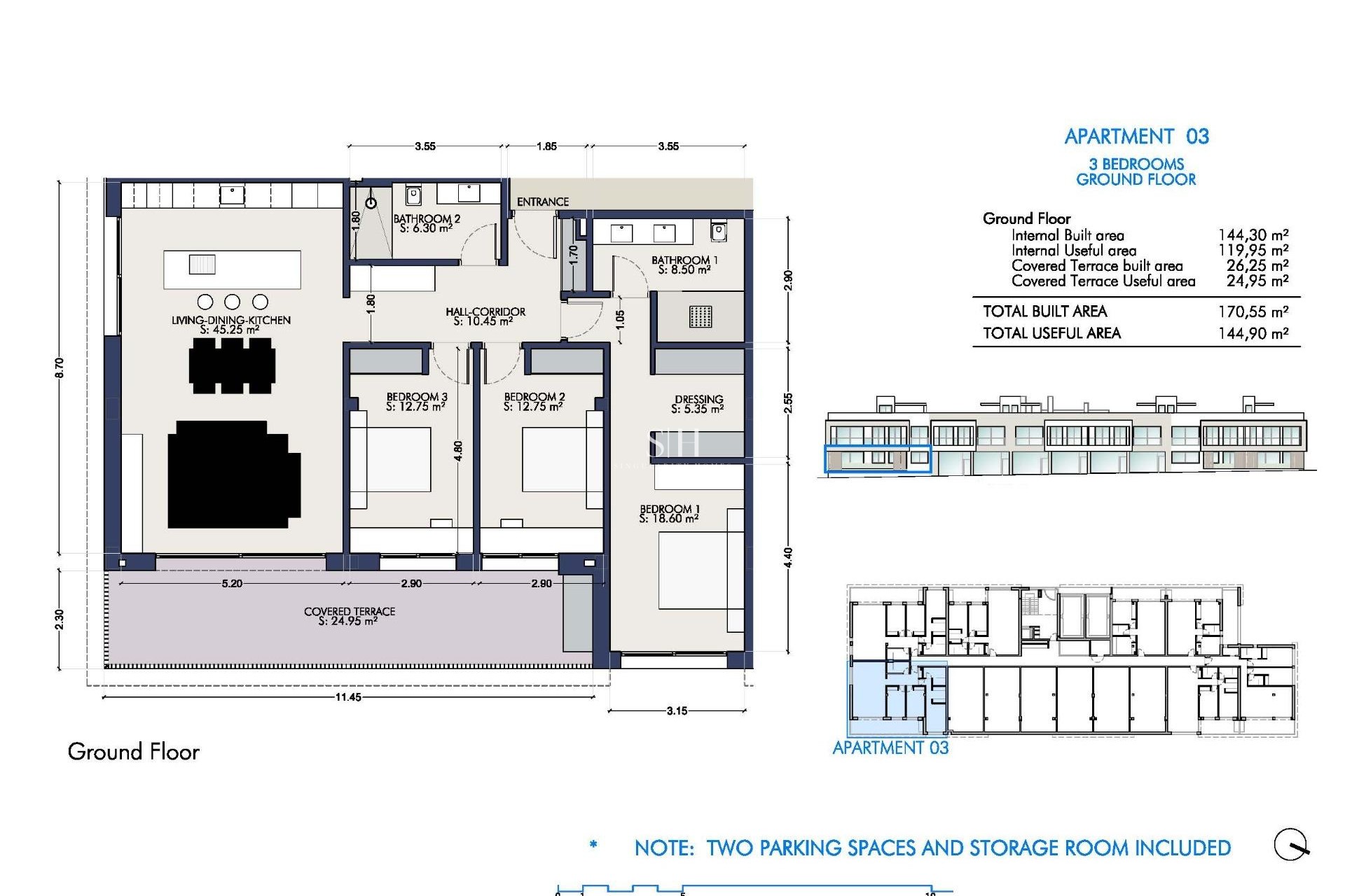
Lägenheterna finns med ett, två eller tre sovrum och erbjuder alternativ som bottenvåningar med privata trädgårdar eller lägenheter på översta våningen med terrasser och solterrasser. Varje lägenhet har en underjordisk parkeringsplats och ett förråd med hiss.
Rymliga radhus med privat solarium
Radhusen har tre eller fyra sovrum och tre badrum, med rymliga planlösningar fördelade på flera våningar. De flesta enheterna har en privat hiss som förbinder alla våningar, underjordisk parkering för två bilar och ytterligare mångsidigt utrymme som kan användas som gym, spelrum eller kontor.
Bottenvåningen har ett öppet vardagsrum med direkt tillgång till terrasser och uteplatser, medan övervåningen innehåller sovrum med egna badrum. Ett privat solarium på taket kompletterar fastigheten, perfekt för att njuta av det medelhavsklimatet.
Premiumvillor med privat pool och källare
Villorna ligger på tomter på över 300 m² och erbjuder fem eller sex sovrum fördelade på källarplan, två huvudvåningar och takterrass med anslutning via en privat hiss. Varje villa har en privat pool, trädgård och rymliga interiörer utformade för ett lyxigt boende.
Källarplanet erbjuder parkering, ytterligare sovrum och flexibla utrymmen för fritid eller arbete. Bottenvåningen ansluter sömlöst till utomhusterrasser och privat pool, medan övervåningen erbjuder sovrum med egna badrum och fri utsikt.
Högkvalitativa ytbehandlingar och modern komfort
Alla fastigheter är byggda enligt högsta standard och har fullt installerad luftkonditionering, golvvärme, designerkök med vitvaror från Siemens samt förstärkta säkerhetsdörrar med larmsystem.
Förstklassigt läge nära golf och viktiga destinationer
Detta bostadsområde har ett perfekt läge med Guadalmina Golf Club bara 1,2 km bort, stranden 0,8 km bort och San Pedro-boulevarden 0,6 km bort. Marbella ligger 10 km bort och Malagas flygplats ligger cirka 65 km bort, vilket garanterar utmärkta förbindelser.
Idealisk investering på Costa del Sol
Detta exklusiva bostadsområde erbjuder en sällsynt möjlighet att äga en lyxfastighet i ett av de mest eftertraktade områdena i Marbella.
Kontakta oss idag för mer information eller för att boka en visning och säkra ditt nya hem i San Pedro de Alcantara.
655