Meter
110m2Tomt
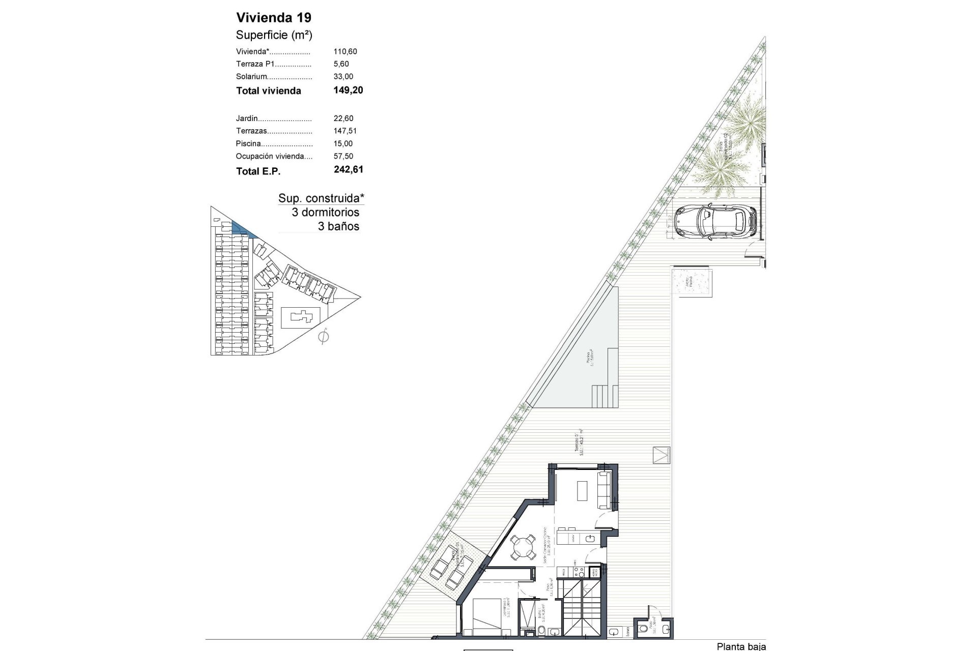
242m2Sovrum
3Badrum
3Pool
JaNybyggda villor med privat pool vid Serena Golf-Los Alcazares
Boutique-kollektion av moderna hus nära havet
Upptäck ett exklusivt boutique-projekt med 37 moderna villor i fyr- och parhusstil beläget vid La Serena Golf i Los Alcazares på den vackra Costa Calida. Dessa moderna hus är designade för köpare som söker avskildhet, sol och ett utomhusliv bara 300 meter från det varma vattnet i Mar Menor.
Los Alcazares är en charmig kuststad känd för sin långa strandpromenad, sandstränder och avslappnade medelhavsatmosfär. Området har mer än 300 soldagar per år och erbjuder utmärkta restauranger, butiker, småbåtshamnar och idrottsanläggningar. Dess läge mellan havet och golfbanan gör det till en av de mest eftertraktade destinationerna i regionen för både permanent boende och semesterbostäder.
Moderna villor med privat pool och utomhusliv
Varje fastighet har en privat tomt med egen pool, vilket skapar den perfekta miljön för att njuta av det medelhavsklimatet året runt. Husen har 3 sovrum och 2 eller 3 badrum plus gästtoaletter, vilket erbjuder bekväma och funktionella bostadsutrymmen som är idealiska för familjer eller gäster.
Villorna är utformade för att betona utomhuslivet. Bredvid poolen finns en grillplats och en gästtoalett utomhus, perfekt för att underhålla vänner och familj. Solterrassen på taket erbjuder ytterligare utrymme att koppla av i solen och har en soldusch med förinstallation för jacuzzi och sommarkök.
Parkering ingår både på den privata tomten och med en tilldelad parkeringsplats i garage.
Högkvalitativa ytbehandlingar och moderna funktioner
Husen är byggda med moderna material och kvalitetsspecifikationer utformade för komfort och stil.
Fullt utrustat kök med vitvaror i vit glasfinish
Badrum med bakgrundsbelysta speglar, duschskärmar och tvättställ
Motoriserade fönsterluckor
Grundläggande belysningspaket
Fullt installerad luftkonditionering
Dessa funktioner garanterar en bekväm boendeupplevelse, oavsett om fastigheten används som huvudbostad eller semesterbostad.
Resortliknande bekvämligheter och utmärkt läge
Ägarna har också tillgång till gemensamma resortliknande faciliteter med ett angränsande bostadsområde. Dessa bekvämligheter inkluderar anlagda trädgårdar, en gemensam pool i lagunstil, spa-område, gym och bastu.
Läget erbjuder enkel tillgång till stränder, golfbanor och närliggande städer.
Mar Menor-stranden 0,3 km
La Serena Golf intill bostadsområdet
Los Alcazares centrum 2 km
Cartagena 22 km
Murcia 40 km
Region de Murcia internationella flygplats 30 km
Alicante Elche flygplats 90 km
Det grunda vattnet i Mar Menor är perfekt för simning, segling, paddelsurfing och andra vattensporter året runt.
Säkra din medelhavslivsstil i Los Alcazares
Dessa nybyggda villor erbjuder den perfekta kombinationen av strand, golf och modern komfort på Costa Calida. Kontakta oss idag för att få mer information eller boka ett besök och säkra ditt nya hem på Serena Golf i Los Alcazares.
3
3
110m2
100m2
242m2
Ja
300 Mts.
Om du vill ha mer information kan du kontakta via Whatsapp eller genom att fylla i följande formulär.