Nybyggda bungalower till salu i Pilar de la Horadada, 3 km från stranden
Boutique-bostadsområde i Pilar de la Horadada
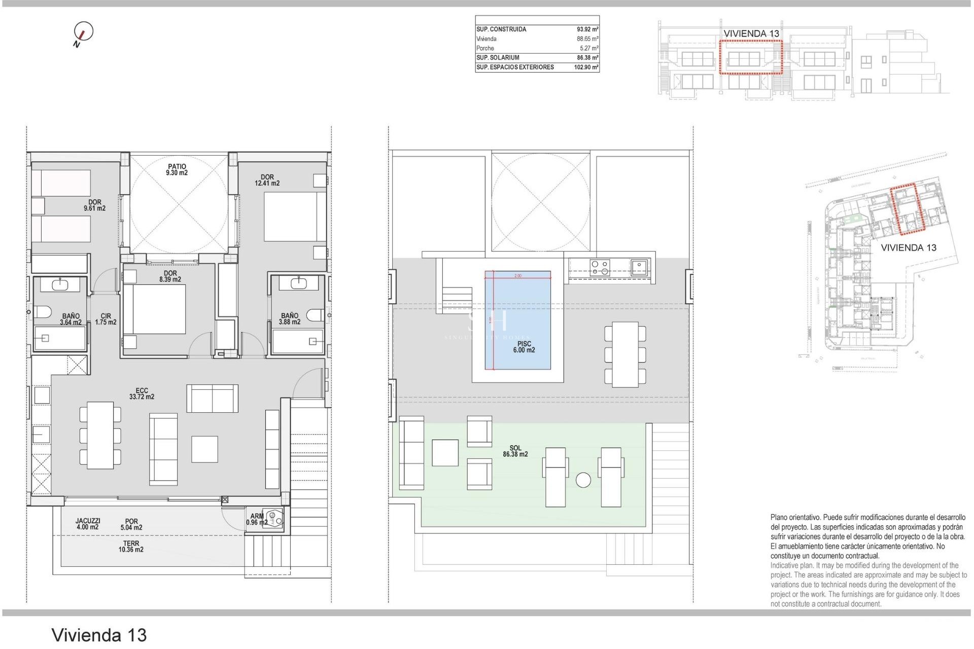
Upptäck detta exklusiva nybyggda bostadsområde med moderna bungalower i Pilar de la Horadada, den sydligaste staden på Costa Blanca. Detta boutique-projekt består av endast 14 omsorgsfullt designade bostäder med 2 eller 3 sovrum och 2 badrum, som erbjuder en idealisk kombination av komfort, stil och medelhavsliv.
Bostadsområdet ligger i ett lugnt bostadsområde inom gångavstånd från stadens centrum, vilket gör att invånarna har enkel tillgång till butiker, restauranger, stormarknader och viktiga tjänster. Pilar de la Horadada är känt för sin välkomnande atmosfär, traditionella spanska charm och livliga huvudgata fylld med kaféer, butiker och charmiga torg.
Moderna bungalower med privata utomhusutrymmen
Bostäderna har designats för att erbjuda ljusa interiörer och funktionella planlösningar, perfekta för både permanent boende och semesteranvändning.
Bungalowerna på bottenvåningen har en privat trädgård och privat pool, vilket skapar den perfekta miljön för att njuta av utelivet, sola eller umgås med familj och vänner.
Bungalowerna på översta våningen har en rymlig terrass och ett privat solarium på taket. Solariet har ett sommarkök och erbjuder möjlighet att lägga till en privat pool eller jacuzzi mot en extra kostnad, vilket gör det till en idealisk plats att koppla av på medan man njuter av det varma medelhavsklimatet och den öppna utsikten.
Varje fastighet har en privat parkeringsplats inom bostadsområdet för extra bekvämlighet.
Högkvalitativ konstruktion och moderna funktioner
Dessa nybyggda hus är byggda med högkvalitativa material och moderna installationer som är utformade för att garantera komfort och energieffektivitet under hela året.
Aluminiumfönster med termisk brytning
Fullt utrustade kök med vitvaror
Badrum utrustade med speglar och duschväggar
LED-belysning inomhus och utomhus
Varmvattensystem med energieffektiv aerotermisk teknik
Förinstallation för luftkonditionering
Kombinationen av modern design och praktiska funktioner gör dessa bostäder till ett utmärkt alternativ för köpare som letar efter en modern fastighet på Costa Blanca.
Utmärkt läge nära stränder och golfbanor
Pilar de la Horadada har ett strategiskt läge nära några av regionens bästa stränder och golfbanor.
Torre de la Horadada-stranden 3 km
Mil Palmeras-stranden 3 km
Lo Romero Golf 6 km
Region de Murcia internationella flygplats 45 km
Alicante Elche flygplats 75 km
Området erbjuder också utmärkta vägförbindelser till närliggande kuststäder, småbåtshamnar och fritidsanläggningar, vilket gör det till en perfekt bas för att utforska Costa Blanca och Costa Calida.
Hitta ditt nya hem på Costa Blanca
Om du letar efter en modern nybyggd bungalow nära stranden med utmärkta bekvämligheter och ett fantastiskt läge, är detta bostadsområde i Pilar de la Horadada ett utmärkt tillfälle. Kontakta oss idag för mer information eller för att boka ett besök.