Nowe apartamenty 100 m od morza w Rincon de la Victoria, Torre de Benagalbon
Nowe apartamenty 100 m od morza w Rincon de la Victoria, Torre de Benagalbon
Nowoczesny kompleks mieszkaniowy na Costa del Sol
Odkryj ten ekskluzywny, nowo wybudowany kompleks mieszkaniowy w Torre de Benagalbon, nadmorskiej miejscowości w Rincon de la Victoria. Położony zaledwie 100 metrów od morza, kompleks oferuje 28 nowoczesnych apartamentów z 1, 2 i 3 sypialniami oraz penthouse'ów, zaprojektowanych tak, aby cieszyć się śródziemnomorskim stylem życia w wyjątkowej okolicy.
Rincon de la Victoria to tradycyjne nadmorskie miasteczko we wschodniej części Costa del Sol, znane z relaksującej atmosfery, długich plaż, promenady i doskonałej lokalnej gastronomii. Dzięki bliskości wszystkich codziennych usług, szkół, obiektów sportowych i centrów handlowych jest to idealne miejsce zarówno na stałe zamieszkanie, jak i na dom wakacyjny. Miasto Malaga znajduje się zaledwie 20 minut drogi stąd i oferuje atrakcje kulturalne, dzielnice handlowe i tętniącą życiem marinę.
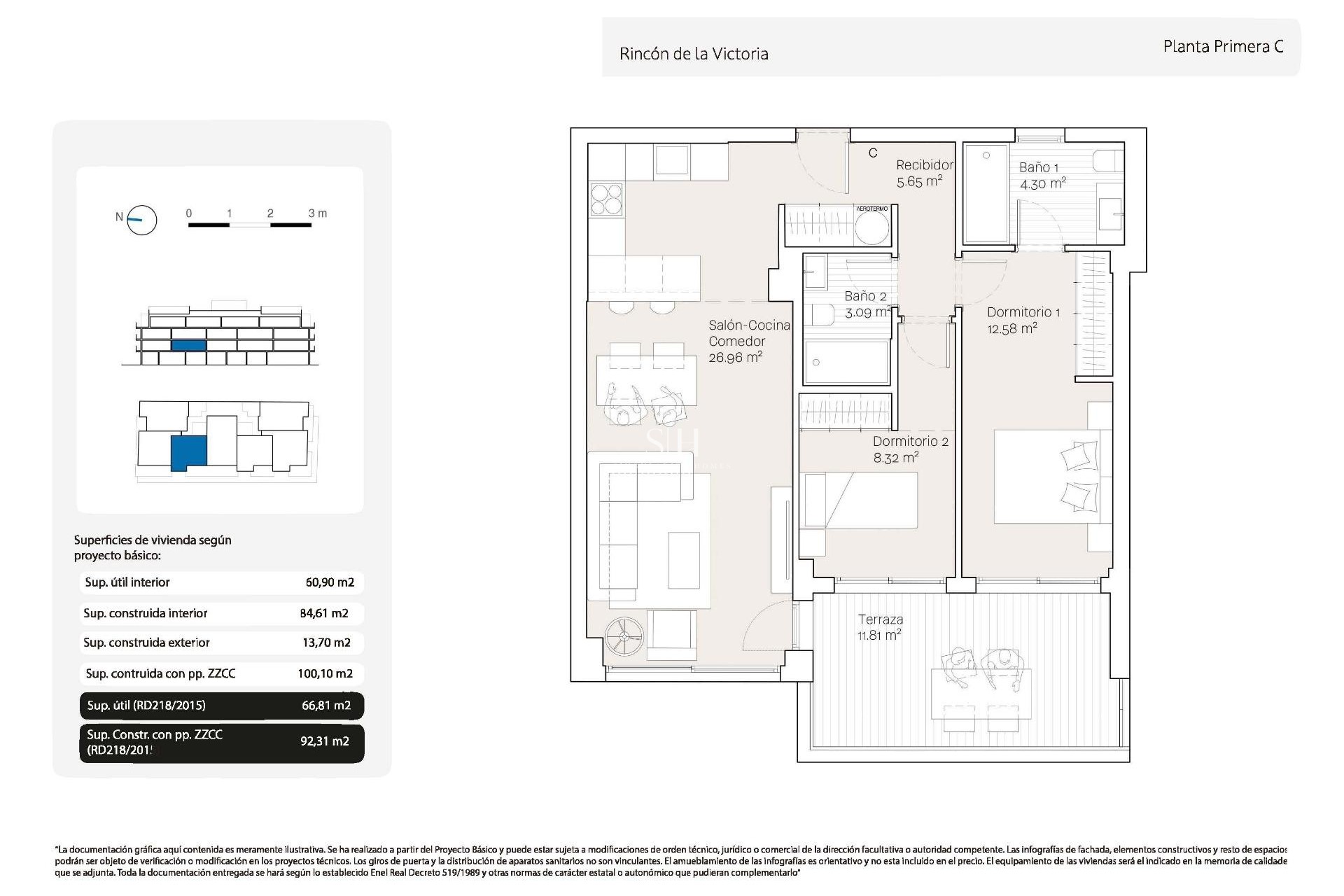
Jasne apartamenty z przestronnymi tarasami
Projekt architektoniczny charakteryzuje się czystą i nowoczesną estetyką, która podkreśla naturalne światło i otwarte przestrzenie mieszkalne. Większość domów posiada przestronne tarasy zewnętrzne, tworząc płynne połączenie między wnętrzem a otoczeniem zewnętrznym.
Układ wnętrz został starannie zaprojektowany, aby zapewnić komfortowe i funkcjonalne przestrzenie. Penthouse'y posiadają prywatne solarium, idealne do opalania się lub podziwiania widoków na morze w całkowitej prywatności.
Każda nieruchomość posiada prywatne miejsce parkingowe i pomieszczenie gospodarcze, co zwiększa wygodę i wartość dodatkową.
Wysokiej jakości wyposażenie i energooszczędne systemy
Osiedle jest wyposażone w nowoczesne instalacje zapewniające komfort i wydajność, w tym elektryczne rolety, wideodomofon oraz technologię aerotermiczną do podgrzewania wody i klimatyzacji. Kuchnie są dostarczane bez wyposażenia, z możliwością wyboru różnych wykończeń za dodatkową opłatą, co pozwala nabywcom na personalizację swojego domu.
Mieszkańcy mogą korzystać z wspólnego basenu na dachu z solarium i pięknym widokiem na morze, idealnym miejscem na relaks w promieniach słońca Costa del Sol.
Doskonała lokalizacja i odległości
Plaża 0,1 km
Port w Maladze 20 km
Centrum Malagi 20 km
Lotnisko w Maladze 30 km
Anoreta Golf 5 km
Zabezpiecz swój dom nad morzem
Ta nowa inwestycja w Rincon de la Victoria oferuje nowoczesny design, bliskość morza i doskonałe połączenia z Malagą i resztą Costa del Sol. Skontaktuj się z nami już dziś, aby otrzymać więcej informacji lub umówić się na oglądanie tych ekskluzywnych apartamentów położonych zaledwie kilka kroków od plaży.
655