Nowoczesne apartamenty z widokiem na morze w Mijas Costa
Nowoczesne apartamenty z widokiem na morze w Mijas Costa – luksus, komfort i śródziemnomorski styl życia
Ekskluzywne nowe rezydencje z panoramicznym widokiem na morze
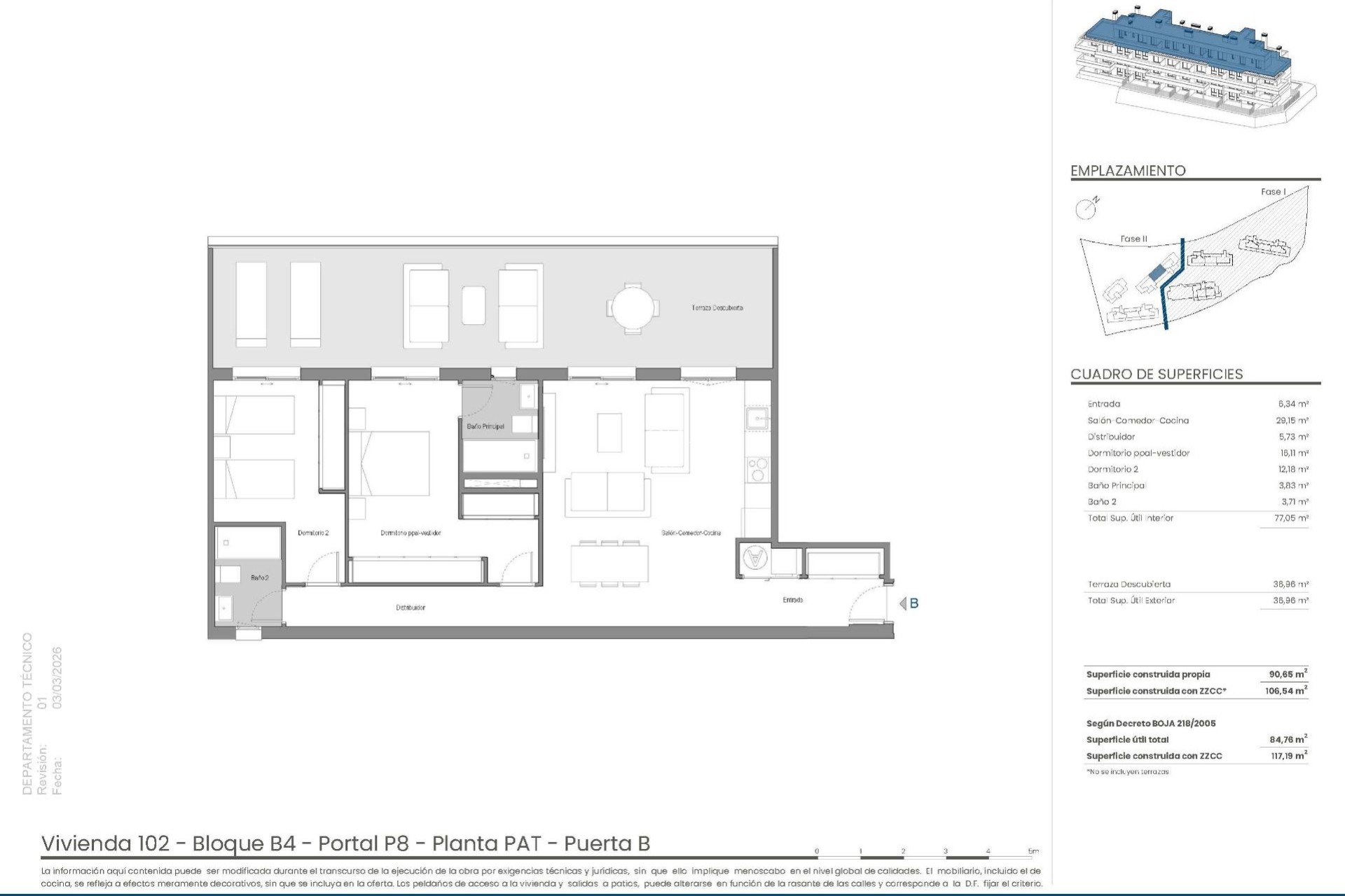
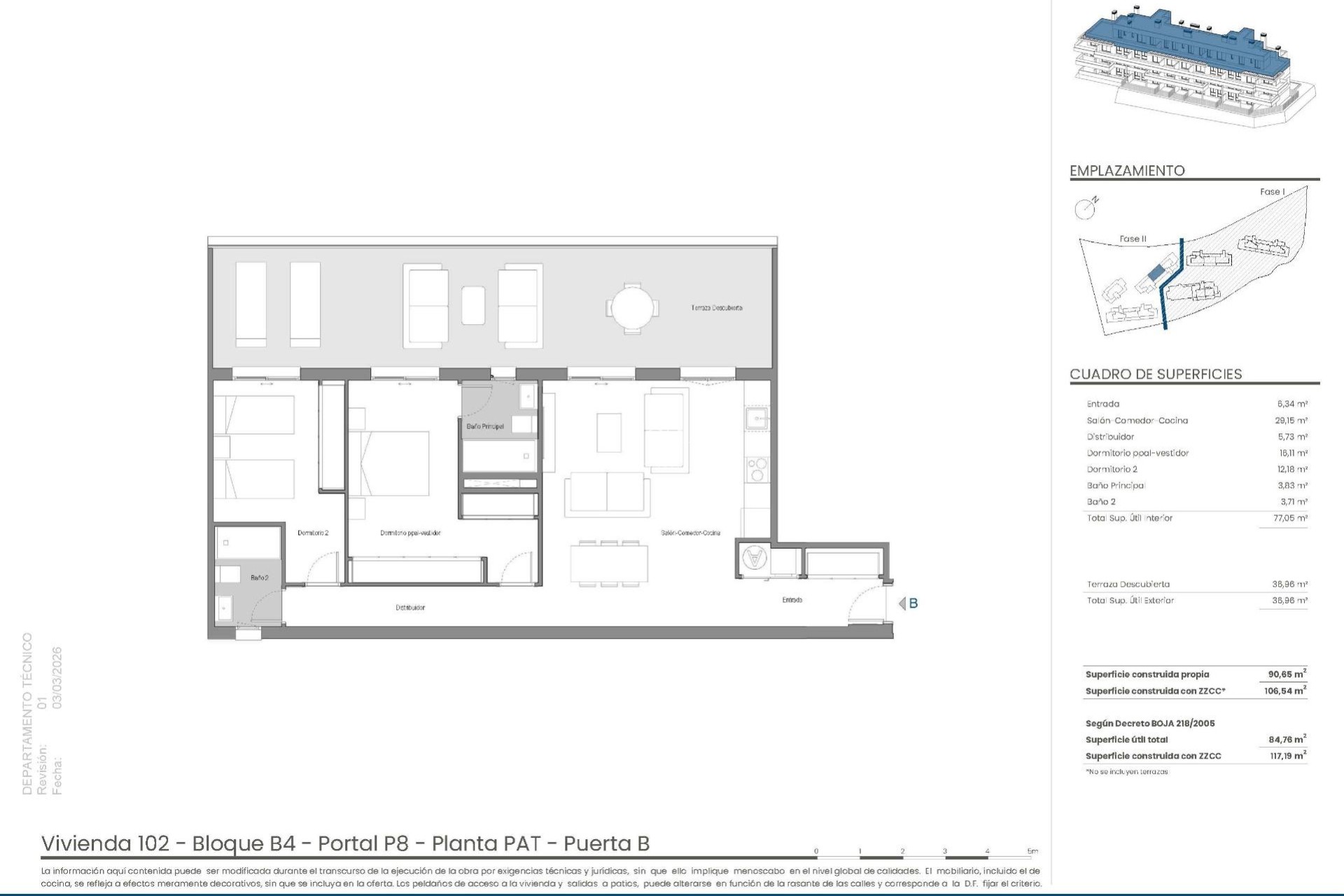
Odkryj tę wyjątkową nową inwestycję mieszkaniową w Mijas Costa, obejmującą 142 apartamenty z 2 i 3 sypialniami. Każdy dom został zaprojektowany tak, aby zapewnić komfort, światło i otwarty widok na Morze Śródziemne, a nawet lokale na parterze oferują panoramiczne widoki. Położona w jednej z najbardziej pożądanych lokalizacji na Costa del Sol, inwestycja ta stanowi idealne połączenie designu, stylu życia i lokalizacji.
Doskonała lokalizacja z doskonałym połączeniem komunikacyjnym
Strategicznie położona w Mijas Costa, ta zamknięta społeczność znajduje się zaledwie 10 minut od plaży i 25 minut od międzynarodowego lotniska w Maladze. Marbella jest oddalona o zaledwie 35 km, a Fuengirola o 10 km, oferując tętniące życiem sklepy, restauracje i kluby nocne. Miłośnicy golfa z pewnością docenią bliskość klubu golfowego Calanova, oddalonego o zaledwie 8 km. Centrum handlowe La Cañada, z najlepszymi międzynarodowymi markami i rozrywką, znajduje się 30 km od inwestycji.
Ponadto, zaledwie 800 metrów od inwestycji powstaje nowy park Costa del Sol. Ten ogromny teren zielony będzie oferował ścieżki spacerowe, jezioro, amfiteatr na świeżym powietrzu, skatepark, ściankę wspinaczkową i ścieżki rowerowe — idealne miejsce do rodzinnej zabawy i spędzania czasu na świeżym powietrzu.
Zaprojektowany z myślą o komforcie i dobrym samopoczuciu
Ten kompleks mieszkaniowy został starannie zaprojektowany, aby poprawić jakość życia dzięki wysokiej klasy udogodnieniom:
Duży basen z strefą relaksu
Siłownia, spa i strefa wellness
Klub towarzyski i salon coworkingowy
Ogrody krajobrazowe i tereny zielone
Prywatny parking i schowek w cenie
Układ budynków i części wspólnych zapewnia spokój i prywatność, jednocześnie sprzyjając poczuciu wspólnoty w naturalnym otoczeniu.
Nowoczesne wnętrza i wysokiej jakości wykończenia
Każdy dom posiada:
W pełni wyposażoną kuchnię na otwartym planie z wysokiej klasy sprzętem AGD: płytą indukcyjną, okapem, lodówką, piekarnikiem, kuchenką mikrofalową, zmywarką i pralką
Przestronne tarasy z przepięknym widokiem na morze
Stylowe łazienki z wysokiej klasy armaturą i kabinami prysznicowymi z żywicy
Klimatyzację z kanałami nawiewu ciepłego i zimnego zapewniającą komfort przez cały rok
Wzmocnione drzwi wejściowe i energooszczędne systemy
Żyj w stylu śródziemnomorskim
Mijas Costa oferuje to, co najlepsze z obu światów: urok tradycyjnej andaluzyjskiej miejscowości i wygodę nowoczesnego życia na wybrzeżu. Niezależnie od tego, czy relaksujesz się na plaży, zwiedzasz góry, czy grasz w golfa, ta inwestycja zapewni Ci dostęp do wszystkich atrakcji.
Nie przegap okazji, aby stać się właścicielem wymarzonego domu na Costa del Sol. Skontaktuj się z nami już dziś, aby uzyskać więcej informacji lub umówić się na wizytę.
655