RYNEK PIERWOTNY WILLE W MONFORTE DEL CID
RYNEK PIERWOTNY WILLE W MONFORTE DEL CID
Rynek Pierwotny wille w Monforte del Cid, z polem golfowym zaledwie 3 minuty od domu i tuż obok miast Alicante i Elche, gdzie znajdziesz szeroki wybór kultury, gastronomii, rozrywki i wybrzeża.
Złote piaszczyste plaże Morza Śródziemnego o krok od nowego domu, przestrzeń, w której można cieszyć się słońcem i morzem w dowolnym momencie.
Wille znajdują się 3 minuty od centrum sportowego pola golfowego Alenda Golf, dzięki czemu jest to idealna lokalizacja, aby cieszyć się spokojem cichej urbanizacji, ale mieć wszystkie usługi obok domu (zaledwie 12 minut od lotniska Alicante-Elche). Urbanizacja jest społecznością, która łączy w sobie to, co najlepsze w nowoczesnym życiu i spokój środowiska naturalnego (brak opłat komunalnych).
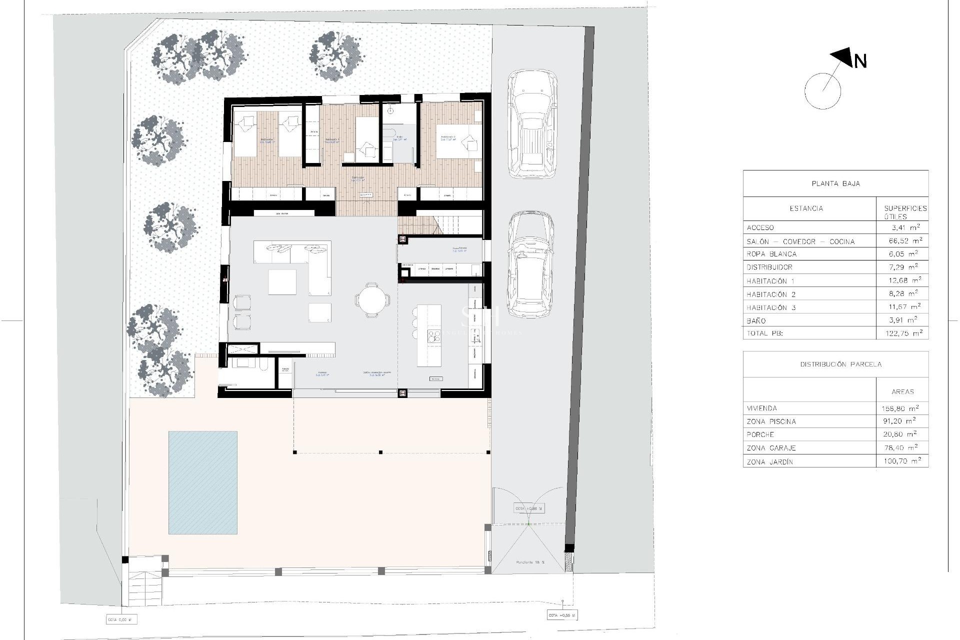
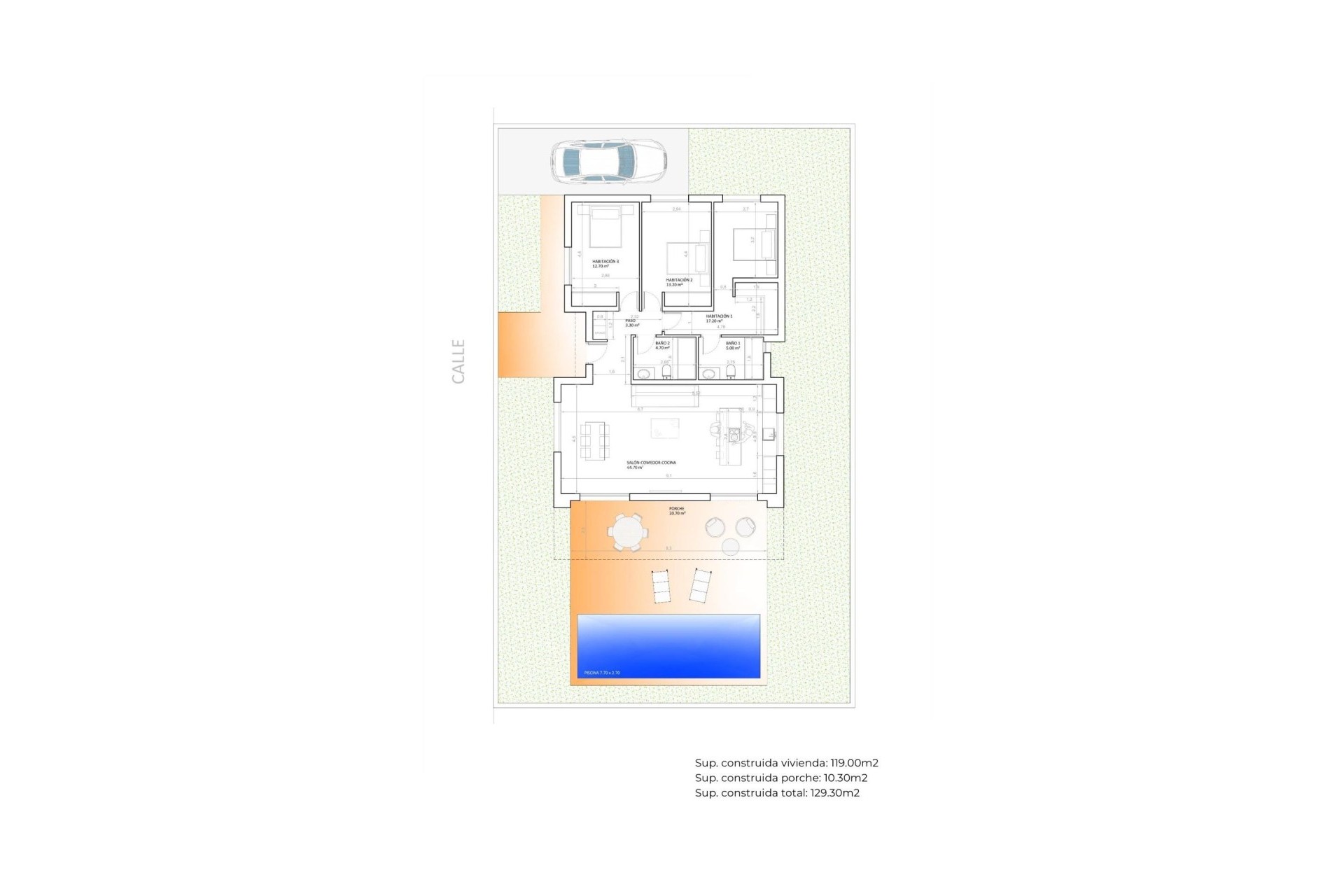
Odkryj elegancję i komfort tej pięknej niezależnej willi o powierzchni 108 m2 lub 128 m2 (możliwość dwóch rozmiarów domu), zaprojektowanej tak, aby oferować wyjątkowy styl życia na parterze.
Położona w prestiżowej urbanizacji, ta nieruchomość zapewnia wyjątkowe i wysokiej jakości doświadczenie życiowe. Na działkach o powierzchni od 618 m2, zapewniających dużo miejsca do korzystania zarówno wewnątrz, jak i na zewnątrz.
Ciesz się prywatnością oferowaną przez tę niezależną willę, w której możesz zrelaksować się we własnym ogrodzie, stworzyć oazę spokoju, a nawet dodać basen, aby cieszyć się ciepłymi letnimi dniami.
Dom jest podzielony na dwa duże obszary:
Część dzienna: Znajduje się tu przestronny salon-jadalnia z otwartą kuchnią typu biurowego (meble kuchenne wliczone w cenę), która łączy się z dużą nowoczesną werandą przez dwa duże okna, ustępując miejsca ogrodowi i basenowi. Światło zalewa każdy zakątek dzięki dużym oknom w salonie, które otwierają się na werandę, nowoczesną i funkcjonalną przestrzeń, która zaprasza do pełnego korzystania z zewnątrz. Wyobraź sobie spędzanie popołudni z rodziną i przyjaciółmi, w otoczeniu spokojnego i naturalnego środowiska. Jako dodatkowa przestrzeń, posiada
pralnia, strategicznie umieszczona w części dystrybucyjnej domu, gdzie będzie bardzo łatwo dostępna z dowolnego miejsca w domu.
Strefa nocna lub wypoczynkowa: W tej części znajdują się 3 sypialnie. Główna sypialnia ma dużą garderobę i łazienkę. Ponadto druga łazienka służy do obsługi pozostałych sypialni i mieszkań.
Tutaj znajdziesz nie tylko wspólnotę mieszkaniową, ale miejsce, w którym natura i elegancja przeplatają się, aby zapewnić Ci niezrównany styl życia. Niezależnie od tego, czy chcesz założyć stałą rezydencję, cieszyć się domem wakacyjnym, czy też chcesz zainwestować w swoją przyszłość, ta willa jest idealna dla Ciebie.
Prywatna urbanizacja w pobliżu głównych miast prowincji Alicante, 15 minut jazdy od Elche i Alicante, a także lotniska i najlepszych plaż.
Osiedle znajduje się w spokojnej okolicy w pobliżu pola golfowego Alenda w Monforte del Cid.