Nieuwbouwappartementen bij Baviera Golf in Vélez Málaga Op slechts 1500 m van de zee
Nieuwbouwappartementen bij Baviera Golf in Vélez Málaga Op slechts 1500 m van de zee
Exclusief wooncomplex aan de Costa del Sol
Dit omheinde en exclusieve wooncomplex ligt in Baviera Golf in Vélez Málaga, op slechts 1500 meter van de Middellandse Zee. Het complex bestaat uit 115 moderne appartementen met 2 en 3 slaapkamers, verdeeld over 7 blokken en 13 ingangen, ontworpen om comfort, privacy en een hoogwaardige levensstijl te bieden in een bevoorrechte omgeving aan de golfbaan.
Alle woningen zijn voorzien van een eigen parkeerplaats en berging, waardoor dit project ideaal is voor permanent wonen, vakantiegebruik of investering aan de Costa del Sol.
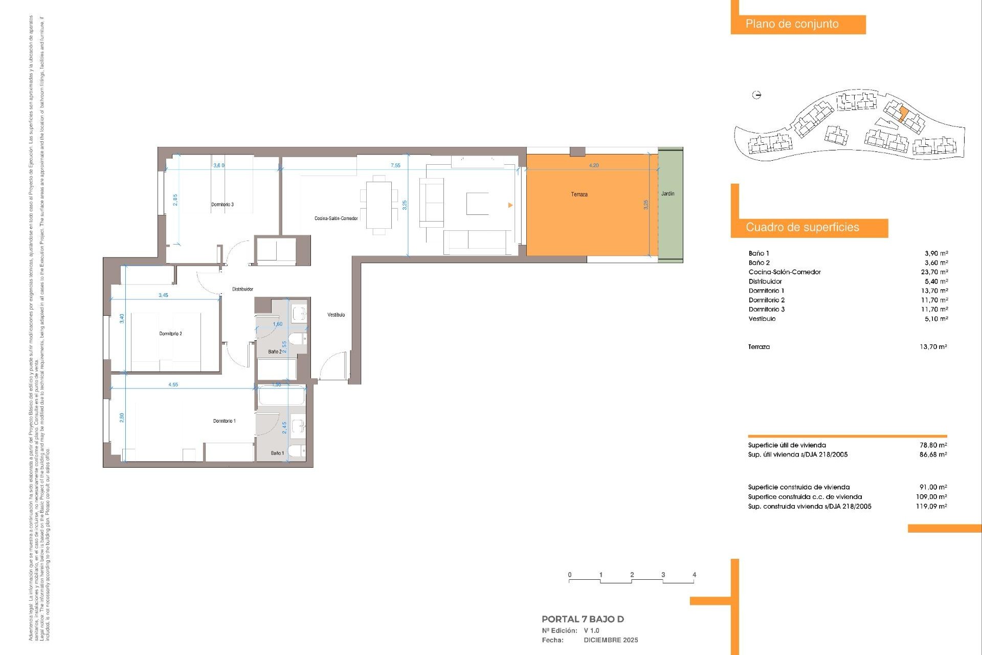
Lichte woningen met terrassen, tuinen en vrij uitzicht
Dankzij de natuurlijke helling van het perceel en een gedetailleerde architectonische studie zijn de woningen ontworpen met evenwichtige indelingen, open leefruimtes en een uitstekende oriëntatie die zorgen voor veel natuurlijk licht en een aangenaam vrij uitzicht.
Kopers kunnen kiezen tussen appartementen op de begane grond met een eigen terras en tuin, appartementen op de middelste verdiepingen met ruime terrassen of penthouses met grote open terrassen en panoramisch uitzicht.
Hoogwaardige specificaties en personaliseringsopties
De appartementen worden opgeleverd volgens de hoogste bouwnormen en met energielabel A, wat efficiëntie en duurzaamheid garandeert. Tot de kenmerken behoren versterkte veiligheidsdeuren, voorinstallatie voor airconditioning en lifttoegang in alle gebouwen.
De keukens worden ongemeubileerd opgeleverd, zodat kopers tegen meerprijs de afwerking en apparatuur naar eigen voorkeur kunnen personaliseren. Er is een uitgebreide catalogus met personaliseringsopties beschikbaar om elke woning aan te passen aan individuele smaken en behoeften.
Uitstekende gemeenschappelijke ruimtes voor ontspanning en welzijn
Bewoners kunnen genieten van aangelegde tuinen, een gemeenschappelijk zwembad, een fitnessruimte en een sociale clubruimte, waardoor een complete woonomgeving ontstaat die gericht is op comfort en gemeenschapsleven.
Toplocatie nabij La Caleta de Vélez en het strand
Het project ligt op slechts 500 meter van La Caleta de Vélez, waar u scholen, gezondheidscentra, sportfaciliteiten, apotheken, supermarkten en restaurants vindt. Het strand ligt op minder dan 2 km afstand en de jachthaven van Caleta de Vélez Marina biedt nautische activiteiten en restaurants aan het water.
Afstanden tot belangrijke bezienswaardigheden
Baviera Golf: eerste lijn
La Caleta de Vélez 0,5 km
Strand 1,5 km
Torre del Mar 3 km
Centrum van Málaga 35 km
Luchthaven van Málaga 40 km
Met directe toegang tot de snelweg A7 zorgt deze locatie voor een uitstekende verbinding met de hele Costa del Sol.
Uw nieuwe huis aan de golfbaan en de zee
Geniet van rust, uitzicht op de golfbaan en de nabijheid van het strand in een van de meest aantrekkelijke wijken van Vélez Málaga. Neem vandaag nog contact met ons op voor meer informatie of om een privébezichtiging van dit uitzonderlijke nieuwbouwproject te regelen.
655