Metros
55m2Habitaciones
1Baños
1Modernos apartamentos de nueva construcción a solo 150 m del mar en Torrevieja
Exclusiva promoción boutique junto a la playa
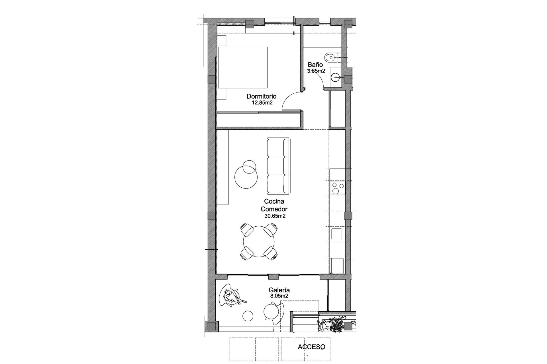
Esta nueva promoción ofrece solo 3 modernos apartamentos en una ubicación privilegiada, a solo 150 metros de la playa de Los Náufragos en Torrevieja. Originalmente parte de un espacio comercial construido en 1989, la propiedad ha sido completamente renovada y transformada en elegantes viviendas de un dormitorio y un baño, diseñadas para la vida moderna en la costa.
Diseño contemporáneo y comodidad lista para entrar a vivir
Cada apartamento ha sido completamente reformado con acabados de primera calidad y se entrega totalmente amueblado y equipado. Las características incluyen:
Cocina abierta con muebles y electrodomésticos incluidos
Muebles de diseño, iluminación, cortinas, televisores y decoración
Aire acondicionado frío/calor por splits tanto en el salón como en el dormitorio
Cuarto de baño con muebles, espejo y mampara de ducha
Terraza delantera con armario de almacenamiento de aluminio
Esta solución llave en mano le garantiza que podrá disfrutar de su nueva vivienda sin tener que preocuparse por amueblarla o equiparla. La entrega está prevista para febrero de 2026, una vez que se hayan finalizado las licencias y las conexiones de los servicios públicos, lo que la convierte en una oportunidad casi lista para entrar a vivir.
Ubicación céntrica privilegiada en Torrevieja
Situados a pocos pasos del mar y a 10 minutos del centro de la ciudad, estos apartamentos gozan de una ubicación inmejorable. En un radio de 300 metros encontrará restaurantes, supermercados, farmacias, bancos y opciones de transporte público. El puerto deportivo de Torrevieja está a solo 1 km, y servicios esenciales como el Hospital de Torrevieja y el centro comercial Las Habaneras están a poca distancia.
Fácil acceso a destinos clave
Playa de Los Náufragos: 150 m
Puerto deportivo de Torrevieja: 1 km
Campo de golf Villamartín: 10 km
Aeropuerto de Alicante: 45 km
Un estilo de vida junto al Mediterráneo
Torrevieja es uno de los destinos más deseados de la Costa Blanca, conocido por sus playas de arena, su animado paseo marítimo y su excelente clima, con más de 300 días de sol al año. Tanto si busca una residencia permanente, una casa de vacaciones o una inversión, esta promoción boutique ofrece el equilibrio perfecto entre comodidad, estilo y ubicación.
Asegúrese hoy mismo su apartamento en la costa
Disfrute de una vida moderna a pocos pasos del mar. Póngase en contacto con nosotros ahora para concertar una visita y reservar su nueva vivienda en Torrevieja antes de que sea demasiado tarde.
2026-02-01
1
1
55m2
45m2
150 Mts.
Si deseas más información puedes contactar por Whatsapp o rellenando el siguiente formulario.