Apartamentos turísticos para inversión cerca de la playa en Águilas (Murcia)
Apartamentos turísticos para inversión cerca de la playa en Águilas (Murcia)
Exclusivo complejo residencial en Los Collados, Águilas
Descubra este exclusivo complejo de apartamentos turísticos situado en Los Collados, una de las zonas residenciales más atractivas de Águilas, en la Región de Murcia. Ubicado dentro de la conocida urbanización Collados Zieschang, este complejo ofrece una combinación perfecta de entorno natural, estilo de vida costero y potencial de inversión.
El complejo se encuentra a solo 1 km de la playa y está rodeado de impresionantes paisajes como la Sierra de Almenara, el Cabo Cope y Calabardina, lo que lo convierte en un destino ideal para los amantes de la naturaleza, los aficionados al senderismo y quienes buscan tranquilidad junto al mar.
Una inversión inteligente con gestión de alquileres y ventajas fiscales
Esta promoción está diseñada para inversores que buscan una oportunidad segura y sin complicaciones. El complejo cuenta con licencia turística y está gestionado por un operador profesional. Los propietarios pueden disfrutar de uso personal hasta 2 meses al año, mientras que la empresa gestora se encarga de los alquileres durante el resto del periodo, generando ingresos constantes.
Además, este tipo de inversión permite la devolución del IVA, lo que ofrece importantes ventajas financieras y mejora la rentabilidad global.
Apartamentos totalmente amueblados y listos para usar
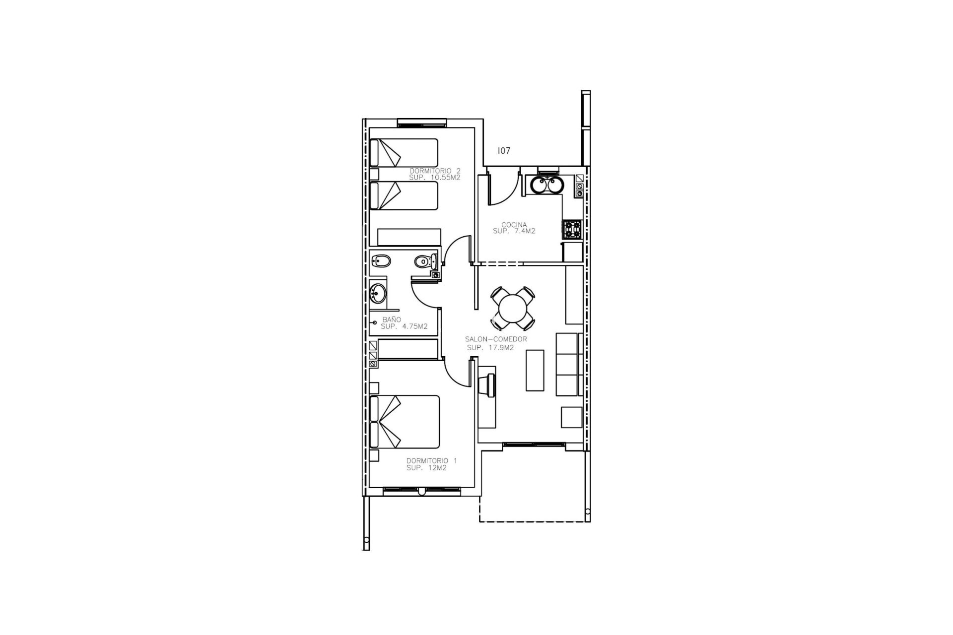
Construido en 2008, el complejo consta de 87 apartamentos distribuidos en 4 edificios con planta baja y dos plantas superiores, todos con acceso por ascensor y conexión directa al aparcamiento subterráneo.
Cada apartamento cuenta con 2 dormitorios, 1 cuarto de baño, una cocina totalmente equipada y un luminoso salón-comedor con acceso a una terraza privada. Todas las viviendas incluyen aire acondicionado frío y calor, y cada unidad dispone de una plaza de aparcamiento subterráneo asignada.
Los apartamentos se entregan totalmente amueblados y equipados con electrodomésticos, incluyendo nevera, lavadora, horno, microondas y placa vitrocerámica, lo que los hace aptos para su uso inmediato o para el alquiler.
Variedad de distribuciones y espacios exteriores
La promoción ofrece diferentes tipos de apartamentos para adaptarse a diversas preferencias. Las unidades de la planta baja incluyen terrazas o jardines privados que van de los 6 a los 86 m². Los apartamentos de la primera planta cuentan con terrazas de unos 6 m², mientras que los áticos de la última planta ofrecen una terraza más un solárium privado en la azotea de aproximadamente 37 m², ideal para disfrutar del clima mediterráneo.
Zonas comunes y estilo de vida
Los residentes y sus invitados pueden disfrutar de una gran piscina exterior rodeada de jardines paisajísticos, así como de una zona de bar abierta durante los meses de verano. El complejo está diseñado para ofrecer relajación, comodidad y un ambiente vacacional durante todo el año.
Ubicación privilegiada y distancias
Centro de Águilas: 3 km
Playa de Calabardina: 3 km
Espacio Natural de Cabo Cope: 10 km
Lorca: 35 km
Aeropuerto Internacional de Murcia: 75 km
Tu oportunidad en la Costa Cálida
Esta es una oportunidad ideal para combinar el disfrute personal con una inversión rentable en un hermoso entorno costero. Ponte en contacto con nosotros hoy mismo para recibir más información o concertar una visita y asegurarte tu apartamento en Águilas.
655