Metros
343m2Habitaciones
4Baños
3Piscina
SíGaraje
PrivadoDescubre esta espectacular villa de obra nueva ubicada en Avenida de las Naciones. Una vivienda moderna y elegante que ofrece 343 m² construidos, diseñada para disfrutar del máximo confort, amplitud y estilo de vida mediterráneo.
En el exterior, la propiedad cuenta con una impresionante piscina privada de 8 x 4 metros, perfecta para relajarse o disfrutar con familia y amigos durante todo el año. El jardín combina zonas de grava decorativa, plantas ornamentales, árboles frutales y áreas de césped artificial, creando un entorno agradable y fácil de mantener.
La vivienda destaca por sus espacios amplios y luminosos, con grandes ventanales y carpintería exterior en aluminio color gris antracita que aportan un diseño contemporáneo y permiten que la luz natural inunde todas las estancias. Además, el salón y los dormitorios cuentan con persianas motorizadas para mayor comodidad.
La cocina, totalmente amueblada, ofrece un diseño moderno y funcional con encimera de cuarzo o mármol, muebles altos y bajos, campana extractora y una práctica península central ideal para cocinar y compartir momentos en casa. La iluminación LED integrada aporta un toque elegante y acogedor.
Los baños han sido diseñados con un estilo actual, incorporando platos de ducha a ras de suelo, duchas tipo lluvia y mobiliario de diseño con espejos e iluminación integrada, creando espacios modernos y confortables.
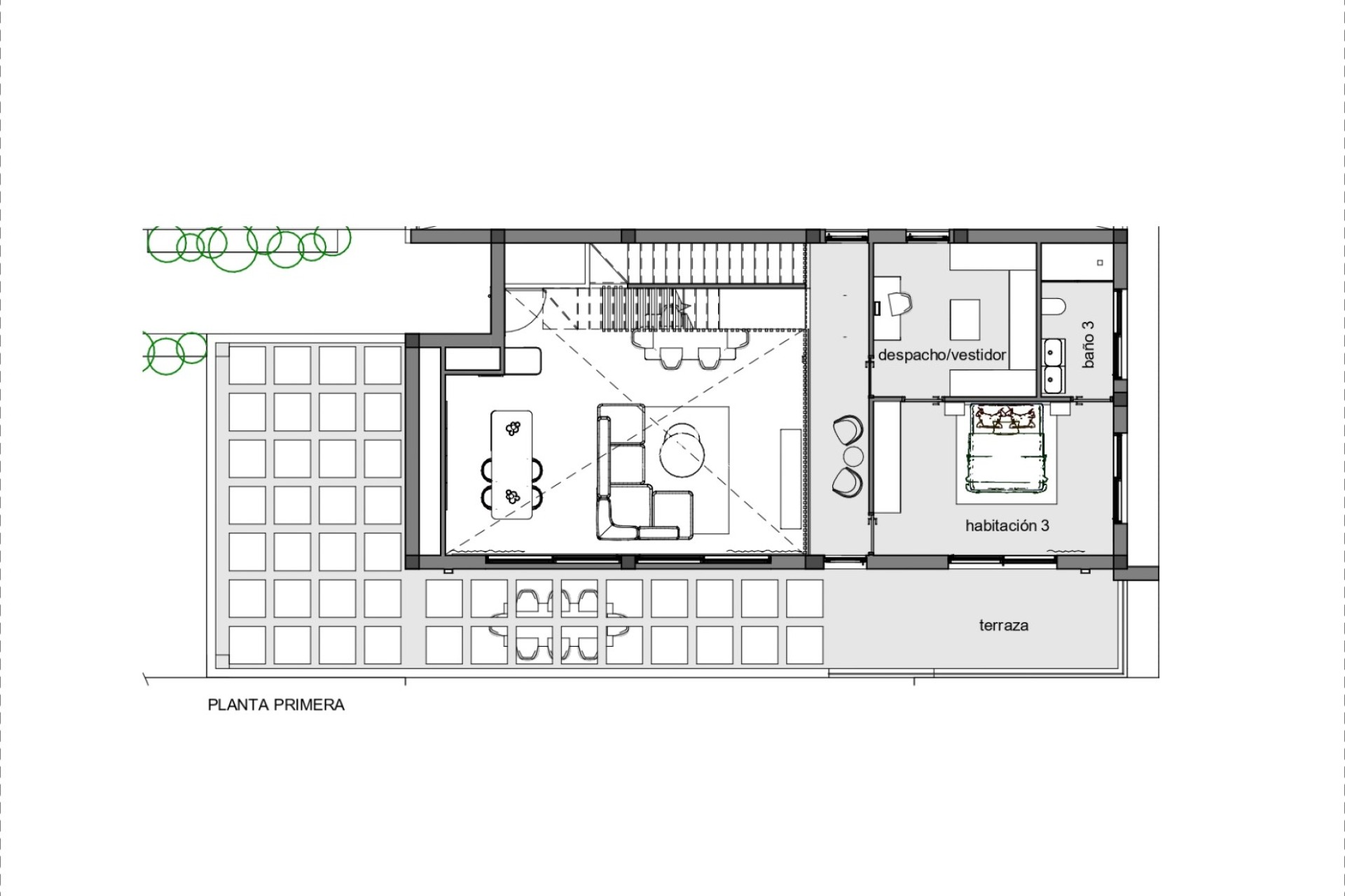
La vivienda está distribuida de la siguiente manera:
Planta baja: amplio salón-comedor, cocina, vestidor, distribuidor, dos baños completos y dos dormitorios.
Planta primera: por
Planta sótano: gran espacio versátil ideal para lavandería, almacenamiento, gimnasio, sala de ocio o cualquier uso según las necesidades del propietario.
Planta solárium: amplia terraza privada perfecta para crear una zona chill-out, disfrutar del sol y del agradable clima mediterráneo durante todo el año.
En el interior, la vivienda dispone de Algunos, destacando el dormitorio principal con armario completamente equipado. Todo ha sido diseñado para ofrecer funcionalidad, elegancia y comodidad.
Para garantizar el máximo confort durante todo el año, la casa incluye preinstalación de aire acondicionado por conductos y preinstalación de suelo radiante. También dispone de iluminación LED en cocina y baños, así como tomas de televisión en salón y dormitorios.
La propiedad se completa con acceso privado a la parcela, puerta motorizada para vehículos y zonas exteriores diseñadas para disfrutar al máximo de la vida al aire libre.
Una vivienda ideal para quienes buscan una villa de nueva construcción con amplios espacios, piscina privada y una excelente ubicación en Ciudad Quesada, cerca de todos los servicios, campos de golf y a pocos minutos de las playas de la Costa Blanca.
4
3
343m2
Sí
Privado
Abierta
Obra Nueva
Sur
7 Km.
40 Km.
1 Km.
1 Km.
Si deseas más información puedes contactar por Whatsapp o rellenando el siguiente formulario.