Neubau-Villen im Vistabella Golf Resort – Orihuela
Neubau-Villen im Vistabella Golf Resort – Orihuela
Erleben Sie modernes mediterranes Wohnen im Herzen der Costa Blanca mit diesen atemberaubenden Neubau-Villen im Vistabella Golf Resort. Zwischen San Miguel de Salinas und Los Montesinos, in der Gemeinde Orihuela, bietet diese exklusive Wohnanlage Luxus, Komfort und eine unschlagbare Lage für Golfbegeisterte und Lifestyle-Suchende gleichermaßen.
Zwei unterschiedliche Villenmodelle
Käufer können zwischen zwei eleganten Designs wählen:
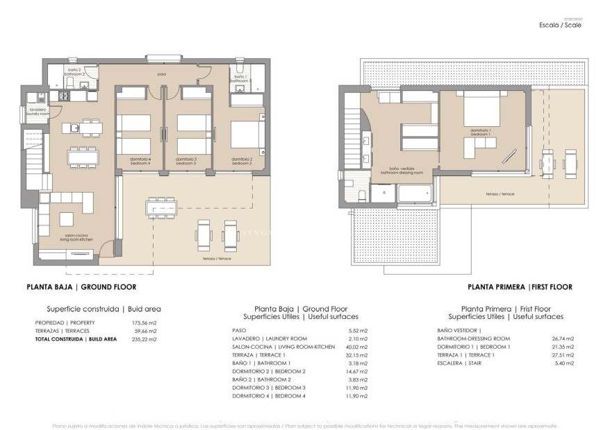
Ebenerdige Villen mit 3 Schlafzimmern, 2 Bädern und einer Dachterrasse.
Zweistöckige Villen mit 4 Schlafzimmern, 3 Bädern und einer Sonnenterrasse im ersten Stock.
Beide Modelle stehen auf Grundstücken von ca. 300 m² und verfügen über einen privaten Pool und einen Parkplatz auf dem Grundstück.
Premium-Qualität und moderner Komfort
Jede Villa verfügt über eine luxuriöse Ausstattung, darunter eine voll installierte Klimaanlage, Einbauküchen mit Geräten, Außenbeleuchtung, elektrische Rollläden und elegante Duschwände in den Badezimmern. Die Kombination aus Stil und Funktionalität sorgt für ein Zuhause, das sowohl schön als auch praktisch ist.
Exklusiver Golf-Resort-Lifestyle
Das Vistabella Golf Resort ist eine bewachte Wohnanlage mit einem 18-Loch-Golfplatz, Paddle-Tennisplätzen, einer Bowlingbahn, einem Supermarkt und einer Vielzahl von Bars und Restaurants. Zukünftige Erweiterungen werden das Resort zu einem echten 5-Sterne-Resort machen, mit geplanten Ergänzungen wie einer Champagner-Bar, einer Sushi-Bar, einem Spa-Hotel, einem künstlichen Strand, einem Tennisplatz, einem Fußballplatz und einer Gourmet-Bar.
Erstklassige Lage an der Costa Blanca
Das Resort bietet eine hervorragende Anbindung an die besten Strände, Golfplätze und Dienstleistungen der Region. Die Entfernungen zu den wichtigsten Sehenswürdigkeiten betragen:
Strand von La Mata: 18 km
Strand von Guardamar del Segura: 20 km
Torrevieja: 15 km
Flughafen Alicante: 55 km
Flughafen Murcia: 68 km
Villamartín Golf: 12 km
Las Colinas Golf & Country Club: 14 km
Ihr Traumhaus erwartet Sie
Ob als Dauerwohnsitz, Ferienhaus oder Mietobjekt – diese neu gebauten Villen im Vistabella Golf Resort bieten außergewöhnlichen Wert in einer der begehrtesten Küstenregionen Spaniens.
Kontaktieren Sie uns noch heute, um einen Besichtigungstermin zu vereinbaren und sich Ihren Platz in dieser luxuriösen Golfanlage zu sichern.